Löggiltir fasteignasalar innan Félags fasteignasala:
Hannes Steindórsson
Bogi Molby Pétursson
Guðrún Antonsdóttir
Heimir Hallgrímsson
Hrafnkell P. H. Pálmason
Viðar Marinósson
Elías Haraldsson
Kristján Þórir Hauksson
Albert Bjarni Úlfarsson
Ragnar Þorsteinsson
Þórey Ólafsdóttir
Andri Freyr Halldórsson
Upplýsingar
Byggt 2024
118,7 m²
3 herb.
2 baðherb.
2 svefnh.
Sameiginl. inngangur
Bílastæði
Lyfta
Opið hús: 26. október 2025
kl. 12:00
til 12:30
Lýsing
NÝJAR ÍBÚÐIR VIÐ HAFIÐ - Sýni samdægurs. Bókaðu skoðun í síma 822 2123 eða helga@fastlind.is
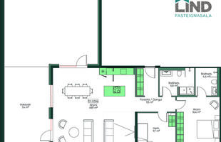
LIND fasteignasala og Helga Pálsdóttir löggiltur fasteignasali kynnir Jöfursbás 5A, Reykjavík - 3 herbergja endaíbúð íbúð 118,7fm. á þriðju hæð (efstu), þar af geymsla 6,0fm. (merkt 0018). Stæði merkt B001 fylgir íbúðinni í lokuðum bílakjallara. Íbúðin er skemmtilega hönnuð með tveimur góðum svefnherbergjum og möguleiki á þriðja herberginu. Tvö baðherbergi og annað þeirra innaf hjónaherbergi. Gólfhiti í öllum gólfum íbúðar . Svalir til suðurs út frá stofu.
Innanhúss hönnuður hefur komið að hönnun allra íbúða en í þeim má finna innréttingar sem eru sérsmíðaðar hjá VOKE-III, blöndunartæki eru frá Grohe og hreinlætistæki frá Duravit. Quartz steinn frá Technistone er á eldhúsum og böðum. Flísar á votrýmum og vandað parket á aðalflötum íbúðar er frá Ebson og eldhústæki frá AEG.
* aukin lofthæð
* sérsmíðaðar innréttingar sem ná upp í loft.
* vönduð gólfefni
* gólfhiti
* gólfsíðir gluggar
* quartz steinn á borðum og undirlímdir vaskar
* snjóbræðslukerfi í göngustígum með fallegri næturlýsingu
* spennandi umhverfisskipulag í nýju hverfi
Nánari lýsing íbúðar
Forstofa rúmgóð með stórum fataskáp
Eldhús með eyju, góðu skápaplássi og innbyggð ísskápur, frystir og uppþvottavél. Innrétting er vönduð með Quartz stein á borðplötum.
Stofa og borðstofa með góðum gólfsíðum gluggum .
Baðherbergi flísalögð 60x60cm ljósgráum flísum frá EBSON bæði gólf og hluti veggja, með vandaðri innréttingu með Quartz stein á baðinnréttingu frá Technistone. Tenging fyrir þvottavél og þurrkara í innréttingu á baði.
Hjónaherbergi er rúmgott með vönduðum fataskáp og baðherbergi innaf hjónaherbergi.
Svefnherbergi rúmgott með fataskáp
Þaksvalir 72fm. flísalagðar með glerhandrið og óbeinni lýsingu.
Geymsla merkt íbúðinni í kjallara
Hjóla- og vagnageymsla í sameign
Djúpgámar á lóð fyrir flokkað rusl
Hitalagnir í helstu gönguleiðum lóðar
Allir innviðir í hverfinu sterkir þ.m.t. skólar, leikskólar, verslanir og hvers konar önnur þjónusta í næsta nágrenni.
Íbúðirnar í húsinu eru samtals 26 talsins í tveimur stigahúsum, mjög fjölbreyttar 2-5 herbergja. Stærðir frá 55 fm-180 fm. Næg stæði fyrir utan hús.
Hverfið:
Við Eiðsvík í Gufunesi er að rísa spennandi íbúðabyggð í gömlu iðnaðarhverfi sem nú hýsir kvikmyndaver og fyrirtæki í skapandi greinum. Landslagið er einstakt, vogskornir klettar, strendur með svörtum og gylltum sandi, fuglalíf og útsýni yfir Geldinganes, Viðey, Esju og miðborgina. Engar götur skilja byggðina frá náttúrunni og einungis hjóla- og göngustígar liggja að hafi.
Vatnastrætó, ylströnd, göngubrú út í Viðey og góðir göngu- og hjólastígar er meðal þess sem mun einkenna þetta skemmtilega hverfi. Það er einstakt að eiga kost á slíkri náttúruperlu í miðri höfuðborginni.
Það er stutt í alla þjónustu, hvort sem það er í verslun, skóla, leikskóla eða íþróttamannvirki. Í Spönginni má m.a. finna ýmsar matvöruverslanir, vínbúð, veitingastaði, bókasafn, apótek, heilsugæslu, menningarmiðstöð og tónlistarskóla. Stutt er í Vættaskóla sem er grunnskóli og Borgarholtsskóla sem er framhaldsskóli. Þá eru fjölmargir leikskólar í nágrenninu auk þess sem golfvöllur er skammt undan.
Allar upplýsingar um eignina veitir Helga Pálsdóttir fasteignasali í síma 822 2123 eða helga@fastlind.is
LIND fasteignasala og Helga Pálsdóttir löggiltur fasteignasali kynnir Jöfursbás 5A, Reykjavík - 3 herbergja endaíbúð íbúð 118,7fm. á þriðju hæð (efstu), þar af geymsla 6,0fm. (merkt 0018). Stæði merkt B001 fylgir íbúðinni í lokuðum bílakjallara. Íbúðin er skemmtilega hönnuð með tveimur góðum svefnherbergjum og möguleiki á þriðja herberginu. Tvö baðherbergi og annað þeirra innaf hjónaherbergi. Gólfhiti í öllum gólfum íbúðar . Svalir til suðurs út frá stofu.
Innanhúss hönnuður hefur komið að hönnun allra íbúða en í þeim má finna innréttingar sem eru sérsmíðaðar hjá VOKE-III, blöndunartæki eru frá Grohe og hreinlætistæki frá Duravit. Quartz steinn frá Technistone er á eldhúsum og böðum. Flísar á votrýmum og vandað parket á aðalflötum íbúðar er frá Ebson og eldhústæki frá AEG.
* aukin lofthæð
* sérsmíðaðar innréttingar sem ná upp í loft.
* vönduð gólfefni
* gólfhiti
* gólfsíðir gluggar
* quartz steinn á borðum og undirlímdir vaskar
* snjóbræðslukerfi í göngustígum með fallegri næturlýsingu
* spennandi umhverfisskipulag í nýju hverfi
Nánari lýsing íbúðar
Forstofa rúmgóð með stórum fataskáp
Eldhús með eyju, góðu skápaplássi og innbyggð ísskápur, frystir og uppþvottavél. Innrétting er vönduð með Quartz stein á borðplötum.
Stofa og borðstofa með góðum gólfsíðum gluggum .
Baðherbergi flísalögð 60x60cm ljósgráum flísum frá EBSON bæði gólf og hluti veggja, með vandaðri innréttingu með Quartz stein á baðinnréttingu frá Technistone. Tenging fyrir þvottavél og þurrkara í innréttingu á baði.
Hjónaherbergi er rúmgott með vönduðum fataskáp og baðherbergi innaf hjónaherbergi.
Svefnherbergi rúmgott með fataskáp
Þaksvalir 72fm. flísalagðar með glerhandrið og óbeinni lýsingu.
Geymsla merkt íbúðinni í kjallara
Hjóla- og vagnageymsla í sameign
Djúpgámar á lóð fyrir flokkað rusl
Hitalagnir í helstu gönguleiðum lóðar
Allir innviðir í hverfinu sterkir þ.m.t. skólar, leikskólar, verslanir og hvers konar önnur þjónusta í næsta nágrenni.
Íbúðirnar í húsinu eru samtals 26 talsins í tveimur stigahúsum, mjög fjölbreyttar 2-5 herbergja. Stærðir frá 55 fm-180 fm. Næg stæði fyrir utan hús.
Hverfið:
Við Eiðsvík í Gufunesi er að rísa spennandi íbúðabyggð í gömlu iðnaðarhverfi sem nú hýsir kvikmyndaver og fyrirtæki í skapandi greinum. Landslagið er einstakt, vogskornir klettar, strendur með svörtum og gylltum sandi, fuglalíf og útsýni yfir Geldinganes, Viðey, Esju og miðborgina. Engar götur skilja byggðina frá náttúrunni og einungis hjóla- og göngustígar liggja að hafi.
Vatnastrætó, ylströnd, göngubrú út í Viðey og góðir göngu- og hjólastígar er meðal þess sem mun einkenna þetta skemmtilega hverfi. Það er einstakt að eiga kost á slíkri náttúruperlu í miðri höfuðborginni.
Það er stutt í alla þjónustu, hvort sem það er í verslun, skóla, leikskóla eða íþróttamannvirki. Í Spönginni má m.a. finna ýmsar matvöruverslanir, vínbúð, veitingastaði, bókasafn, apótek, heilsugæslu, menningarmiðstöð og tónlistarskóla. Stutt er í Vættaskóla sem er grunnskóli og Borgarholtsskóla sem er framhaldsskóli. Þá eru fjölmargir leikskólar í nágrenninu auk þess sem golfvöllur er skammt undan.
Allar upplýsingar um eignina veitir Helga Pálsdóttir fasteignasali í síma 822 2123 eða helga@fastlind.is