Upplýsingar
88,3 m²
3 herb.
1 baðherb.
2 svefnh.
Sérinngangur
Lýsing
Hraunhamar fasteignasala kynnir í einkasölu fallega 88,3 fm þriggja herbergja endaíbúð með sérinngangi á 1. hæð í nýju litlu fjölbýli í Stekkjarbergi 11B. Eigninni fylgir rúmgóður sérafnotaflötur. Einstaklega góð staðsetning á grónum stað í Setbergshverfinu í Hafnarfirði. Stutt í alla helstu þjónustu, skóli, leikskóli og verslun í göngufæri.
Íbúðin afhendist fullbúin með gólfefnum, innbyggðum ísskáp og uppþvottavél.
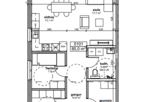
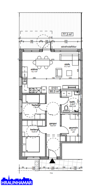
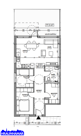
Íbúðin er skráð 88,3 fm þar af er 3,3 fm útigeymsla.
Afhending við kaupsamning.
ATH. myndir eru af sýningaríbúð. Skipulag er annað en efnisval á innréttingum og gólfefnum er eins.
Nánari lýsing skv. teikningu:
Anddyri með flísum á gólfi og fataskáp.
Gangur.
Stofa og eldhús í opnu rými. Vandaðar innréttingar frá HTH og raftæki frá Ormsson. Innbyggður ísskápur og uppþvottavél fylgja. Útgengt frá alrými á rúmgóða verönd.
Hjónaherbergi með góðum fataskápum.
Svefnherbergi með fataskáp.
Flísalagt baðherbergi, innrétting, upphengt salerni og ,,walk in'' sturta. Innfelld blöndunartæki. Þvottaaðstaða inn á baðherbergi.
Geymsla innan íbúðar.
Sérgeymsla í sérhúsi á lóð.
Gólfefni eru harðparket og flísar.
Húsið er byggt með forsteyptum einingum frá BM Vallá.
Sameiginleg lóð og bílastæði fyrir Stekkjarberg 11. Geymslur verða í sérhúsi á lóð.
Frábær staðsetning á skjólgóðum og fallegum stað í Setbergshverfinu þar sem stutt er í alla helstu þjónustu og stofnbraut.
Allar nánari upplýsingar veita:
Valgerður Ása Gissurardóttir, löggiltur fasteignasali s. 791-7500, vala@hraunhamar.is
Hlynur Halldórsson, löggiltur fasteignasali s. 698-2603, hlynur@hraunhamar.is
Glódís Helgadóttir, löggiltur fasteignasali í s. 659-0510, glodis@hraunhamar.is
Helgi Jón Harðarson, sölustjóri í s. 893-2233, helgi@hraunhamar.is
Skoðunarskylda:
Í lögum um fasteignakaup nr. 40/2002 er kveðið á um ríka skoðunarskyldu kaupenda á fasteignum. Hraunhamar fasteignasala vill benda væntanlegum kaupendum á að kynna sér vel ástand fasteigna fyrir kauptilboðsgerð og ef þurfa þykir að leita til sérfræðinga fyrir nánari ástandsskoðun.
Gjöld sem kaupandi þarf að standa straum af vegna kaupanna:
1. Stimpilgjald af kaupsamningi, fyrstu kaup (0,4%), almenn kaup (0,8%), lögaðilar (1,6%) af heildarfasteignamati.
2. Þinglýsingargjald af kaupsamningi, veðskuldabréfi, mögulegu veðleyfi o.fl. – 2.700 kr. af hverju skjali.
3. Lántökugjald lánastofnunar er skv. verðskrá viðkomandi lánastofnunar.
4. Umsýslugjald til fasteignasölu skv. þjónustusamningi
Hraunhamar er elsta fasteignasala Hafnarfjarðar, stofnuð 1983.
Hraunhamar, í fararbroddi í rúm 41 ár. – Hraunhamar.is
Smelltu hér til að fá frítt söluverðmat.
Íbúðin afhendist fullbúin með gólfefnum, innbyggðum ísskáp og uppþvottavél.
Íbúðin er skráð 88,3 fm þar af er 3,3 fm útigeymsla.
Afhending við kaupsamning.
ATH. myndir eru af sýningaríbúð. Skipulag er annað en efnisval á innréttingum og gólfefnum er eins.
Nánari lýsing skv. teikningu:
Anddyri með flísum á gólfi og fataskáp.
Gangur.
Stofa og eldhús í opnu rými. Vandaðar innréttingar frá HTH og raftæki frá Ormsson. Innbyggður ísskápur og uppþvottavél fylgja. Útgengt frá alrými á rúmgóða verönd.
Hjónaherbergi með góðum fataskápum.
Svefnherbergi með fataskáp.
Flísalagt baðherbergi, innrétting, upphengt salerni og ,,walk in'' sturta. Innfelld blöndunartæki. Þvottaaðstaða inn á baðherbergi.
Geymsla innan íbúðar.
Sérgeymsla í sérhúsi á lóð.
Gólfefni eru harðparket og flísar.
Húsið er byggt með forsteyptum einingum frá BM Vallá.
Sameiginleg lóð og bílastæði fyrir Stekkjarberg 11. Geymslur verða í sérhúsi á lóð.
Frábær staðsetning á skjólgóðum og fallegum stað í Setbergshverfinu þar sem stutt er í alla helstu þjónustu og stofnbraut.
Allar nánari upplýsingar veita:
Valgerður Ása Gissurardóttir, löggiltur fasteignasali s. 791-7500, vala@hraunhamar.is
Hlynur Halldórsson, löggiltur fasteignasali s. 698-2603, hlynur@hraunhamar.is
Glódís Helgadóttir, löggiltur fasteignasali í s. 659-0510, glodis@hraunhamar.is
Helgi Jón Harðarson, sölustjóri í s. 893-2233, helgi@hraunhamar.is
Skoðunarskylda:
Í lögum um fasteignakaup nr. 40/2002 er kveðið á um ríka skoðunarskyldu kaupenda á fasteignum. Hraunhamar fasteignasala vill benda væntanlegum kaupendum á að kynna sér vel ástand fasteigna fyrir kauptilboðsgerð og ef þurfa þykir að leita til sérfræðinga fyrir nánari ástandsskoðun.
Gjöld sem kaupandi þarf að standa straum af vegna kaupanna:
1. Stimpilgjald af kaupsamningi, fyrstu kaup (0,4%), almenn kaup (0,8%), lögaðilar (1,6%) af heildarfasteignamati.
2. Þinglýsingargjald af kaupsamningi, veðskuldabréfi, mögulegu veðleyfi o.fl. – 2.700 kr. af hverju skjali.
3. Lántökugjald lánastofnunar er skv. verðskrá viðkomandi lánastofnunar.
4. Umsýslugjald til fasteignasölu skv. þjónustusamningi
Hraunhamar er elsta fasteignasala Hafnarfjarðar, stofnuð 1983.
Hraunhamar, í fararbroddi í rúm 41 ár. – Hraunhamar.is
Smelltu hér til að fá frítt söluverðmat.