Löggiltir fasteignasalar innan Félags fasteignasala:
Sverrir Kristinsson
Kjartan Hallgeirsson
Guðlaugur Ingi Guðlaugsson
Daði Hafþórsson
Gunnar Helgi Einarsson
Gunnar Bergmann Jónsson
Lilja Guðmundsdóttir
Jenný Sandra Gunnarsdóttir
Kári Sighvatsson
Vista
svg

14

svg

14  Skoðendur

svg

Skráð  23. okt. 2025

fjölbýlishús

Kleppsmýrarvegur 6 - íbúð 508

104 Reykjavík

81.900.000 kr.

1.032.787 þ.kr./m2
Fasteignanúmer

F2532802

Fasteignamat

64.850.000 kr.

Brunabótamat

0 kr.

Áhvílandi

0 kr.

Arion banki – Reikna lán
Upplýsingar
svg
Byggt 2024
svg
79,3 m²
svg
3 herb.
svg
1 baðherb.
svg
2 svefnh.
svg
Þvottahús
svg
Útsýni
svg
Sameiginl. inngangur
svg
Hjólastólaaðgengi
svg
Bílastæði
svg
Lyfta
svg
Laus strax
Opið hús: 25. október 2025 kl. 12:00 til 12:30

Opið hús laugardaginn 25 október milli kl 12:00 - 12:30. Sýnum allar óseldar íbúðir. Aðkoma frá Dugguvogi eða inngarði.

Lýsing

Eignamiðlun kynnir:

Bókaðu einkasýningu á þessar íbúðir - sýni daglega. Gunnar í síma 839-1600

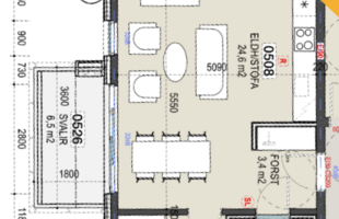
Íbúð merkt 508 - 3ja herbergja 79,3 fm íbúð á fimmtu og efstu hæð með tveim svefnherbergjum og rúmgóðum svölum. Rúmgott svefnherbergi og minna barnaherbergi, baðherbergi, opið eldhús inn í borðstofu og stofu. Bílastæði í bílakjallara. Virkilega fallegt útsýni.

Allar íbúðir eru með sér loftræstikerfi sem stuðlar að heilbrigði húss og íbúa, auk orkusparnaðar sem skilar allt að 80% endurnýtingu á varma. Vönduð innrétting fyrir þvottavél og þurrkara á baðherbergi. Svalir með rennihurð út á góðar svalir.


Nánari upplýsingar veitir: Gunnar Bergmann löggiltur fasteignasali í síma 839-1600 eða gunnarbergmann@eignamidlun.is

Smellið hér fyrir heimasíðu verkefnisins og skilalýsingu
Smellið hér fyrir söluyfirlit
Nánari lýsing:
Komið er inn forstofu með fataskápum.
Baðherbergi: Baðherbergi með sturtuklefa. Handlaug, handklæðaofn og upphengt salerni. Flísar á gólfum og veggjum.
Eldhús: Eldhúsinnrétting með góðu skápaplássi frá Axis. Ofn í vinnuhæð, góð vinnuaðstaða og gott skúffupláss.
Svefnherbergi: Rúmgott með góðu skápaplássi. Barnaherbergi með skápum.
Stofa/ borðstofa: Rúmgóð setustofa og borðstofa opið inn í eldhús. Gengið er út á svalir út frá stofu, stór rennihurð.
Bílakjallari og geymsla: Bílastæði í lokuðum bílakjallara fylgir íbúðinni ásamt 11,8 fm geymslu.

Íbúðirnar verða afhentar án gólfefna, nema á votrýmum verða flísalögð. Eldhúsinnrétting er sérsmíðuð af vandaðri gerð frá Axis.

Gjöld sem kaupandi þarf að standa straum af vegna kaupanna: 
1. Stimpilgjald af kaupsamningi - 0,8% af heildarfasteignamati. (0,4% ef um er að ræða fyrstu eign) 
2. Þinglýsingargjald af kaupsamningi, veðskuldabréfi, mögulegu veðleyfi o.fl. - kr. 2.700 af hverju skjali. 
3. Lántökugjald lánastofnunar. Nánari upplýsingar á t.d. heimasíðu lánastofnana. 
4. Umsýslugjald til fasteignasölu sbr kauptilboði.

Eignamiðlun ehf. - Grensásvegur 11, 108 Reykjavík - gunnarbergmann@eignamidlun.is - Gunnar Bergmann Jónsson löggiltur fasteignasali.

***
Ábyrg þjónusta í áratugi. Eignamiðlun var stofnuð 1957 og er elsta starfandi fasteignasala á Íslandi. Reynsla, heiðarleiki og þekking á fasteignamarkaðnum eru grunnur að farsælum viðskiptum. 

Eignamiðlun Grensásvegi 11, 108 Reykjavík - Opið frá kl. 9-17 mánudaga til fimmtudaga og 9-16 á föstudögum.

Heimasíða Eignamiðlunar

Eignamiðlun á Facebook

img
Gunnar Bergmann Jónsson
Lögg.fasteignasali innan félags fasteignasala
Eignamiðlun
Grensásvegi 11, 108 Reykjavík
Eignamiðlun

Eignamiðlun

Grensásvegi 11, 108 Reykjavík
img

Gunnar Bergmann Jónsson

Grensásvegi 11, 108 Reykjavík
Eignamiðlun

Eignamiðlun

Grensásvegi 11, 108 Reykjavík

Gunnar Bergmann Jónsson

Grensásvegi 11, 108 Reykjavík