Löggiltir fasteignasalar innan Félags fasteignasala:
Daníel Rúnar Elíasson
Vista
svg

31

svg

29  Skoðendur

svg

Skráð  23. okt. 2025

fjölbýlishús

Asparskógar 1 íbúð 103

300 Akranes

60.900.000 kr.

822.973 þ.kr./m2
Fasteignanúmer

F2521178

Fasteignamat

49.200.000 kr.

Brunabótamat

42.100.000 kr.

Áhvílandi

0 kr.

Arion banki – Reikna lán
Upplýsingar
Verðsaga
svg
Byggt 2023
svg
74 m²
svg
3 herb.
svg
1 baðherb.
svg
2 svefnh.
svg
Þvottahús
svg
Sérinngangur

Lýsing

HÁKOT fasteignasala og Daníel Rúnar Elíasson löggiltur fasteignasali sími: 431-4045 / 899-4045 auglýsa:
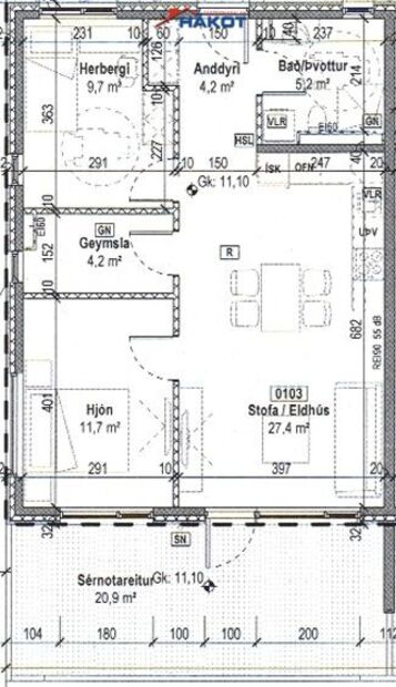
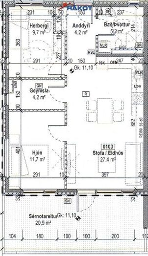
*** ASPARSKÓGAR 1 *** 3ja herbergja ENDAÍBÚÐ á fyrstu hæð (74 m²) merk 103.


Forstofa (parket, skápur).
Hol (parket). 
Geymsla (flísar, hillur, tengi fyrir þvottavél, gluggi).
Herbergi 2 (parket, skápur).
Svefnherbergi (parket, fataskápur).
Baðherbergi/þvottahús (flísar, flísar á vegg, sturta í gólf (walk in), innrétting, upphengt wc, handklæðaofn, tengi fyrir þvottavél, gluggi).
Eldhús (parket, grá innrétting, innbyggð uppþvottavél og ísskápur/frystir, ofn, helluborð, háfur, opið að stofu). 
Stofa/borðstofa (parket, útgangur út á stóra Verönd í suður). 

Sameign: Hjóla- og vagnageymsla á jarðhæð.

Annað: Byggt af Þ.G verk 2023. 2ja hæða fjölbýlishús. Ruslaskýli við bílastæði á vesturhlið. 28 íbúðir í þremur sjálfstæðum einingum. Innréttingar frá GKS

Staðsett stutt frá leikskólum, verslun, golfvelli og skógrækt.

Allar upplýsingar í söluyfirlitinu eru fengnar hjá seljendum og úr opinberum gögnum.

************
Um skoðunar- og aðgæsluskyldu:
Í lögum um fasteignakaup nr. 40/2002 er kveðið á um ríka skoðunarskyldu kaupenda á fasteignum. Fasteignasalan Hákot bendir væntanlegum kaupendum á að kynna sér vel ástand fasteigna við skoðun og fyrir tilboðsgerð og ef þurfa þykir að leita til sérfræðinga um nánari ástandsskoðun.

Forsendur söluyfirlits: 
Söluyfirlit er samið af fasteignasala í samræmi við ákvæði laga nr. 70/2015. Þær upplýsingar sem fram koma í söluyfirliti þessu eru sóttar í opinberar skrár, til seljanda sjálfs og eftir atvikum til húsfélags. Seljandi veitir upplýsingar um eign í samræmi við upplýsingaskyldu laga um fasteignakaup nr. 40/2002. Fasteignasali metur eignina með sjónskoðun.
Fasteignasali getur ekki fullyrt um ástand og eiginleika þeirra hluta fasteigna sem ekki eru aðgengilegir og sjást ekki berum augum, t.d. lagnir, dren, skólp og þak.

Gjöld sem kaupandi þarf að standa straum af vegna kaupanna:  
1. Stimpilgjald af kaupsamningi - 0.8% af heildar fasteignamati / 1.6% fyrir lögaðila, (0.4% við fyrstu kaup einstaklinga).
2. Þinglýsingagjald af kaupsamningi, afsali, veðskuldabréfi, umboði, veðleyfi o.fl.- kr. 2.700 af hverju skjali.
3. Umsýslugjald kr. 49.600 (m/vsk).
4. Lántökugjald veðskuldabréfa samkvæmt gjaldskrá lánveitenda.
5. Ef um nýbyggingu er að ræða greiðir kaupandi skipulagsgjald, 0,3% af brunabótamáti, þegar það er lagt á

Fasteignasalan Hákot

Fasteignasalan Hákot

Kirkjubraut 12 (jarðhæð)300 Akranesi
phone
Ár
Fasteignamat
Kaupverð
Stærð
Fermetraverð
23. maí. 2023
17.850.000 kr.
49.900.000 kr.
74 m²
674.324 kr.
Byggt á upplýsingum úr Þjóðskrá Íslands frá 2006-2025
Fasteignasalan Hákot

Fasteignasalan Hákot

Kirkjubraut 12 (jarðhæð)300 Akranesi
phone