Löggiltir fasteignasalar innan Félags fasteignasala:
Hannes Steindórsson
Bogi Molby Pétursson
Guðrún Antonsdóttir
Heimir Hallgrímsson
Hrafnkell P. H. Pálmason
Viðar Marinósson
Elías Haraldsson
Kristján Þórir Hauksson
Albert Bjarni Úlfarsson
Ragnar Þorsteinsson
Þórey Ólafsdóttir
Andri Freyr Halldórsson
Upplýsingar
Byggt 2018
120,2 m²
3 herb.
2 baðherb.
2 svefnh.
Þvottahús
Sameiginl. inngangur
Lyfta
Opið hús: 26. október 2025
kl. 14:00
til 14:30
Opið hús: Kolagata 3, 101 Reykjavík, Íbúð merkt: 04 02 06. Eignin verður sýnd sunnudaginn 26. október 2025 milli kl. 14:00 og kl. 14:30.
Lýsing
Nýtt á skrá - Kolagata 3 Reykjavík, Íbúð 206 -
Bókið skoðun hjá heimir@fastlind.is / 849-0672
*** Glæsileg lúxusíbúð með þakverönd í hjarta Reykjavíkur *** Íbúðin er laus við kaupsamning!
Bókið skoðun hjá:
Heimi Hallgrímssyni lögg. fasteignasala / heimir@fastlind.is / 849-0672
Lind fasteignasala og Heimir Hallgrímsson lögg. fasteignasali kynnir glæsilega 120,2 fermetra 3ja herbergja íbúð (206) með þakverönd og útsýni út á Reykjavíkurhöfn við Kolagötu 3 (Hafnartorgi) í nýlegu húsi byggðu af ÞG Verk í hjarta miðbæjarins. Íbúðin er frábærlega staðsett í nálægð við alla menningu og verslun og þjónustu sem Miðborgin hefur upp á að bjóða. Allar innréttingar og tæki eru sérvaldar af innanhúsarkitekt til að mynda eina stílhreina heild og eru öll tæki og tæknibúnaður fyrsta flokks. Allt ytra efnisval bygginganna er í hæsta gæðaflokki sem og allur lóðarfrágangur.
Íbúðin er hið glæsilegasta eins og fyrr greinir með fallegum innréttingum frá Noblessa og borðplötum úr vönduðu Meganite Carrara efni. Öll eldhústæki eru af vandaðri gerð frá Siemens og vínkæli í eldhúseyju. Aukin lofthæð og allar innihurðar extra háar og framleiddar af HBH smíðaverkstæði. Myndavéladyrasími og blöndunartæki af vönduðustu gerð frá Vola (Tengi). Rafkerfi útihurðir eru raflæstar og tengdar heildstæðu aðgangsstýrikerfi. E-Net ljósastýrikerfi frá GIRA er í öllum íbúðum sem býður upp á notkun smáforrits (app) í snjalltækjum til að stýra ljósum. Hita og loftræstikerfi pípulagnakerfi hússins (innan íbúða) er leitt í gegnum lóðrétta lagnastokka. Ofnalagnir eru innsteyptar rör-í-rör og ofnar eru með vönduðum ofnlokum frá Danfoss
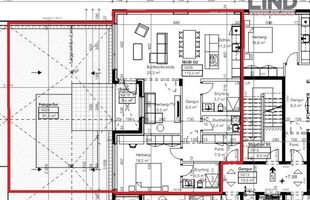
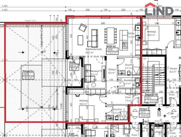
Eignin skiptist í: Anddyri, gang, 2 svefnherbergi, rúmgóða stofu/borðstofu, stóra þakverönd, eldhús með eyju, 2 baðherbergi og þvottaherbergi. Geymsla á jarðhæð.
Forstofa: Með harðparketi á gólfi og skápum. Fataskápar eru sprautulakkaðir með innvols frá Innval af vandaðri gerð. Inngangshurð er svargrá með viðaráferð frá Huet.
Eldhús: Með harðparketi á gólfi og glæsilegri innréttingu frá Noblessa með eyju. Borðplata er úr Meganite Carrara efni og með eldhúsvask sem felldur er í borðplötuna úr sama efni. Öll eldhústæki eru af vönduðustu gerð frá Siemens. Lýsing er undir efri skápum og ljúflokun á skúffum og skápum. Innbyggður kæliskápur, uppþvottavél og vínkælir fylgir. Auk þess innfelld kaffivél og innbyggður gufugleypir í eldhúseyju.
Stofa: Með harðparketi á gólfi og gluggum í tvær áttir. Stofa er opin við eldhús og rúmar setustofu og borðstofu. Fallegt útsýni úr stofu út á Reykjavíkurhöfn.
Þakverönd: Gengið er út á þakverönd frá stofu. Viðarverönd og fallegt útsýni að Reykjavíkurhöfn.
Baðherbergi I: Er afar glæsilegt með flísum frá Iris stone á bæði gólfi og veggjum. Falleg innrétting frá Noblessa. Meganite borðplata með innbyggðum vaski úr sama efni. Upphengt salerni með innbyggðum vatnskassa og falleg flísalögð sturta með innbyggðum blöndunartækjum frá Vola.
Hjónaherbergi: Er stórt með harðparketi á gólfi og miklu skápaplássi. Stór gluggi út að sérafnotafleti/verönd og baðherbergi II inn af hjónaherbergi.
Baðherbergi II: Virkilega glæsilegt með flísum frá Iris stone á bæði gólfi og veggjum. Falleg innrétting frá Noblessa. Meganite borðplata með innbyggðum vaski úr sama efni. Upphengt salerni með innbyggðum vatnskassa og falleg flísalögð sturta með innbyggðum blöndunartækjum frá Vola.
Svefnherbergi: Með harðparketi á gólfi og glugga sem snýr út að sérafnotafleti/verönd.
Þvottaherbergi: Með flísum á gólfi, innréttingu og vaski. Stæði fyrir þvottavél og þurrkara.
Geymsla: Er staðsett á geymslugangi og er 7,7 fermetrar að stærð.
Einstakt hús í hjarta borgarinnar.
Hafnartorg skartar 70 hágæða íbúðum, allt frá stílhreinum tveggja herbergja íbúðum upp í stórglæsilegar þakíbúðir með einstöku útsýni. Allar innréttingar og tæki eru sérvaldar af innanhúsarkitekt til að mynda eina stílhreina heild og eru öll tæki og tæknibúnaður fyrsta flokks. Allt ytra efnisval bygginganna er í hæsta gæðaflokki sem og allur lóðarfrágangur. Undir húsunum er stærsti bílakjallari landsins sem nær allt til Hörpunnar. Íbúðirnar eru frábærlega staðsettar í nálægð við menningu, sögu, verslun og þjónustu. Lúxus fasteignir í hjarta Reykjavíkur með iðandi mannlíf allt um kring.
Bílakjallari.
Í bílakjallaranum, sem er opinn allan sólarhringinn alla daga ársins. Mikið verður lagt upp úr frágangi hvað varðar lýsingu, merkingar og að auki verður fullkomið leiðsagnarkerfi til að auðvelda að finna stæði eða fá leiðbeiningar um hvar bílar eru staðsettir og hvernig eigi að komast að og frá þeim stað sem eigandi bíls er staddur í byggingunum. Íbúum hússins gefst kostur á að gera langtímasamning um leigu á bílastæði.
Byggingaraðili.
Frá árinu 1998 hefur ÞG Verk byggt fjölda heimila fyrir ánægðar fjölskyldur. Áreiðanleiki, gæði og notagildi eru einkunnarorð fyrirtækisins. Meginmarkmið ÞG Íbúða ehf er að skila góðu verki og eiga traust og áreiðanleg samskipti við viðskiptavini.
Hönnuðir.
Arkitektar hússins eru PKdM arkitektar. Stofan sem var stofnuð af Pálmari Kristmundssyni arkitekt hefur unnið til fjölda verðlauna hér heima og erlendis fyrir framúrskarandi hönnun.
Guðbjörg Magnúsdóttir, sem er meðal þekktustu innanhússhönnuða landsins, hannaði og sá um efnisval inn í allar íbúðir á 2-5 hæð húsanna.
Bókið skoðun hjá heimir@fastlind.is / 849-0672
*** Glæsileg lúxusíbúð með þakverönd í hjarta Reykjavíkur *** Íbúðin er laus við kaupsamning!
Bókið skoðun hjá:
Heimi Hallgrímssyni lögg. fasteignasala / heimir@fastlind.is / 849-0672
Lind fasteignasala og Heimir Hallgrímsson lögg. fasteignasali kynnir glæsilega 120,2 fermetra 3ja herbergja íbúð (206) með þakverönd og útsýni út á Reykjavíkurhöfn við Kolagötu 3 (Hafnartorgi) í nýlegu húsi byggðu af ÞG Verk í hjarta miðbæjarins. Íbúðin er frábærlega staðsett í nálægð við alla menningu og verslun og þjónustu sem Miðborgin hefur upp á að bjóða. Allar innréttingar og tæki eru sérvaldar af innanhúsarkitekt til að mynda eina stílhreina heild og eru öll tæki og tæknibúnaður fyrsta flokks. Allt ytra efnisval bygginganna er í hæsta gæðaflokki sem og allur lóðarfrágangur.
Íbúðin er hið glæsilegasta eins og fyrr greinir með fallegum innréttingum frá Noblessa og borðplötum úr vönduðu Meganite Carrara efni. Öll eldhústæki eru af vandaðri gerð frá Siemens og vínkæli í eldhúseyju. Aukin lofthæð og allar innihurðar extra háar og framleiddar af HBH smíðaverkstæði. Myndavéladyrasími og blöndunartæki af vönduðustu gerð frá Vola (Tengi). Rafkerfi útihurðir eru raflæstar og tengdar heildstæðu aðgangsstýrikerfi. E-Net ljósastýrikerfi frá GIRA er í öllum íbúðum sem býður upp á notkun smáforrits (app) í snjalltækjum til að stýra ljósum. Hita og loftræstikerfi pípulagnakerfi hússins (innan íbúða) er leitt í gegnum lóðrétta lagnastokka. Ofnalagnir eru innsteyptar rör-í-rör og ofnar eru með vönduðum ofnlokum frá Danfoss
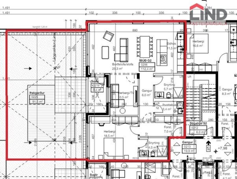
Eignin skiptist í: Anddyri, gang, 2 svefnherbergi, rúmgóða stofu/borðstofu, stóra þakverönd, eldhús með eyju, 2 baðherbergi og þvottaherbergi. Geymsla á jarðhæð.
Forstofa: Með harðparketi á gólfi og skápum. Fataskápar eru sprautulakkaðir með innvols frá Innval af vandaðri gerð. Inngangshurð er svargrá með viðaráferð frá Huet.
Eldhús: Með harðparketi á gólfi og glæsilegri innréttingu frá Noblessa með eyju. Borðplata er úr Meganite Carrara efni og með eldhúsvask sem felldur er í borðplötuna úr sama efni. Öll eldhústæki eru af vönduðustu gerð frá Siemens. Lýsing er undir efri skápum og ljúflokun á skúffum og skápum. Innbyggður kæliskápur, uppþvottavél og vínkælir fylgir. Auk þess innfelld kaffivél og innbyggður gufugleypir í eldhúseyju.
Stofa: Með harðparketi á gólfi og gluggum í tvær áttir. Stofa er opin við eldhús og rúmar setustofu og borðstofu. Fallegt útsýni úr stofu út á Reykjavíkurhöfn.
Þakverönd: Gengið er út á þakverönd frá stofu. Viðarverönd og fallegt útsýni að Reykjavíkurhöfn.
Baðherbergi I: Er afar glæsilegt með flísum frá Iris stone á bæði gólfi og veggjum. Falleg innrétting frá Noblessa. Meganite borðplata með innbyggðum vaski úr sama efni. Upphengt salerni með innbyggðum vatnskassa og falleg flísalögð sturta með innbyggðum blöndunartækjum frá Vola.
Hjónaherbergi: Er stórt með harðparketi á gólfi og miklu skápaplássi. Stór gluggi út að sérafnotafleti/verönd og baðherbergi II inn af hjónaherbergi.
Baðherbergi II: Virkilega glæsilegt með flísum frá Iris stone á bæði gólfi og veggjum. Falleg innrétting frá Noblessa. Meganite borðplata með innbyggðum vaski úr sama efni. Upphengt salerni með innbyggðum vatnskassa og falleg flísalögð sturta með innbyggðum blöndunartækjum frá Vola.
Svefnherbergi: Með harðparketi á gólfi og glugga sem snýr út að sérafnotafleti/verönd.
Þvottaherbergi: Með flísum á gólfi, innréttingu og vaski. Stæði fyrir þvottavél og þurrkara.
Geymsla: Er staðsett á geymslugangi og er 7,7 fermetrar að stærð.
Einstakt hús í hjarta borgarinnar.
Hafnartorg skartar 70 hágæða íbúðum, allt frá stílhreinum tveggja herbergja íbúðum upp í stórglæsilegar þakíbúðir með einstöku útsýni. Allar innréttingar og tæki eru sérvaldar af innanhúsarkitekt til að mynda eina stílhreina heild og eru öll tæki og tæknibúnaður fyrsta flokks. Allt ytra efnisval bygginganna er í hæsta gæðaflokki sem og allur lóðarfrágangur. Undir húsunum er stærsti bílakjallari landsins sem nær allt til Hörpunnar. Íbúðirnar eru frábærlega staðsettar í nálægð við menningu, sögu, verslun og þjónustu. Lúxus fasteignir í hjarta Reykjavíkur með iðandi mannlíf allt um kring.
Bílakjallari.
Í bílakjallaranum, sem er opinn allan sólarhringinn alla daga ársins. Mikið verður lagt upp úr frágangi hvað varðar lýsingu, merkingar og að auki verður fullkomið leiðsagnarkerfi til að auðvelda að finna stæði eða fá leiðbeiningar um hvar bílar eru staðsettir og hvernig eigi að komast að og frá þeim stað sem eigandi bíls er staddur í byggingunum. Íbúum hússins gefst kostur á að gera langtímasamning um leigu á bílastæði.
Byggingaraðili.
Frá árinu 1998 hefur ÞG Verk byggt fjölda heimila fyrir ánægðar fjölskyldur. Áreiðanleiki, gæði og notagildi eru einkunnarorð fyrirtækisins. Meginmarkmið ÞG Íbúða ehf er að skila góðu verki og eiga traust og áreiðanleg samskipti við viðskiptavini.
Hönnuðir.
Arkitektar hússins eru PKdM arkitektar. Stofan sem var stofnuð af Pálmari Kristmundssyni arkitekt hefur unnið til fjölda verðlauna hér heima og erlendis fyrir framúrskarandi hönnun.
Guðbjörg Magnúsdóttir, sem er meðal þekktustu innanhússhönnuða landsins, hannaði og sá um efnisval inn í allar íbúðir á 2-5 hæð húsanna.