Löggiltir fasteignasalar innan Félags fasteignasala:
Hannes Steindórsson
Bogi Molby Pétursson
Guðrún Antonsdóttir
Heimir Hallgrímsson
Hrafnkell P. H. Pálmason
Viðar Marinósson
Elías Haraldsson
Kristján Þórir Hauksson
Albert Bjarni Úlfarsson
Ragnar Þorsteinsson
Þórey Ólafsdóttir
Andri Freyr Halldórsson
Upplýsingar
Byggt 1995
162,9 m²
4 herb.
2 baðherb.
3 svefnh.
Þvottahús
Sameiginl. inngangur
Lyfta
Lýsing
Hannes Steindórsson og Gunnar Valsson kynna með stolti: Einstakar íbúðir í hjarta Hafnarfjarðar.
Vel skipulagðar útsýnisíbúðir með gólfsíðum gluggum, gólfhita og þaksvölum.
Allar upplýsingar veitir: Hannes Steindórsson s.699-5008 hannes@fastlind.is.
Hér má skoða verkefnið.
Allar íbúðir eru með stórum gólfsíðum gluggum, en lögð er rík áhersla á að veita góða dagsbirtu og að hámarka útsýni.
Gólfhiti í öllum íbúðum til að hámarka útsýni úr gólfsíðum gluggum og halda stílhreinu og fáguðu útliti.
Húsið er klætt að utan með áltré gluggum.
Efri íbúðir njóta sjávarútsýnis til suðurs og vesturs. Bogadregnir gluggar á stölluðum þaksvölum.
Hljóðdúkar í loftum með innfelldri lýsingu.
Sérsmíðaðar innréttingar, úr spónlagðri amerískri hnotu, frá VOKE III.
Dekton Steinn á borðum, liturinn er innblásin af sandsteini og sameinar hlýja beige- og gráa tóna sem skapar rólegt og tímalaust yfirbragð.
Vönduð tæki frá Miele og Elica. Vandaðar 60X120 flísar á baðherbergjum.
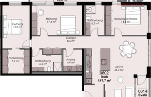
Íbúð 602 er 162,2 fm íbúð með þremur svefnherbergjum og tvennum svölum, þar á meðal 67 fm þaksvölum.
Allar nánari upplýsingar veita: Hannes Steindórsson s.699-5008 hannes@fastlind.is eða Gunnar Valsson s.699-3702 gunnar@fastlind.is
Vel skipulagðar útsýnisíbúðir með gólfsíðum gluggum, gólfhita og þaksvölum.
Allar upplýsingar veitir: Hannes Steindórsson s.699-5008 hannes@fastlind.is.
Hér má skoða verkefnið.
Allar íbúðir eru með stórum gólfsíðum gluggum, en lögð er rík áhersla á að veita góða dagsbirtu og að hámarka útsýni.
Gólfhiti í öllum íbúðum til að hámarka útsýni úr gólfsíðum gluggum og halda stílhreinu og fáguðu útliti.
Húsið er klætt að utan með áltré gluggum.
Efri íbúðir njóta sjávarútsýnis til suðurs og vesturs. Bogadregnir gluggar á stölluðum þaksvölum.
Hljóðdúkar í loftum með innfelldri lýsingu.
Sérsmíðaðar innréttingar, úr spónlagðri amerískri hnotu, frá VOKE III.
Dekton Steinn á borðum, liturinn er innblásin af sandsteini og sameinar hlýja beige- og gráa tóna sem skapar rólegt og tímalaust yfirbragð.
Vönduð tæki frá Miele og Elica. Vandaðar 60X120 flísar á baðherbergjum.
Íbúð 602 er 162,2 fm íbúð með þremur svefnherbergjum og tvennum svölum, þar á meðal 67 fm þaksvölum.
Allar nánari upplýsingar veita: Hannes Steindórsson s.699-5008 hannes@fastlind.is eða Gunnar Valsson s.699-3702 gunnar@fastlind.is