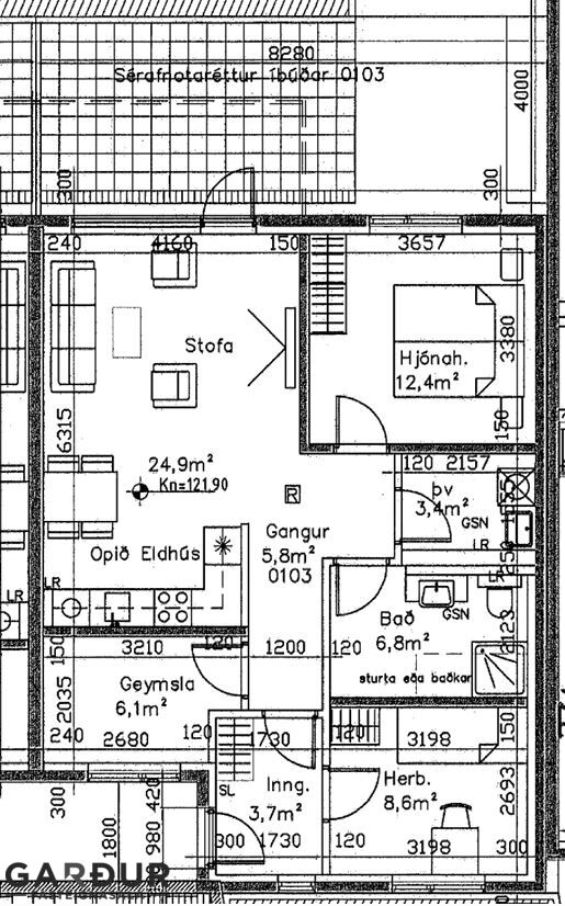
Austurkór, 203 Kópavogur