Upplýsingar
Byggt 1928
82,9 m²
3 herb.
1 baðherb.
2 svefnh.
Þvottahús
Sameiginl. inngangur
Laus strax
Lýsing
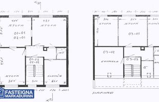
Fasteignamarkaðurinn ehf. s: 570-4500 kynnir til sölu virkilega fallega, bjarta og vel skipulaga 3ja herbergja 82,9 fermetra íbúð á 2. hæð í mjög fallegu og vel staðsettu fjórbýlishúsi við Barónsstíg í Reykjavík að meðtöldu 10,1 fermetra herbergi í risi sem er með þakglugga.
Stórir gluggar eru til suðausturs og norðvesturs og íbúðin því mjög björt. Fyrirhugað fasteignamat eignarinnar fyrir árið 2026 er kr. 68.350.000.-
Raflagnir hafa verið endurnýjaðar, sem og rafmagnstafla fyrir íbúðina og aðal rafmagnstafla hússins. Klóaklagnir undir húsi hafa verið endurnýjaðar. Báðar útidyrahurðir, frá fram- og baklóð hússins hafa verið endurnýjaðar.
Lýsing eignar:
Forstofa / hol, parketlagt og með fatahengi.
Svefnherbergi, stórt, parketlagt.
Samliggjandi skiptanlegar stofur, parketlagðar, mjög rúmgóðar og bjartar með miklum gluggum og mögulegt að setja svalir.
Eldhús, parketlagt og bjart með borðaðstöðu og upprunalegum fallegum innréttingum.
Baðherbergi, flísalagt gólf og flísalagður sturtuklefi.
Í risi fylgir íbúðinni 10,1 fermetra herbergi sem er með þakglugga.
Í kjallara hússins eru:
Sameiginlegt þvottaherbergi, með glugga og sér tenglum fyrir hverja íbúð.
Sameiginlegur kyndiklefi / hjólageymsla.
Stigahús er allt mjög snyrtilegt, nýlega linoleumdúklagt og málað og er vel umgengið.
Húsið að utan lítur vel út.
Baklóð, er tyrfð og með trjágróðri og nýlega hefur verið steypt lítil stétt við bakútgang. Mögulegt kynni að vera að setja bílstæði á baklóð hússins (að fengnu samþykki meðeigenda og skipulagsyfirvalda) og væri aðkoma að þeim þá í gegnum port við Laugaveg 86-94.
Staðsetning eignarinnar er virkilega góð í hjarta miðborgarinnar þaðan sem stutt er t.d. í Austubæjarskóla, leikskóla, veitingahús og fleira.
Allar nánari upplýsingar veittar á skrifstofu Fasteignamarkaðarins ehf. í síma 570-4500 eða á netfanginu fastmark@fastmark.is
Forsendur söluyfirlits:
Söluyfirlit er samið af fasteignasala í samræmi við ákvæði laga nr. 70/2015. Þær upplýsingar sem fram koma í söluyfirliti þessu eru sóttar í opinberar skrár, til seljanda sjálfs og eftir atvikum til húsfélags. Seljandi veitir upplýsingar um eign í samræmi við upplýsingaskyldu laga um fasteignakaup nr. 40/2002. Fasteignasali sannreynir að þær upplýsingar séu réttar með sjónskoðun á eigninni. Fasteignasali getur ekki fullyrt um ástand og eiginleika þeirra hluta fasteigna sem ekki eru aðgengilegir og sjást ekki berum augum, t.d. lagnir, dren, skólp og þak.
Skoðunarskylda:
Í lögum um fasteignakaup nr. 40/2002 er kveðið á um ríka skoðunarskyldu kaupenda á fasteignum. Forsendur söluyfirlits:
Söluyfirlit er samið af fasteignasala í samræmi við ákvæði laga nr. 70/2015. Þær upplýsingar sem fram koma í söluyfirliti þessu eru sóttar í opinberar skrár, til seljanda sjálfs og eftir atvikum til húsfélags. Seljandi veitir upplýsingar um eign í samræmi við upplýsingaskyldu laga um fasteignakaup nr. 40/2002. Fasteignasali sannreynir að þær upplýsingar séu réttar með sjónskoðun á eigninni. Fasteignasali getur ekki fullyrt um ástand og eiginleika þeirra hluta fasteigna sem ekki eru aðgengilegir og sjást ekki berum augum, t.d. lagnir, dren, skólp og þak.
Skoðunarskylda:
Í lögum um fasteignakaup nr. 40/2002 er kveðið á um ríka skoðunarskyldu kaupenda á fasteignum. Vill Fasteignamarkaðurinn ehf. fasteignasala því benda væntanlegum kaupendum á að kynna sér vel ástand fasteigna fyrir kauptilboðsgerð og leita til þar til bærra sérfræðinga um nánari skoðun ef þurfa þykir.
Gjöld sem kaupandi þarf að standa straum af vegna kaupanna:
1. Stimpilgjald af kaupsamningi, fyrstu kaup (0,4%), almenn kaup (0,8%), lögaðilar (1,6%) af heildarfasteignamati.
2. Þinglýsingargjald af kaupsamningi, veðskuldabréfi, mögulegu veðleyfi o.fl. - kr. 2.700 af hverju skjali.
3. Lántökugjald lánastofnunar er skv. verðskrá viðkomandi lánastofnunar. Nánari upplýsingar á t.d. heimasíðu lánastofnana.
4. Umsýslugjald til fasteignasölu skv. kauptilboði.því benda væntanlegum kaupendum á að kynna sér vel ástand fasteigna fyrir kauptilboðsgerð og leita til þar til bærra sérfræðinga um nánari skoðun ef þurfa þykir.
Stórir gluggar eru til suðausturs og norðvesturs og íbúðin því mjög björt. Fyrirhugað fasteignamat eignarinnar fyrir árið 2026 er kr. 68.350.000.-
Raflagnir hafa verið endurnýjaðar, sem og rafmagnstafla fyrir íbúðina og aðal rafmagnstafla hússins. Klóaklagnir undir húsi hafa verið endurnýjaðar. Báðar útidyrahurðir, frá fram- og baklóð hússins hafa verið endurnýjaðar.
Lýsing eignar:
Forstofa / hol, parketlagt og með fatahengi.
Svefnherbergi, stórt, parketlagt.
Samliggjandi skiptanlegar stofur, parketlagðar, mjög rúmgóðar og bjartar með miklum gluggum og mögulegt að setja svalir.
Eldhús, parketlagt og bjart með borðaðstöðu og upprunalegum fallegum innréttingum.
Baðherbergi, flísalagt gólf og flísalagður sturtuklefi.
Í risi fylgir íbúðinni 10,1 fermetra herbergi sem er með þakglugga.
Í kjallara hússins eru:
Sameiginlegt þvottaherbergi, með glugga og sér tenglum fyrir hverja íbúð.
Sameiginlegur kyndiklefi / hjólageymsla.
Stigahús er allt mjög snyrtilegt, nýlega linoleumdúklagt og málað og er vel umgengið.
Húsið að utan lítur vel út.
Baklóð, er tyrfð og með trjágróðri og nýlega hefur verið steypt lítil stétt við bakútgang. Mögulegt kynni að vera að setja bílstæði á baklóð hússins (að fengnu samþykki meðeigenda og skipulagsyfirvalda) og væri aðkoma að þeim þá í gegnum port við Laugaveg 86-94.
Staðsetning eignarinnar er virkilega góð í hjarta miðborgarinnar þaðan sem stutt er t.d. í Austubæjarskóla, leikskóla, veitingahús og fleira.
Allar nánari upplýsingar veittar á skrifstofu Fasteignamarkaðarins ehf. í síma 570-4500 eða á netfanginu fastmark@fastmark.is
Forsendur söluyfirlits:
Söluyfirlit er samið af fasteignasala í samræmi við ákvæði laga nr. 70/2015. Þær upplýsingar sem fram koma í söluyfirliti þessu eru sóttar í opinberar skrár, til seljanda sjálfs og eftir atvikum til húsfélags. Seljandi veitir upplýsingar um eign í samræmi við upplýsingaskyldu laga um fasteignakaup nr. 40/2002. Fasteignasali sannreynir að þær upplýsingar séu réttar með sjónskoðun á eigninni. Fasteignasali getur ekki fullyrt um ástand og eiginleika þeirra hluta fasteigna sem ekki eru aðgengilegir og sjást ekki berum augum, t.d. lagnir, dren, skólp og þak.
Skoðunarskylda:
Í lögum um fasteignakaup nr. 40/2002 er kveðið á um ríka skoðunarskyldu kaupenda á fasteignum. Forsendur söluyfirlits:
Söluyfirlit er samið af fasteignasala í samræmi við ákvæði laga nr. 70/2015. Þær upplýsingar sem fram koma í söluyfirliti þessu eru sóttar í opinberar skrár, til seljanda sjálfs og eftir atvikum til húsfélags. Seljandi veitir upplýsingar um eign í samræmi við upplýsingaskyldu laga um fasteignakaup nr. 40/2002. Fasteignasali sannreynir að þær upplýsingar séu réttar með sjónskoðun á eigninni. Fasteignasali getur ekki fullyrt um ástand og eiginleika þeirra hluta fasteigna sem ekki eru aðgengilegir og sjást ekki berum augum, t.d. lagnir, dren, skólp og þak.
Skoðunarskylda:
Í lögum um fasteignakaup nr. 40/2002 er kveðið á um ríka skoðunarskyldu kaupenda á fasteignum. Vill Fasteignamarkaðurinn ehf. fasteignasala því benda væntanlegum kaupendum á að kynna sér vel ástand fasteigna fyrir kauptilboðsgerð og leita til þar til bærra sérfræðinga um nánari skoðun ef þurfa þykir.
Gjöld sem kaupandi þarf að standa straum af vegna kaupanna:
1. Stimpilgjald af kaupsamningi, fyrstu kaup (0,4%), almenn kaup (0,8%), lögaðilar (1,6%) af heildarfasteignamati.
2. Þinglýsingargjald af kaupsamningi, veðskuldabréfi, mögulegu veðleyfi o.fl. - kr. 2.700 af hverju skjali.
3. Lántökugjald lánastofnunar er skv. verðskrá viðkomandi lánastofnunar. Nánari upplýsingar á t.d. heimasíðu lánastofnana.
4. Umsýslugjald til fasteignasölu skv. kauptilboði.því benda væntanlegum kaupendum á að kynna sér vel ástand fasteigna fyrir kauptilboðsgerð og leita til þar til bærra sérfræðinga um nánari skoðun ef þurfa þykir.