Upplýsingar
Byggt 2025
203,3 m²
4 herb.
2 baðherb.
3 svefnh.
Þvottahús
Útsýni
Sameiginl. inngangur
Bílastæði
Lyfta
Laus strax
Lýsing
Betri Stofan og Jason Kristinn Ólafsson, sími 7751515 kynnir: Glæsilegar nýjar íbúðir við Vetrarbraut 2-4, í nýju og heillandi og nýlegu hverfi í Garðabæ við golfvöll GKG.
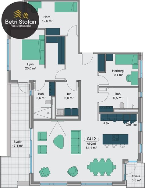
Íbúð 412 er 203,3 fermetra endaíbúð á fjórðu hæð, efstu hæð sem er með gólfhita. Steinn á borðplötum og loftskiptikerfi. Eigninni fylgir bílskúr ásamt tveimur bílastæðum í lokaðri bílageymslu. Lofthæðin er góð í íbúðinni. Fallegt útsýni. Tvennar svalir. Nálægt Vífilsstöðum og Heiðmörk.
https://vetrarbraut.is/
Nánari lýsing: Eignin skiptist í anddyri, hol, eldhús, borðstofu og stofu í rúmgóðu og björtu alrými þaðan sem gengið er út á tvennar svalir. Glæsileg rúmgóð hjónasvíta með fataherbergi og sér baðherbergi, úr hjónasvítu er einnig útgengt á þaksvalir. Aukasvefnherbergi eru tvö, bæði rúmgóð með fataskápum, tvö baðherbergi og þvottahús innan íbúðar.
Eldhús er vel útbúið, sérsmíðaðar Voke III spónlagðar eikar innréttingar með innfelldum gripum, á borðplötum er kvarts steinn. Vönduð tæki eru í eldhúsi innbyggður Siemens ísskápur, uppþvottavél og vínskápur. Gaggenau ofn og sambyggður ofn/örbylgjuofn (Combi ofn) í vinnuhæð, helluborð með innbyggðri viftu, eldhús- og blöndunartæki að vandaðri gerð.
Íbúðin skilast án gólfefna utan baðherbergja og þvottahús sem skilast flísalögð.
Rými eru hönnuð með áherslu á loftgæði, hljóðvist og náttúrulega birtu. Hver íbúð hefur loftskiptikerfi sem stjórnað er innan íbúðar, slíkt eykur loftgæði og stuðlar að heilnæmu innilofti.
Húsið er klætt flísum og álkæðningu, slétt og bára. klæðningar eru í mismunandi litum, náttúrulegum jarðlitum sem tengir bygginguna umhverfinu, lögð er áhersla á að húsin séu viðhaldslétt, flísar og álklæðningar og ál/tré gluggar.
Um er að ræða bjartar og fallegar íbúðir í vandaðri nýbyggingu í einstöku umhverfi, nálægð við Golfvöll GKG, útivistarsvæði Heiðmerkur, nýja íþróttaaðstöðu Stjörnunnar svo fátt sé upptalið í skemmtilegu nýju hverfi. Með öllum íbúðum fylgir bílastæði í lokaðri bílageymslu í það minnsta eitt fyrir hverja íbúð og fylgja bílskúrar sumum íbúðum að auki.
Vandað hefur verið að allri hönnun innan sem utan.
Byggingar eru hannaðar af Arkís, aðalhönnuður er Arnar Þór Jónsson arkitekt og hafði Thelma Guðmundsdóttir innanhúsarkitekt umsjón með innanhúshönnun. Hverfið í heild, Vetrarmýri, er hannað af Sigurði Einarssyni arkitekt og skipulagshönnuði hjá Batteríinu.
Nánari upplýsingar veita:
Jason Kristinn Ólafsson, í síma 775-1515, tölvupóstur jason@betristofan.is
Guðbjörg Guðmundsdóttir , í síma 899-5533, tölvupóstur gudbjorg@betristofan.is.
Dagrún Davíðsdóttir, í síma 866-1763, tölupóstur dagrun@betristofan.is
Þórhallur Biering Guðjónsson, í síma 896-8232, tölvupóstur thorhallur@betristofan.is
Íbúð 412 er 203,3 fermetra endaíbúð á fjórðu hæð, efstu hæð sem er með gólfhita. Steinn á borðplötum og loftskiptikerfi. Eigninni fylgir bílskúr ásamt tveimur bílastæðum í lokaðri bílageymslu. Lofthæðin er góð í íbúðinni. Fallegt útsýni. Tvennar svalir. Nálægt Vífilsstöðum og Heiðmörk.
https://vetrarbraut.is/
Nánari lýsing: Eignin skiptist í anddyri, hol, eldhús, borðstofu og stofu í rúmgóðu og björtu alrými þaðan sem gengið er út á tvennar svalir. Glæsileg rúmgóð hjónasvíta með fataherbergi og sér baðherbergi, úr hjónasvítu er einnig útgengt á þaksvalir. Aukasvefnherbergi eru tvö, bæði rúmgóð með fataskápum, tvö baðherbergi og þvottahús innan íbúðar.
Eldhús er vel útbúið, sérsmíðaðar Voke III spónlagðar eikar innréttingar með innfelldum gripum, á borðplötum er kvarts steinn. Vönduð tæki eru í eldhúsi innbyggður Siemens ísskápur, uppþvottavél og vínskápur. Gaggenau ofn og sambyggður ofn/örbylgjuofn (Combi ofn) í vinnuhæð, helluborð með innbyggðri viftu, eldhús- og blöndunartæki að vandaðri gerð.
Íbúðin skilast án gólfefna utan baðherbergja og þvottahús sem skilast flísalögð.
Rými eru hönnuð með áherslu á loftgæði, hljóðvist og náttúrulega birtu. Hver íbúð hefur loftskiptikerfi sem stjórnað er innan íbúðar, slíkt eykur loftgæði og stuðlar að heilnæmu innilofti.
Húsið er klætt flísum og álkæðningu, slétt og bára. klæðningar eru í mismunandi litum, náttúrulegum jarðlitum sem tengir bygginguna umhverfinu, lögð er áhersla á að húsin séu viðhaldslétt, flísar og álklæðningar og ál/tré gluggar.
Um er að ræða bjartar og fallegar íbúðir í vandaðri nýbyggingu í einstöku umhverfi, nálægð við Golfvöll GKG, útivistarsvæði Heiðmerkur, nýja íþróttaaðstöðu Stjörnunnar svo fátt sé upptalið í skemmtilegu nýju hverfi. Með öllum íbúðum fylgir bílastæði í lokaðri bílageymslu í það minnsta eitt fyrir hverja íbúð og fylgja bílskúrar sumum íbúðum að auki.
Vandað hefur verið að allri hönnun innan sem utan.
Byggingar eru hannaðar af Arkís, aðalhönnuður er Arnar Þór Jónsson arkitekt og hafði Thelma Guðmundsdóttir innanhúsarkitekt umsjón með innanhúshönnun. Hverfið í heild, Vetrarmýri, er hannað af Sigurði Einarssyni arkitekt og skipulagshönnuði hjá Batteríinu.
Nánari upplýsingar veita:
Jason Kristinn Ólafsson, í síma 775-1515, tölvupóstur jason@betristofan.is
Guðbjörg Guðmundsdóttir , í síma 899-5533, tölvupóstur gudbjorg@betristofan.is.
Dagrún Davíðsdóttir, í síma 866-1763, tölupóstur dagrun@betristofan.is
Þórhallur Biering Guðjónsson, í síma 896-8232, tölvupóstur thorhallur@betristofan.is
Gjöld sem kaupandi þarf að standa straum af ef að kaupum verður:
1. Stimpilgjald af fasteignamati fasteignar er 0.8%, en 0,4% fyrir fyrstu kaup og 1,6% fyrir lögaðila.
2. Þinglýsingargjald: kaupsamningi, skuldabréfi, veðleyfi, afsali o.s.frv. er kr. 2.700 af hverju skjali.
3. Lántökukostnaður samkvæmt verðskrá viðkomandi lánastofnunar.
4. Umsýslugjald til fasteignasölu skv. gjaldskrá.