Löggiltir fasteignasalar innan Félags fasteignasala:
Jóhannes E. Levy
Upplýsingar
Byggt 1990
155,1 m²
7 herb.
1 baðherb.
5 svefnh.
Þvottahús
Útsýni
Sameiginl. inngangur
Lýsing
Jóhannes E. Levy fasteignasali kynnir: Sjö herbergja íbúð á tveimur hæðum, hæð og ris í reisulegu fjölbýli miðsvæðis í Mosfellsbæ.
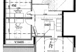
Eignin skiptist í forstofu, tvö svefnherbergi, rúmgott eldhús, þvottahús, baðherbergi, stofu og borðstofu sem er allt á þriðju hæð. Uppi um stiga úr stofu er gott sjónvarpshol og þrjú svefnherbergi. Íbúð, fastanúmer 2085012, íbúðareign merkt 01 0301 er skráð 155,1 m2 hjá HMS. Gólfflötur efri hæðar er mun stærri en birt stærð gefur til kynna þar sem stór hluti er undir súð.
NÁNARI LÝSING:
Neðri hæð: Gengið er inn í forstofu með flísum á gólfi og góðum fataskáp. Þar við eru 2 svefnherbegi með dúk á gólfi og fataskáp. Eldhúsið er stórt og bjart með ljósri innréttingu, tveimur útsýnisgluggum, borðkrók og gegnheilu eikarparketi á gólfi. Inn af eldhúsinu er svo þvottahúsið dúklagt. Baðherbergið er flísalagt í hólf og gólf með ljósri innréttingu með handlaug, salerni og baðkari. Stofan og borðstofan eru samliggjandi og bjartar þar sem hátt er til lofts, parketlagt með gegnheilli eik og útgengi á svalir (6,4 m2). Íbúðarareign á 3. hæð telst 104,1 m2 og 4. hæð 51,0 m2.
Efri hæð. Þegar komið er upp á efri hæð er gott sjónvarps og alrými parketlagt með gegnheilli eik, úr alrýminu er gengið inn í þrjú svefnherbergi; eitt stórt með dúk á gólfi og tvö minni með gegnheilli eik á gólfum og þakgluggum. Á stigagangi fyrir framan íbúðina er sérgeymsla svo er hjólageymsla í sameign á jarðhæð ásamt sorpgeymslu.
Sameign er snyrtileg með nýju teppi á stiganum og nýlega málað. Nýbúið er að skipta um þakjárn á húsinu og yfirfara þakið í heild sinni. Fallegt útsýni er m.a. til Esjunnar og Fellanna í næsta nágrenni.
Vel skipulögð og fjölskylduvæn eign á góðum stað, þar sem stutt er í alla helstu þjónustu, leikskóla, grunnskóla, framhaldsskóla & íþróttir, heilsugæslu o.s.frv.
Nánari upplýsingar veitir
Jóhannes E. Levy, Löggiltur fasteignasali, í síma 7721050 eða tölvupósti
Eignin skiptist í forstofu, tvö svefnherbergi, rúmgott eldhús, þvottahús, baðherbergi, stofu og borðstofu sem er allt á þriðju hæð. Uppi um stiga úr stofu er gott sjónvarpshol og þrjú svefnherbergi. Íbúð, fastanúmer 2085012, íbúðareign merkt 01 0301 er skráð 155,1 m2 hjá HMS. Gólfflötur efri hæðar er mun stærri en birt stærð gefur til kynna þar sem stór hluti er undir súð.
NÁNARI LÝSING:
Neðri hæð: Gengið er inn í forstofu með flísum á gólfi og góðum fataskáp. Þar við eru 2 svefnherbegi með dúk á gólfi og fataskáp. Eldhúsið er stórt og bjart með ljósri innréttingu, tveimur útsýnisgluggum, borðkrók og gegnheilu eikarparketi á gólfi. Inn af eldhúsinu er svo þvottahúsið dúklagt. Baðherbergið er flísalagt í hólf og gólf með ljósri innréttingu með handlaug, salerni og baðkari. Stofan og borðstofan eru samliggjandi og bjartar þar sem hátt er til lofts, parketlagt með gegnheilli eik og útgengi á svalir (6,4 m2). Íbúðarareign á 3. hæð telst 104,1 m2 og 4. hæð 51,0 m2.
Efri hæð. Þegar komið er upp á efri hæð er gott sjónvarps og alrými parketlagt með gegnheilli eik, úr alrýminu er gengið inn í þrjú svefnherbergi; eitt stórt með dúk á gólfi og tvö minni með gegnheilli eik á gólfum og þakgluggum. Á stigagangi fyrir framan íbúðina er sérgeymsla svo er hjólageymsla í sameign á jarðhæð ásamt sorpgeymslu.
Sameign er snyrtileg með nýju teppi á stiganum og nýlega málað. Nýbúið er að skipta um þakjárn á húsinu og yfirfara þakið í heild sinni. Fallegt útsýni er m.a. til Esjunnar og Fellanna í næsta nágrenni.
Vel skipulögð og fjölskylduvæn eign á góðum stað, þar sem stutt er í alla helstu þjónustu, leikskóla, grunnskóla, framhaldsskóla & íþróttir, heilsugæslu o.s.frv.
Nánari upplýsingar veitir
Jóhannes E. Levy, Löggiltur fasteignasali, í síma 7721050 eða tölvupósti