Upplýsingar
Byggt 2024
113,7 m²
4 herb.
3 svefnh.
Bílastæði
Lyfta
Lýsing
BÓKIÐ SKOÐUN - SÝNUM SAMDÆGURS - Vala s. 791-7500, Einar s. 888-7979, Hlynur s. 698-2603,
Helgi s. 893-2233.
Hraunhamar kynnir: Glæsilega nýbyggingu á frábærum stað í Hamraneshverfinu í Hafnarfirði.
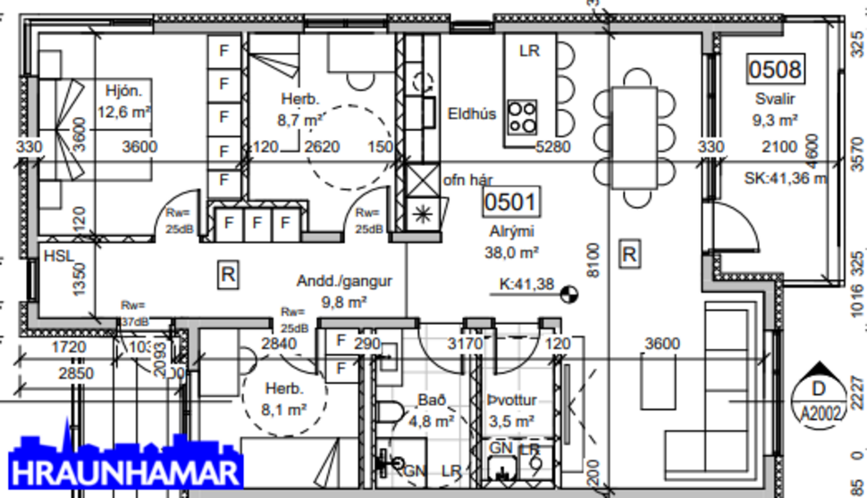
Íbúð 501 er 4ja herbergja íbúð skráð 113,7 fm. Merkt bílastæði við sérinngang.
58 íbúðir er í húsinu
2ja,3ja og 4ra herberga
Stærð frá 87,7 fm til 173,7 fm.
Verð frá 73,9 millj.
Tilbúnar til afhendingar
Nánari lýsing skv. teikningu :
Sérinngangur
Björt forstofa, fataskápur á gangi.
Gott opið alrými,með stórum gluggum.
Björt stofa og borðstofa og þaðan útgengt út á svalir.
Eldhúsinnrétting er frá Nobilia, steinplata á borðum.
Eldhúsinnrétting er fullbúin með blöndunartækjum og eldhústækjum þ.e. helluborði, viftu í innréttingu eða eyjuháfi yfir helluborði þar sem það á við, innbyggðum ísskáp, innbyggðri uppþvottavél og ofni.
Rúmgott svefnherbergi með skápum.
Hjónaherbergi með skápum.
Flísalagt baðherbergi með innréttingu, upphengdu salerni og sturta.
Flísalagt þvottaherbergi
Bókið skoðun hjá sölumönnum Hraunhamars:
Valgerður Gissurardóttir löggiltur fasteignasali s.791-7500, vala@hraunhamar.is
Hlynur Halldórsson, löggiltur fasteignasali, s. 698-2603, hlynur@hraunhamar.is
Einar Örn Ágústsson, löggiltur fasteignasali, s. 888-7979, einar@hraunhamar.is
Helgi Jón Harðarson, sölust. s. 893-2233, helgi@hraunhamar.is
Glódís Helgadóttir, löggiltur fasteignasali s. 659-0510, glodis@hraunhamar.is
Gjöld sem kaupandi þarf að standa straum af vegna kaupanna:
1. Stimpilgjald af kaupsamningi, fyrstu kaup (0,4%), almenn kaup (0,8%), lögaðilar (1,6%) af heildarfasteignamati.
2. Þinglýsingargjald af kaupsamningi, veðskuldabréfi, mögulegu veðleyfi o.fl. – kr. 2.700 kr. af hverju skjali.
3. Lántökugjald lánastofnunar er skv. verðskrá viðkomandi lánastofnunar.
4. Umsýslugjald til fasteignasölu skv. þjónustusamningi
Hraunhamar er elsta fasteignasala Hafnarfjarðar, stofnuð 1983 og fagnar því 40 ára afmæli á árinu 2023.
Hraunhamar, í farabroddi í 40 ár ! – Hraunhamar.is
Smelltu hér til að fá frítt söluverðmat.
Helgi s. 893-2233.
Hraunhamar kynnir: Glæsilega nýbyggingu á frábærum stað í Hamraneshverfinu í Hafnarfirði.
Íbúð 501 er 4ja herbergja íbúð skráð 113,7 fm. Merkt bílastæði við sérinngang.
58 íbúðir er í húsinu
2ja,3ja og 4ra herberga
Stærð frá 87,7 fm til 173,7 fm.
Verð frá 73,9 millj.
Tilbúnar til afhendingar
Nánari lýsing skv. teikningu :
Sérinngangur
Björt forstofa, fataskápur á gangi.
Gott opið alrými,með stórum gluggum.
Björt stofa og borðstofa og þaðan útgengt út á svalir.
Eldhúsinnrétting er frá Nobilia, steinplata á borðum.
Eldhúsinnrétting er fullbúin með blöndunartækjum og eldhústækjum þ.e. helluborði, viftu í innréttingu eða eyjuháfi yfir helluborði þar sem það á við, innbyggðum ísskáp, innbyggðri uppþvottavél og ofni.
Rúmgott svefnherbergi með skápum.
Hjónaherbergi með skápum.
Flísalagt baðherbergi með innréttingu, upphengdu salerni og sturta.
Flísalagt þvottaherbergi
Bókið skoðun hjá sölumönnum Hraunhamars:
Valgerður Gissurardóttir löggiltur fasteignasali s.791-7500, vala@hraunhamar.is
Hlynur Halldórsson, löggiltur fasteignasali, s. 698-2603, hlynur@hraunhamar.is
Einar Örn Ágústsson, löggiltur fasteignasali, s. 888-7979, einar@hraunhamar.is
Helgi Jón Harðarson, sölust. s. 893-2233, helgi@hraunhamar.is
Glódís Helgadóttir, löggiltur fasteignasali s. 659-0510, glodis@hraunhamar.is
Gjöld sem kaupandi þarf að standa straum af vegna kaupanna:
1. Stimpilgjald af kaupsamningi, fyrstu kaup (0,4%), almenn kaup (0,8%), lögaðilar (1,6%) af heildarfasteignamati.
2. Þinglýsingargjald af kaupsamningi, veðskuldabréfi, mögulegu veðleyfi o.fl. – kr. 2.700 kr. af hverju skjali.
3. Lántökugjald lánastofnunar er skv. verðskrá viðkomandi lánastofnunar.
4. Umsýslugjald til fasteignasölu skv. þjónustusamningi
Hraunhamar er elsta fasteignasala Hafnarfjarðar, stofnuð 1983 og fagnar því 40 ára afmæli á árinu 2023.
Hraunhamar, í farabroddi í 40 ár ! – Hraunhamar.is
Smelltu hér til að fá frítt söluverðmat.