Löggiltir fasteignasalar innan Félags fasteignasala:
Heiðrekur Þór Guðmundsson
Elísabet Kvaran
Karólína Íris Jónsdóttir
Vista
fjölbýlishús

Hafnarbraut 12C

200 Kópavogur

98.900.000 kr.

818.031 þ.kr./m2
Fasteignanúmer

F2510808

Fasteignamat

86.100.000 kr.

Brunabótamat

69.810.000 kr.

Áhvílandi

0 kr.

Arion banki – Reikna lán
Upplýsingar
Verðsaga
svg
Byggt 2020
svg
120,9 m²
svg
4 herb.
svg
1 baðherb.
svg
3 svefnh.
svg
Þvottahús
svg
Sameiginl. inngangur
svg
Bílastæði
svg
Lyfta
svg
Svalir

Lýsing

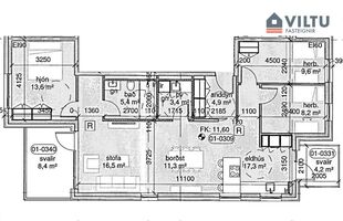
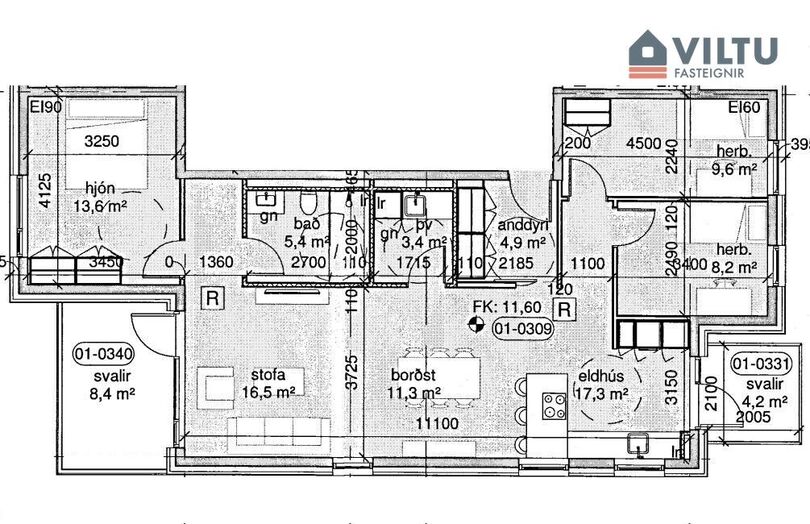
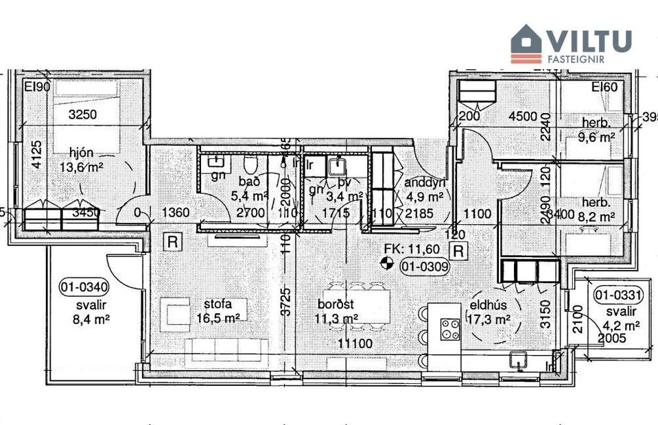
Viltu fasteignir kynna Hafnarbraut 12C, 200 Kópavogur (Kársnes) Falleg, björt og rúmgóð 4ra herbergja íbúð á 3. hæð ásamt stæði í lokaðir í bílageymslu. Svalir bæði til suðurs og norðurs. Eignin skiptist í forstofu, samliggjandi stofu/borðstofu og eldhús, þrjú svefnherbergi, baðherbergi, þvottahús/geymslu, tvennar svalir og stæði í bílageymslu með möguleika á rafbílahleðslu.

Á sölusíðu eignarinnar er hægt að nálgast söluyfirlit ásamt öðrum sölugögnum eignarinnar.
Einni er hægt að vakta eignina og gera tilboð í hana

Eignin er skráð 120,9 m2 / Fasteignamat 2026 - 94.050.000 kr.

Nánari lýsing:
Forstofa: Frá sameign er gengið í góða forstofu með tvöföldum fataskáp. Flísar á gólfi
Stofa/borðstofa: Í rúmgóðu, opnu og björtu rými og með harðparket á gólfi. Frá stofu er gengið út á rúmgóðar suðursvalir íbúðarinnar.
Eldhús: Eldhúsið er með L-laga innréttingu og tækjavegg. Ofn í vinnuhæð, innbygður ísskápur og upþvottvél. Að stofu er skagi sem hægt er að sitja við. Harðparket á gólfi. Frá eldhúsi eru svalir til norðurs, fullkomnar fyrir grillið.
Baðherbergi: Flísalagt í hólf og gólf. Góð innrétting, "labb-inn" sturta, og upphengt klósett og handklæðaofn.
Hjónaherbergi : Mjög rúmgott og bjart með parket á gólfi og tvöföldum fataskáp.
Svefnherbergi I: Rúmgott og bjart herbergi með harðparket á gólfi og fataskáp
Svefnherbergi II: Bjart og gott herbergi með harðparketi á gólfi. Fataskápur
Þvottahús: Flísar á gólfi. Góð innrétting með geymsluplássi og plássi fyrir þvottavél og þurrkara. Ræstivaskur.
Svalir: Út frá stofu eru góðar svalir til suðurs og frá eldhúsi eru "grillsvalir" til norðurs.
Geymsla: Í sameign í kjallara er rúmgóð geymsla.
Stæði bílageymslu: Í bílageymslu í kjallara er sér bílastæði fylgir íbúðinni og gert ráð fyrir rafbílahleðslu.

Eignin er á frábærum stað vestast á Kársnesi þar sem stutt er í þjónustu, skóla/leikskóla og útvist!

Nánari upplýsingar veitur Heiðrekur Guðmundsson, löggiltur fasteignasali í 845-9000 eða heidrekur@viltu.is

Viltu fasteignir bjóða fasta söluþóknun 995.000 kr.
Allt innifalið. - Ekkert vesen
Kynntu þér málið á Viltu.is

Fyrirvarar:

Í lögum um fasteignakaup nr. 40/2002 er kveðið á um ríka skoðunarskyldu kaupenda á fasteignum. Vill seljandi því skora á væntanlega kaupendur að kynna sér vel ástand fasteignarinnar fyrir kauptilboðsgerð og leita til þar til bærra sérfræðinga um nánari skoðun.

Þær upplýsingar sem fram koma í söluyfirliti þessu eru sóttar í opinberar skrár, til seljanda sjálfs og eftir atvikum til húsfélags. Seljandi veitir upplýsingar um eign í samræmi við upplýsingaskyldu laga um fasteignakaup nr. 40/2002.

img
Heiðrekur Þór Guðmundsson
Lögg.fasteignasali innan félags fasteignasala
Viltu fasteignir
Viltu fasteignir

Viltu fasteignir

phone
img

Heiðrekur Þór Guðmundsson

Ár
Fasteignamat
Kaupverð
Stærð
Fermetraverð
17. mar. 2021
59.600.000 kr.
64.400.000 kr.
120.9 m²
532.672 kr.
Byggt á upplýsingum úr Þjóðskrá Íslands frá 2006-2025
Viltu fasteignir

Viltu fasteignir

phone

Heiðrekur Þór Guðmundsson