Löggiltir fasteignasalar innan Félags fasteignasala:
Aðalheiður Karlsdóttir
Upplýsingar
400 m²
5 herb.
3 baðherb.
3 svefnh.
Þvottahús
Bílskúr
Sérinngangur
Lýsing
SPÁNAREIGNIR KYNNIR:
*GLÆSILEGAR GOLFVILLUR*-*FYRSTA LÍNA - FRÁBÆRT ÚTSÝNI YFIR GOLFVÖLLINN*
Sérlega vönduð og falleg, vel skipulögð og rúmgóð og ný einbýlishús á tveimur hæðum ásamt stórum kjallara í stuttu göngufæri frá klúbbhúsinu við hinn glæsilega La Finca golfvöll. Góð sér lóð með einkasundlaug og OG FRÁBÆRU ÚTSÝNI YFIR GOLFVÖLLINN. Um 30 mín akstur suður frá Alicante. Sérlega glæsileg hús með góðu alrými, þremur svefnherbergjum, fataherbergi og þremur baðherbergjum. Stór sér lóð. Lokaður bílskúr fyrir 2-3 bíla.
60 GOLFHRINGIR Á LA FINCA GOLFVELLINUM FYLGIR MEÐ Í VERÐINU.
Allar upplýsingar gefa:
Aðalheiður Karlsdóttir, löggiltur fasteignasali. GSM 00354 893 2495. adalheidur@spanareignir.is,
Berta Hawkins, löggiltur fasteignasali, berta@spanareignir.is GSM 0034 615 112 869,
Nánari lýsing:
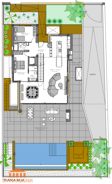
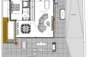
Falleg aðkoma er að húsinu og skiptist það í gott eldhús, með góðri tengingu við útisvæði og stofu/borðstofu í rúmgóðu alrými.
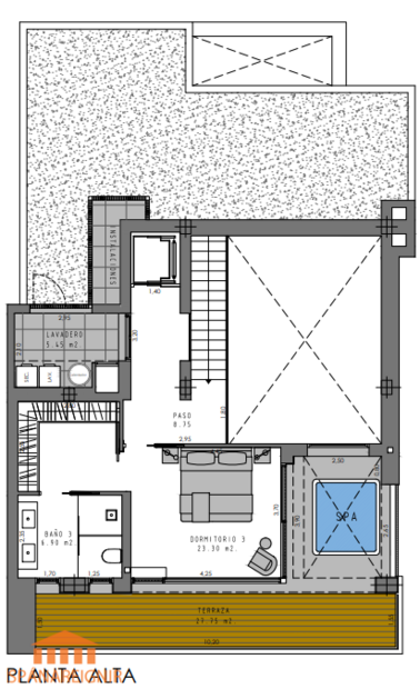
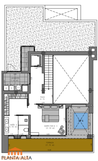
Svefnherbergi með sér baðherbergi og auk þess eitt svefnherbergi til viðbótar og annað baðherbergi. Á efri hæð er stór lúxus hjónasvíta með fataherbergi og sér baðherbergi og útgengi út á stórar svalir með útsýni yfir golfvöllinn og möguleika á heitum pott.
Út frá stofunni er stór verönd og góður, lokaður garður með flottri aðstöðu til að njóta sólar, grilla ofl. Einkasundlaug. Einstakt útsýni yfir La Finca golfvöllinn og gróið og fallegt umhverfi.
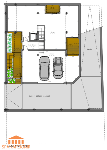
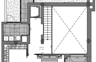
Rúmgóður kjallari (196 fm) undir húsinu, sem býður upp á mikla möguleika, td. fyrir bílageymslu, bíósal, ýmsar tómstundir og vinnu aðstöðu.
Innbyggt kerfi fyrir loftkælingu og hitun. Speglar og sturtugler fylgir og auk þess home autamation kerfi.
Stærð húss: 203 fm
Stærð kjallara: 197 fm
Stærð veranda 179 fm
Stærð lóðar 462-510 fm.
Hér er um einstaka eign og staðsetningu að ræða, í örstuttu göngufær við nýja og flotta klúbbhúsið á La Finca golfvellinum 5* golf og spa hótel og nýjan og glæsilegan þjónustukjarna þar sem er að finna gæðaveitingastaði, vínsmökkun og verslanir. Einnig eru fjölmargir góðir golfvellir í næsta nágrenni, t.d. Campoamor, Las Colinas, Villamartin, Las Ramblas, Lo Romero, Vistabella, Roda Golf, La Marquesa og fleiri.
Ca. 20 mín akstur er niður á ströndina og ca. 20 mín akstur í vinsælu verslunarmiðstöðina, La Zenia Boulevard. Ennfremur er stutt að keyra í skemmtilega bæi í næsta nágrenni, t.d. Algorfa og Ciudad Quesada.
Lúxuseign fyrir kröfuharða golfara og fólk sem kann að njóta lífsins.
Fyrsti áfangi er uppseldur. Annar áfangi var að koma í sölu. Aðeins örfá hús í boði, tilbúin til afhendingar í apríl 2026.
Verð 1.450.000 Evrur. (210.200.000ISK miðað við gengi 1E=145ISK)
Við höfum selt fasteignir á Spáni síðan 2001. Tryggir þekkingu, reynslu og öryggi.
Eitt besta loftslag í heimi samkvæmt Alþjóða heilbrigðistofnunni, WHO.
SKOÐUNARFERÐIR:
Við aðstoðum kaupendur við að skipuleggja skoðunarferðir og tökum þátt í kostnaði vegna þeirra, ef af viðskiptum verður
Mögulegt er að fjármagna hluta kaupverðs með láni frá spænskum banka.
Sjá nánar um fasteignakaup á Spáni á heimasíðunni okkar: www.spanareignir.is
Kostnaður við kaupin:
10% IVA (spænskur söluskattur) af kaupverði eignarinnar. Auk þess má gera ráð fyrir ca. 3% kostnaði vegna stimpilgjalda og annars kostnaðar við kaupin, þ.e. samtals getur kostnaður vegna kaupa á fasteign á Spáni því farið upp í ca.13%.
Eiginleikar: sér garður, einkasundlaug, bílastæði, bílskúr, útsýni, golf,
Svæði: Costa Blanca, La Finca,
*GLÆSILEGAR GOLFVILLUR*-*FYRSTA LÍNA - FRÁBÆRT ÚTSÝNI YFIR GOLFVÖLLINN*
Sérlega vönduð og falleg, vel skipulögð og rúmgóð og ný einbýlishús á tveimur hæðum ásamt stórum kjallara í stuttu göngufæri frá klúbbhúsinu við hinn glæsilega La Finca golfvöll. Góð sér lóð með einkasundlaug og OG FRÁBÆRU ÚTSÝNI YFIR GOLFVÖLLINN. Um 30 mín akstur suður frá Alicante. Sérlega glæsileg hús með góðu alrými, þremur svefnherbergjum, fataherbergi og þremur baðherbergjum. Stór sér lóð. Lokaður bílskúr fyrir 2-3 bíla.
60 GOLFHRINGIR Á LA FINCA GOLFVELLINUM FYLGIR MEÐ Í VERÐINU.
Allar upplýsingar gefa:
Aðalheiður Karlsdóttir, löggiltur fasteignasali. GSM 00354 893 2495. adalheidur@spanareignir.is,
Berta Hawkins, löggiltur fasteignasali, berta@spanareignir.is GSM 0034 615 112 869,
Nánari lýsing:
Falleg aðkoma er að húsinu og skiptist það í gott eldhús, með góðri tengingu við útisvæði og stofu/borðstofu í rúmgóðu alrými.
Svefnherbergi með sér baðherbergi og auk þess eitt svefnherbergi til viðbótar og annað baðherbergi. Á efri hæð er stór lúxus hjónasvíta með fataherbergi og sér baðherbergi og útgengi út á stórar svalir með útsýni yfir golfvöllinn og möguleika á heitum pott.
Út frá stofunni er stór verönd og góður, lokaður garður með flottri aðstöðu til að njóta sólar, grilla ofl. Einkasundlaug. Einstakt útsýni yfir La Finca golfvöllinn og gróið og fallegt umhverfi.
Rúmgóður kjallari (196 fm) undir húsinu, sem býður upp á mikla möguleika, td. fyrir bílageymslu, bíósal, ýmsar tómstundir og vinnu aðstöðu.
Innbyggt kerfi fyrir loftkælingu og hitun. Speglar og sturtugler fylgir og auk þess home autamation kerfi.
Stærð húss: 203 fm
Stærð kjallara: 197 fm
Stærð veranda 179 fm
Stærð lóðar 462-510 fm.
Hér er um einstaka eign og staðsetningu að ræða, í örstuttu göngufær við nýja og flotta klúbbhúsið á La Finca golfvellinum 5* golf og spa hótel og nýjan og glæsilegan þjónustukjarna þar sem er að finna gæðaveitingastaði, vínsmökkun og verslanir. Einnig eru fjölmargir góðir golfvellir í næsta nágrenni, t.d. Campoamor, Las Colinas, Villamartin, Las Ramblas, Lo Romero, Vistabella, Roda Golf, La Marquesa og fleiri.
Ca. 20 mín akstur er niður á ströndina og ca. 20 mín akstur í vinsælu verslunarmiðstöðina, La Zenia Boulevard. Ennfremur er stutt að keyra í skemmtilega bæi í næsta nágrenni, t.d. Algorfa og Ciudad Quesada.
Lúxuseign fyrir kröfuharða golfara og fólk sem kann að njóta lífsins.
Fyrsti áfangi er uppseldur. Annar áfangi var að koma í sölu. Aðeins örfá hús í boði, tilbúin til afhendingar í apríl 2026.
Verð 1.450.000 Evrur. (210.200.000ISK miðað við gengi 1E=145ISK)
Við höfum selt fasteignir á Spáni síðan 2001. Tryggir þekkingu, reynslu og öryggi.
Eitt besta loftslag í heimi samkvæmt Alþjóða heilbrigðistofnunni, WHO.
SKOÐUNARFERÐIR:
Við aðstoðum kaupendur við að skipuleggja skoðunarferðir og tökum þátt í kostnaði vegna þeirra, ef af viðskiptum verður
Mögulegt er að fjármagna hluta kaupverðs með láni frá spænskum banka.
Sjá nánar um fasteignakaup á Spáni á heimasíðunni okkar: www.spanareignir.is
Kostnaður við kaupin:
10% IVA (spænskur söluskattur) af kaupverði eignarinnar. Auk þess má gera ráð fyrir ca. 3% kostnaði vegna stimpilgjalda og annars kostnaðar við kaupin, þ.e. samtals getur kostnaður vegna kaupa á fasteign á Spáni því farið upp í ca.13%.
Eiginleikar: sér garður, einkasundlaug, bílastæði, bílskúr, útsýni, golf,
Svæði: Costa Blanca, La Finca,