Löggiltir fasteignasalar innan Félags fasteignasala:
Ástþór Reynir Guðmundsson
Vigdís R. S. Helgadóttir
Guðbjörg Helga Jóhannesdóttir
Gylfi Jens Gylfason
Sigrún Matthea Sigvaldadóttir
Sveinn Gíslason
Páll Guðmundsson
Þórarinn Arnar Sævarsson
Berglind Hólm Birgisdóttir
Þorsteinn Gíslason
Guðrún Lilja Tryggvadóttir
Brynjar Ingólfsson
Guðný Þorsteinsdóttir
Bjarni Blöndal
Þorsteinn Ólafs
Þórdís Björk Davíðsdóttir
Jóhann Kristinn Jóhannesson
Bjarný Björg Arnórsdóttir
Salvör Þóra Davíðsdóttir
Magga Sigríður Gísladóttir
Upplýsingar
Verðsaga
Byggt 2008
280,4 m²
6 herb.
2 baðherb.
4 svefnh.
Þvottahús
Bílskúr
Útsýni
Sérinngangur
Lýsing
Hér getur þú séð kynningu á eigninni.
BÓKAÐU EINKASKOÐU
NÁNARI UPPLÝSINGAR FÆRÐU HJÁ GUÐNÝJU ÞORSTEINS Í SÍMA 7715211 EÐA GUDNYTH@REMAX.IS
SMELLTU HÉR OG SKOÐAÐU EIGNINA Í 3D (ekki er þörf á sérstöku forriti til þess)
RE/MAX og GUÐNÝ ÞORSTEINS Löggiltur fasteignasali kynna í einkasölu: Virkilega vel í lagt, fallegt og fjölskylduvænt 280,4fm parhús á tveimur hæðum með stórum bílskúr á rólegum stað innarlega í lokuðum botnlanga. Aukin lofthæð er á efri hæð, innfelld lýsing er í öllu húsinu, flísar eru á gólfum en harðparket í svefnherbergjum, hiti er í öllum gólfum. Granít er á eyju í eldhúsi ásamt eldhúsbekk.
Allur náttúrusteinn kemur frá versluninni Fígaró. Afar fallegt útsýni er úr stofu þar sem húsið stendur hátt. Möguleiki er á að útbúa íbúð á jarðhæð.
Íbúðin er 240,9fm og bílskúr er 39,5fm samtals 280,4fm.
Fyrirhugað fasteignamat 2026 er 170.250.000 kr.
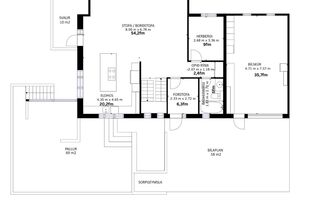
Eignin samanstendur af: Forstofu, eldhúsi, borðstofu og stofu sem eru í samliggjandi stóru og björtu flæðandi rými með útgengi á svalir, fjórum svefnherbergjum, tveimur baðherbergjum, þvottahúsi, sjónvarpsstofu með útgengi út í garð.
Íbúðin er 240,9fm og bílskúr er 39,5fm samtals 280,4fm.
Nánari lýsing:
1. hæð
Forstofa: Er með rúmgóð með tvöföldum speglafataskáp. Flísar á gólfi ásamt hita.
Gangur: Er með tvöföldum skápum sem ná upp í loft. Flísar á gólfi ásamt hita.
Herbergi: Er bjart og gott. Flísar á gólfi ásamt hita.
Baðherbergi: Er með rúmgóðu baðkari, upphengdu salerni, vaskur ofan á marmaraborði og skúffur undir ásamt spegli með hillum í. Hægt er að breyta um lit í innfelldri lýsingu á baðvegg. Flísar á gólfi ásamt hita.
Stofa/borðstofa: Eru í stóru og samliggjandi flæðandi opnu rými með fallegu útsýni til norðurs með útgengi úr á svalir. Flísar á gólfi ásamt hita.
Eldhús: Er með góðu skápa- og skúffuplássi og góðu vinnuplássi, spanhelluborði ásamt graníti frá Fígaró Náttúrustein á eldhúsbekkjum og stórri eyju sem hægt er að sitja við, tengi er fyrir uppþvottavél og amerískan ísskáp, bakaraofnar eru tveir og eru í vinnuhæð. Flísar á gólfi ásamt hita.
Stigi: Er steyptur og er í björtu rými með nýlegu sérsmíðuðu handriði með marmara. Flísar á tröppum.
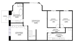
Jarðhæð: Möguleiki er á að útbúa íbúð á neðri hæð hússins.
Sjónvarpsstofa: Þegar komið er niður stigann er komið í stórt rými sem í dag er notað sem sjónvarpsstofa, þaðan er stór rennihurð eru út í garð (möguleiki á að búa til herbergi). Flísar á gólfi ásamt hita.
Hol: Þar sem gert er ráð fyrir skrifstofurými.
Baðherbergi: Er einstaklega vandað og vel í lagt, sérvaldir stórir marmara flekar eru á gólfi ásamt hluta af veggjum, nett og fallegt upphengt salerni, baðkar er frístandandi og er frá Fígaró Náttúrustein. Einnig er "walk in" sturta sem er sérlega rúmgóð. Tveir gluggar með opnanlegum fögum. Marmaraborðplata er með innfelldum vaski og fjórum skúffum þar fyrir neðan, blöndunartæki eru frá Vola og spegill er með hita til að koma í veg fyrir móðu. Útgengi er út í garð úr baðherberginu og stigi þaðan á pall þar sem er heitur og kaldur pottur. Hiti er í gólfi.
Hjónaherbergi: Er rúmgott með sexföldum fataskápum sem ná upp í loft. Harðparket er á gólfi ásamt hita.
Herbergi: Er rúmgott með tvöföldum fataskápum. Harðparket á gólfi ásamt hita.
Herbergi: Er rúmgott með tvöföldum fataskápum. Harðparket á gólfi ásamt hita.
Þvottahús: Er stórt með mjög góðu skápa- og vinnu plássi ásamt innréttingu fyrir þvottavél og þurrkara. Vaskur er innfelldur í marmaraborðplötu. Flísar á gólfi ásamt hita.
Bílskúr: Er 39,5fm að stærð og er með góðri innréttingu, kvarts steinn á borði og skápar fyrir ofan ásamt fjórföldum háum geymsluskápum. Geymsluloft er fyrir ofan bílskúr. Gólfið er flísalagt með hita.
Verönd/pallur: Fyrir framan hús er stór skjólveggur úr marmara. Smíðuð hefur verið stór verönd sem snýr í suður, gengið er niður tröppur niður að hitaveitu potti ásamt köldum potti. Skjólveggir eru með lýsingu, hægt er að ganga niður með húsinu og í garð sem er á bak við húsið. Einnig hefur verið smíðuð geymsla fyrir útihúsgögn ásamt sorpi. Lóð bak við hús er með grasi og bráðabirgða palli.
Þetta er falleg og eign á góðum og rólegum stað þar sem stutt er í fallega náttúru, skóla ásamt leikskóla.
Allar nánari upplýsingar og bókun á skoðun veitir Guðný Þorsteins löggiltur fasteigna- og skipasali s: 771-5211 eða á netfangið gudnyth@remax.is.
Í lögum um fasteignakaup nr. 40/2002 er kveðið á um ríka skoðunarskyldu kaupenda á fasteignum. Vill Re/Max því skora á væntanlega kaupendur að kynna sér vel ástand fasteigna fyrir kauptilboðsgerð og leita til þar til bærra sérfræðinga um nánari skoðun.
Gjöld sem kaupandi þarf að standa straum af vegna kaupanna:
1. Stimpilgjald af kaupsamningi - 0.8% af heildarfasteignamati / 1.6% fyrir lögaðila. (0.4% við fyrstu kaup einstaklinga).
2. Þinglýsingargjald af kaupsamningi, veðskuldabréfi, veðleyfi o.fl.- kr. 2.700 af hverju skjali.
3. Lántökugjald lánastofnunar - skv. gjaldskrá lánastofnunar
4. Umsýsluþóknun til fasteignasölu, 69.900 kr. m.vsk.
BÓKAÐU EINKASKOÐU
NÁNARI UPPLÝSINGAR FÆRÐU HJÁ GUÐNÝJU ÞORSTEINS Í SÍMA 7715211 EÐA GUDNYTH@REMAX.IS
SMELLTU HÉR OG SKOÐAÐU EIGNINA Í 3D (ekki er þörf á sérstöku forriti til þess)
RE/MAX og GUÐNÝ ÞORSTEINS Löggiltur fasteignasali kynna í einkasölu: Virkilega vel í lagt, fallegt og fjölskylduvænt 280,4fm parhús á tveimur hæðum með stórum bílskúr á rólegum stað innarlega í lokuðum botnlanga. Aukin lofthæð er á efri hæð, innfelld lýsing er í öllu húsinu, flísar eru á gólfum en harðparket í svefnherbergjum, hiti er í öllum gólfum. Granít er á eyju í eldhúsi ásamt eldhúsbekk.
Allur náttúrusteinn kemur frá versluninni Fígaró. Afar fallegt útsýni er úr stofu þar sem húsið stendur hátt. Möguleiki er á að útbúa íbúð á jarðhæð.
Íbúðin er 240,9fm og bílskúr er 39,5fm samtals 280,4fm.
Fyrirhugað fasteignamat 2026 er 170.250.000 kr.
Eignin samanstendur af: Forstofu, eldhúsi, borðstofu og stofu sem eru í samliggjandi stóru og björtu flæðandi rými með útgengi á svalir, fjórum svefnherbergjum, tveimur baðherbergjum, þvottahúsi, sjónvarpsstofu með útgengi út í garð.
Íbúðin er 240,9fm og bílskúr er 39,5fm samtals 280,4fm.
Nánari lýsing:
1. hæð
Forstofa: Er með rúmgóð með tvöföldum speglafataskáp. Flísar á gólfi ásamt hita.
Gangur: Er með tvöföldum skápum sem ná upp í loft. Flísar á gólfi ásamt hita.
Herbergi: Er bjart og gott. Flísar á gólfi ásamt hita.
Baðherbergi: Er með rúmgóðu baðkari, upphengdu salerni, vaskur ofan á marmaraborði og skúffur undir ásamt spegli með hillum í. Hægt er að breyta um lit í innfelldri lýsingu á baðvegg. Flísar á gólfi ásamt hita.
Stofa/borðstofa: Eru í stóru og samliggjandi flæðandi opnu rými með fallegu útsýni til norðurs með útgengi úr á svalir. Flísar á gólfi ásamt hita.
Eldhús: Er með góðu skápa- og skúffuplássi og góðu vinnuplássi, spanhelluborði ásamt graníti frá Fígaró Náttúrustein á eldhúsbekkjum og stórri eyju sem hægt er að sitja við, tengi er fyrir uppþvottavél og amerískan ísskáp, bakaraofnar eru tveir og eru í vinnuhæð. Flísar á gólfi ásamt hita.
Stigi: Er steyptur og er í björtu rými með nýlegu sérsmíðuðu handriði með marmara. Flísar á tröppum.
Jarðhæð: Möguleiki er á að útbúa íbúð á neðri hæð hússins.
Sjónvarpsstofa: Þegar komið er niður stigann er komið í stórt rými sem í dag er notað sem sjónvarpsstofa, þaðan er stór rennihurð eru út í garð (möguleiki á að búa til herbergi). Flísar á gólfi ásamt hita.
Hol: Þar sem gert er ráð fyrir skrifstofurými.
Baðherbergi: Er einstaklega vandað og vel í lagt, sérvaldir stórir marmara flekar eru á gólfi ásamt hluta af veggjum, nett og fallegt upphengt salerni, baðkar er frístandandi og er frá Fígaró Náttúrustein. Einnig er "walk in" sturta sem er sérlega rúmgóð. Tveir gluggar með opnanlegum fögum. Marmaraborðplata er með innfelldum vaski og fjórum skúffum þar fyrir neðan, blöndunartæki eru frá Vola og spegill er með hita til að koma í veg fyrir móðu. Útgengi er út í garð úr baðherberginu og stigi þaðan á pall þar sem er heitur og kaldur pottur. Hiti er í gólfi.
Hjónaherbergi: Er rúmgott með sexföldum fataskápum sem ná upp í loft. Harðparket er á gólfi ásamt hita.
Herbergi: Er rúmgott með tvöföldum fataskápum. Harðparket á gólfi ásamt hita.
Herbergi: Er rúmgott með tvöföldum fataskápum. Harðparket á gólfi ásamt hita.
Þvottahús: Er stórt með mjög góðu skápa- og vinnu plássi ásamt innréttingu fyrir þvottavél og þurrkara. Vaskur er innfelldur í marmaraborðplötu. Flísar á gólfi ásamt hita.
Bílskúr: Er 39,5fm að stærð og er með góðri innréttingu, kvarts steinn á borði og skápar fyrir ofan ásamt fjórföldum háum geymsluskápum. Geymsluloft er fyrir ofan bílskúr. Gólfið er flísalagt með hita.
Verönd/pallur: Fyrir framan hús er stór skjólveggur úr marmara. Smíðuð hefur verið stór verönd sem snýr í suður, gengið er niður tröppur niður að hitaveitu potti ásamt köldum potti. Skjólveggir eru með lýsingu, hægt er að ganga niður með húsinu og í garð sem er á bak við húsið. Einnig hefur verið smíðuð geymsla fyrir útihúsgögn ásamt sorpi. Lóð bak við hús er með grasi og bráðabirgða palli.
Þetta er falleg og eign á góðum og rólegum stað þar sem stutt er í fallega náttúru, skóla ásamt leikskóla.
Allar nánari upplýsingar og bókun á skoðun veitir Guðný Þorsteins löggiltur fasteigna- og skipasali s: 771-5211 eða á netfangið gudnyth@remax.is.
Í lögum um fasteignakaup nr. 40/2002 er kveðið á um ríka skoðunarskyldu kaupenda á fasteignum. Vill Re/Max því skora á væntanlega kaupendur að kynna sér vel ástand fasteigna fyrir kauptilboðsgerð og leita til þar til bærra sérfræðinga um nánari skoðun.
Gjöld sem kaupandi þarf að standa straum af vegna kaupanna:
1. Stimpilgjald af kaupsamningi - 0.8% af heildarfasteignamati / 1.6% fyrir lögaðila. (0.4% við fyrstu kaup einstaklinga).
2. Þinglýsingargjald af kaupsamningi, veðskuldabréfi, veðleyfi o.fl.- kr. 2.700 af hverju skjali.
3. Lántökugjald lánastofnunar - skv. gjaldskrá lánastofnunar
4. Umsýsluþóknun til fasteignasölu, 69.900 kr. m.vsk.
Ár
Fasteignamat
Kaupverð
Stærð
Fermetraverð
26. ágú. 2016
57.450.000 kr.
55.000.000 kr.
280.4 m²
196.148 kr.
Byggt á upplýsingum úr Þjóðskrá Íslands frá 2006-2025