Upplýsingar
Byggt 2023
77,8 m²
3 herb.
1 baðherb.
2 svefnh.
Þvottahús
Bílastæði
Lyfta
Lýsing
Háborg fasteignasala kynnir glæsilega íbúð á 1. hæð í nýju fjölbýlishúsi við Þjóðbraut 5. Í húsinu er lyfta og bílakjallari.
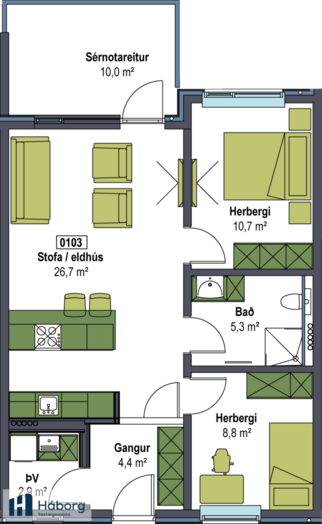
Eignin er 77,8 fm og skiptist í 69,6 fm íbúð og 8,2 fm geymslu auk bílastæðis í kjallara.
Nútímaleg hönnun og gott skipulag. Húsið er vel staðsett miðsvæðis á Akranesi, stutt í alla almenna þjónustu.
Nánari lýsing á íbúð 103:
Anddyri með fataskáp.
Alrými með stofu og eldhúsi. Gengið er út á svalir úr alrými.
Eldhúsinnrétting er eikarlituð, AEG spanhelluborð og bakaraofn. Gert er ráð fyrir innbyggðum ísskáp og uppþvottavél.
Svefnherbergi eru tvö, fataskápar í báðum.
Baðherbergi, gólf er flísalagt og veggir að hluta. Vaskinnrétting er eikarlituð, speglaskápur með Led ljósum. Sturta, upphengt salerni, Grohe blöndunartæki. Hiti er í gólfum á baðherbergi.
Þvottahús með innréttingu og vaski.
Í kjallara er rúmgóð sérgeymsla, sameiginleg hjóla- og vagnageymsla auk stæðis í bílageymslu.
Íbúðinni verður skilað samkvæmt skilalýsingu.
Afhending getur farið fram fljótlega.
Allar upplýsingar um eignina veita: Kristín Rós Magnadóttir löggiltur fasteignasali í síma 860-2078 eða kristin@haborg.is, Katla Hanna Steed löggiltur fasteignasali í síma 822-1661 eða katla@haborg.is og Jórunn Skúladóttir löggiltur fasteignasali í síma 845-8958 eða jorunn@haborg.is.
Húsið:
Byggingarfélagið Bestla ehf er framkvæmdaaðili, arkitektar og aðalhönnuðir eru Krark Arkitekt.
Húsið er á fimm hæðum og samanstendur af 38 íbúðum af fjölbreyttum stærðum og gerðum.
Í húsinu er stiga- og lyftuhús en gengið er inn í íbúðirnar af svalagöngum.
Í kjallara hússins er bílageymsla með 26 bílastæðum ásamt sérgeymslum fyrir hluta af íbúðunum og vagna- hjólageymslu.
Húsið er staðsteypt, klætt með báruáli. Gluggar og svalahurðir eru úr timbri, klætt með áli að utan.
Hitalögn er í helstu gönguleiðum og í bílastæðum fyrir hreyfihamlaða.
Bílastæði eru austan og sunnan megin við húsið og frágangur lóðar er samkvæmt teikningum frá Landslagi ehf. Rafhleðslustöð er uppsett og gert er ráð fyrir að hægt sé að bæta fleirum við.
Íbúðum er skilað fullbúnum en án gólfefna, nema votrými eru flísalögð. Lofthæð íbúða er um 2,58 cm, veggir og loft eru máluð í litnum “soft sand” frá Flugger.
Hurðir eru af gerðinni Ringolit frá Birgisson, þær eru plastlagðar í eikarlit.
Innréttingar eru frá Voke-3, í eikarlit. Spanhelluborð og bakaraofnar eru frá AEG. Í íbúðunum eru ýmist innbyggðir gufugleypar eða lofthengdir eyjuháfar. Ísskápar og uppþvottavélar fylgja ekki en gert er ráð fyrir að hægt sé að hafa tækin innbyggð, hurðir til uppsetningar þeirra fylgja með.
Baðherbergi eru flísalögð að hluta, flísar eru frá Álfaborg. Baðinnréttingar eru í eikarlit og speglaskápar með led ljósum. Blöndunartæki og hreinlætistæki eru frá Grohe.
Athugið, íbúðin er afhent án gólfefna. Gólfefnum og húsgögnum hefur verið bætt á myndir.
Allar upplýsingar um eignina veita: Kristín Rós Magnadóttir löggiltur fasteignasali í síma 860-2078 eða kristin@haborg.is, Katla Hanna Steed löggiltur fasteignasali í síma 822-1661 eða katla@haborg.is og Jórunn Skúladóttir löggiltur fasteignasali í síma 845-8958 eða jorunn@haborg.is.
Eignin er 77,8 fm og skiptist í 69,6 fm íbúð og 8,2 fm geymslu auk bílastæðis í kjallara.
Nútímaleg hönnun og gott skipulag. Húsið er vel staðsett miðsvæðis á Akranesi, stutt í alla almenna þjónustu.
Nánari lýsing á íbúð 103:
Anddyri með fataskáp.
Alrými með stofu og eldhúsi. Gengið er út á svalir úr alrými.
Eldhúsinnrétting er eikarlituð, AEG spanhelluborð og bakaraofn. Gert er ráð fyrir innbyggðum ísskáp og uppþvottavél.
Svefnherbergi eru tvö, fataskápar í báðum.
Baðherbergi, gólf er flísalagt og veggir að hluta. Vaskinnrétting er eikarlituð, speglaskápur með Led ljósum. Sturta, upphengt salerni, Grohe blöndunartæki. Hiti er í gólfum á baðherbergi.
Þvottahús með innréttingu og vaski.
Í kjallara er rúmgóð sérgeymsla, sameiginleg hjóla- og vagnageymsla auk stæðis í bílageymslu.
Íbúðinni verður skilað samkvæmt skilalýsingu.
Afhending getur farið fram fljótlega.
Allar upplýsingar um eignina veita: Kristín Rós Magnadóttir löggiltur fasteignasali í síma 860-2078 eða kristin@haborg.is, Katla Hanna Steed löggiltur fasteignasali í síma 822-1661 eða katla@haborg.is og Jórunn Skúladóttir löggiltur fasteignasali í síma 845-8958 eða jorunn@haborg.is.
Húsið:
Byggingarfélagið Bestla ehf er framkvæmdaaðili, arkitektar og aðalhönnuðir eru Krark Arkitekt.
Húsið er á fimm hæðum og samanstendur af 38 íbúðum af fjölbreyttum stærðum og gerðum.
Í húsinu er stiga- og lyftuhús en gengið er inn í íbúðirnar af svalagöngum.
Í kjallara hússins er bílageymsla með 26 bílastæðum ásamt sérgeymslum fyrir hluta af íbúðunum og vagna- hjólageymslu.
Húsið er staðsteypt, klætt með báruáli. Gluggar og svalahurðir eru úr timbri, klætt með áli að utan.
Hitalögn er í helstu gönguleiðum og í bílastæðum fyrir hreyfihamlaða.
Bílastæði eru austan og sunnan megin við húsið og frágangur lóðar er samkvæmt teikningum frá Landslagi ehf. Rafhleðslustöð er uppsett og gert er ráð fyrir að hægt sé að bæta fleirum við.
Íbúðum er skilað fullbúnum en án gólfefna, nema votrými eru flísalögð. Lofthæð íbúða er um 2,58 cm, veggir og loft eru máluð í litnum “soft sand” frá Flugger.
Hurðir eru af gerðinni Ringolit frá Birgisson, þær eru plastlagðar í eikarlit.
Innréttingar eru frá Voke-3, í eikarlit. Spanhelluborð og bakaraofnar eru frá AEG. Í íbúðunum eru ýmist innbyggðir gufugleypar eða lofthengdir eyjuháfar. Ísskápar og uppþvottavélar fylgja ekki en gert er ráð fyrir að hægt sé að hafa tækin innbyggð, hurðir til uppsetningar þeirra fylgja með.
Baðherbergi eru flísalögð að hluta, flísar eru frá Álfaborg. Baðinnréttingar eru í eikarlit og speglaskápar með led ljósum. Blöndunartæki og hreinlætistæki eru frá Grohe.
Athugið, íbúðin er afhent án gólfefna. Gólfefnum og húsgögnum hefur verið bætt á myndir.
Allar upplýsingar um eignina veita: Kristín Rós Magnadóttir löggiltur fasteignasali í síma 860-2078 eða kristin@haborg.is, Katla Hanna Steed löggiltur fasteignasali í síma 822-1661 eða katla@haborg.is og Jórunn Skúladóttir löggiltur fasteignasali í síma 845-8958 eða jorunn@haborg.is.