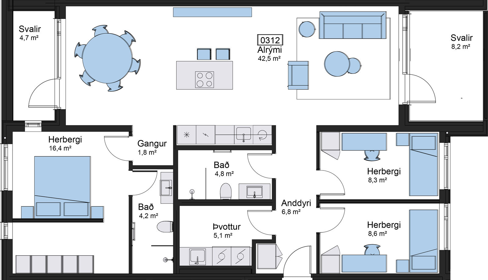
Stefnisvogur, 104 Reykjavík