Löggiltir fasteignasalar innan Félags fasteignasala:
Ástþór Reynir Guðmundsson
Vigdís R. S. Helgadóttir
Guðbjörg Helga Jóhannesdóttir
Gylfi Jens Gylfason
Sigrún Matthea Sigvaldadóttir
Sveinn Gíslason
Páll Guðmundsson
Þórarinn Arnar Sævarsson
Berglind Hólm Birgisdóttir
Þorsteinn Gíslason
Guðrún Lilja Tryggvadóttir
Brynjar Ingólfsson
Guðný Þorsteinsdóttir
Bjarni Blöndal
Þorsteinn Ólafs
Þórdís Björk Davíðsdóttir
Jóhann Kristinn Jóhannesson
Bjarný Björg Arnórsdóttir
Salvör Þóra Davíðsdóttir
Magga Sigríður Gísladóttir
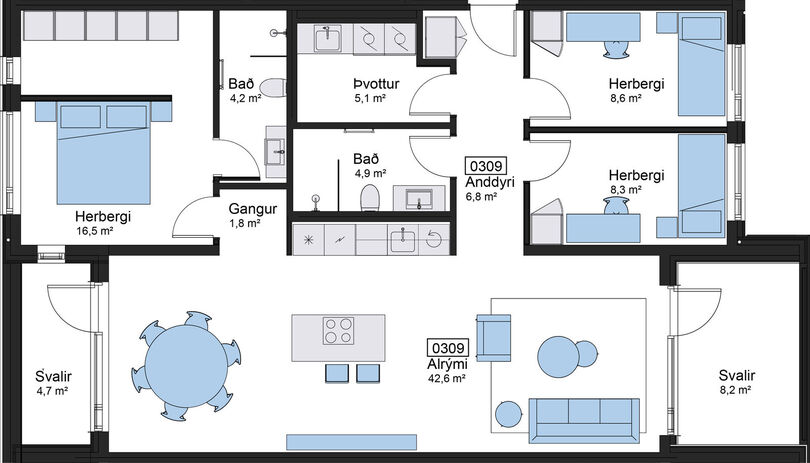
Upplýsingar
123,9 m²
4 herb.
2 baðherb.
3 svefnh.
Þvottahús
Sameiginl. inngangur
Bílastæði
Lyfta
Lýsing
RE/MAX og REIRVERK kynna í einkasölu:
Vel skipulagðar og vandaðar íbúðir á flottum stað í Vogabyggð. Stefnisvogur 38-46, 104 Reykjavík.
Fjármögnunarmöguleiki í gegnum REIR20
REIR20 er ný lausn fyrir kaupendur á eignum REIR verk.
Þú leggur fram að lágmarki 10% af kaupverði fasteignar – REIR20 leggur til allt að 20% á móti.
Fjárfestum saman í þinni framtíð. Sjá allar frekari upplýsingar á heimasíðu www.Reir20.is
Íbúðir skilast fullbúnar með gólfefnum og með Quartz borðplötum, bæði inn í eldhúsi og inn á baðherbergi. Vönduð heimilistæki, innfeld tæki, ísskápur, frystir og uppþvottavél.
Gólfhiti er í öllum íbúðum með sér dreifikistu fyrir hverja íbúð. Sjálfstæð loftræsti samstaða er fyrir hverja íbúð með inn- og útkasti á lofti.
Byggingaraðili er Reir verk ehf.
Nánar um eign: Íbúð nr. 309, Stefnisvogur: 44
Eignin er fjögurra herbergja íbúð á 3. hæð, birt stærð 114,2 fm. Eigninni tilheyrir geymsla í kjallara, birt stærð 9,7 fm.
Birt heildarstærð séreignar er 123,9 fm.
Íbúðinni fylgir sér stæði í bílakjallara.
Sjá má skilalýsingu, verðlista og nánari upplýsingar um íbúðirnar inn á heimasíðu verkefnisins: https://stefnisvogur.is/
Upplýsingar um Stefnisvog 38-46
Húsið skilast fullbúið að utan. Húsið er steinsteypt, einangrað og klædd að utan með áli. Þak er viðsnúið, steypt með halla, tvöfalt lag er af eldsoðnum tjörupappa, einangrað ofan á plötu og ferging. Yfirborð svala er klætt með timbri eða hellulagt.
Gluggakerfi íbúða er frá BYKO og er ál-tré. Inngangshurðir í stigaganga eru álhurðir. Sameiginleg lóð verður frágengin skv. teikningum lóðahönnuða. Snjóbræðsla er í helstu göngustígum á lóð.
Húsið er fjögurra til fimm hæða lyftu fjölbýlishús með samtals 82 íbúðum í þrem stigahúsum og einni íbúð með sérinngangi. Bílageymsla er með tengimöguleikum fyrir hleðslu rafbíla. Öllum íbúðum fylgir geymsla auk afnotaréttar af hjóla- og vagnageymslu. Snjóbræðsla er lögð í helstu gönguleiðum utan við hús.
Að verkinu standa eftirtaldir aðilar:
Byggingaraðili hússins er Reir verk ehf.
Arkitekt og aðalhönnuður er Arkþing Nordic ehf.
Verkfræðihönnun, Vektor Verkfræðistofa ehf. sá um hönnun á burðarvirki og lögnum.
Mannvit sá um hljóðhönnun.
Brunahönnun sá um brunahönnun.
Raflagnahönnun, Raflax sá um raflagna- og lýsingahönnun.
Nánari upplýsingar veita:
Magnús Már Lúðvíksson löggiltur fasteignasali í síma 699-2010 / maggi@remax.is
Guðlaugur J. Guðlaugsson löggiltur fasteignasali í síma 661-6056 / gulli@remax.is
Guðný Þorsteinsdóttir löggiltur fasteignasali í síma 771-5211 / gudnyth@remax.is
Bjarný Björg Arnórsdóttir löggiltur fasteignasali í síma 694-2526 / bjarny@remax.is
Gjöld sem kaupandi þarf að standa straum af vegna kaupanna:
1. Stimpilgjald af kaupsamningi er almennt 0,8%, en 0,4% ef um fyrstu kaup er að ræða og 1.6% ef um lögaðila er að ræða. Miðast af heildar fasteignamati.
2. Þinglýsingargjald af kaupsamningi, veðskuldabréfi, mögulegu veðleyfi o.fl. - kr. 2.700 af hverju skjali.
3. Lántökugjald lánastofnunar - Nánari upplýsingar á heimasíðum lánastofnana.
4. Umsýslugjald til fasteignasölu kr. 69.900.-
Vel skipulagðar og vandaðar íbúðir á flottum stað í Vogabyggð. Stefnisvogur 38-46, 104 Reykjavík.
Fjármögnunarmöguleiki í gegnum REIR20
REIR20 er ný lausn fyrir kaupendur á eignum REIR verk.
Þú leggur fram að lágmarki 10% af kaupverði fasteignar – REIR20 leggur til allt að 20% á móti.
Fjárfestum saman í þinni framtíð. Sjá allar frekari upplýsingar á heimasíðu www.Reir20.is
Íbúðir skilast fullbúnar með gólfefnum og með Quartz borðplötum, bæði inn í eldhúsi og inn á baðherbergi. Vönduð heimilistæki, innfeld tæki, ísskápur, frystir og uppþvottavél.
Gólfhiti er í öllum íbúðum með sér dreifikistu fyrir hverja íbúð. Sjálfstæð loftræsti samstaða er fyrir hverja íbúð með inn- og útkasti á lofti.
Byggingaraðili er Reir verk ehf.
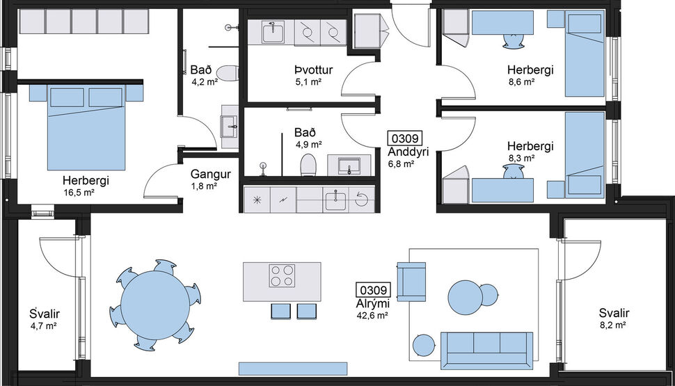
Nánar um eign: Íbúð nr. 309, Stefnisvogur: 44
Eignin er fjögurra herbergja íbúð á 3. hæð, birt stærð 114,2 fm. Eigninni tilheyrir geymsla í kjallara, birt stærð 9,7 fm.
Birt heildarstærð séreignar er 123,9 fm.
Íbúðinni fylgir sér stæði í bílakjallara.
Sjá má skilalýsingu, verðlista og nánari upplýsingar um íbúðirnar inn á heimasíðu verkefnisins: https://stefnisvogur.is/
Upplýsingar um Stefnisvog 38-46
Húsið skilast fullbúið að utan. Húsið er steinsteypt, einangrað og klædd að utan með áli. Þak er viðsnúið, steypt með halla, tvöfalt lag er af eldsoðnum tjörupappa, einangrað ofan á plötu og ferging. Yfirborð svala er klætt með timbri eða hellulagt.
Gluggakerfi íbúða er frá BYKO og er ál-tré. Inngangshurðir í stigaganga eru álhurðir. Sameiginleg lóð verður frágengin skv. teikningum lóðahönnuða. Snjóbræðsla er í helstu göngustígum á lóð.
Húsið er fjögurra til fimm hæða lyftu fjölbýlishús með samtals 82 íbúðum í þrem stigahúsum og einni íbúð með sérinngangi. Bílageymsla er með tengimöguleikum fyrir hleðslu rafbíla. Öllum íbúðum fylgir geymsla auk afnotaréttar af hjóla- og vagnageymslu. Snjóbræðsla er lögð í helstu gönguleiðum utan við hús.
Að verkinu standa eftirtaldir aðilar:
Byggingaraðili hússins er Reir verk ehf.
Arkitekt og aðalhönnuður er Arkþing Nordic ehf.
Verkfræðihönnun, Vektor Verkfræðistofa ehf. sá um hönnun á burðarvirki og lögnum.
Mannvit sá um hljóðhönnun.
Brunahönnun sá um brunahönnun.
Raflagnahönnun, Raflax sá um raflagna- og lýsingahönnun.
Nánari upplýsingar veita:
Magnús Már Lúðvíksson löggiltur fasteignasali í síma 699-2010 / maggi@remax.is
Guðlaugur J. Guðlaugsson löggiltur fasteignasali í síma 661-6056 / gulli@remax.is
Guðný Þorsteinsdóttir löggiltur fasteignasali í síma 771-5211 / gudnyth@remax.is
Bjarný Björg Arnórsdóttir löggiltur fasteignasali í síma 694-2526 / bjarny@remax.is
Gjöld sem kaupandi þarf að standa straum af vegna kaupanna:
1. Stimpilgjald af kaupsamningi er almennt 0,8%, en 0,4% ef um fyrstu kaup er að ræða og 1.6% ef um lögaðila er að ræða. Miðast af heildar fasteignamati.
2. Þinglýsingargjald af kaupsamningi, veðskuldabréfi, mögulegu veðleyfi o.fl. - kr. 2.700 af hverju skjali.
3. Lántökugjald lánastofnunar - Nánari upplýsingar á heimasíðum lánastofnana.
4. Umsýslugjald til fasteignasölu kr. 69.900.-