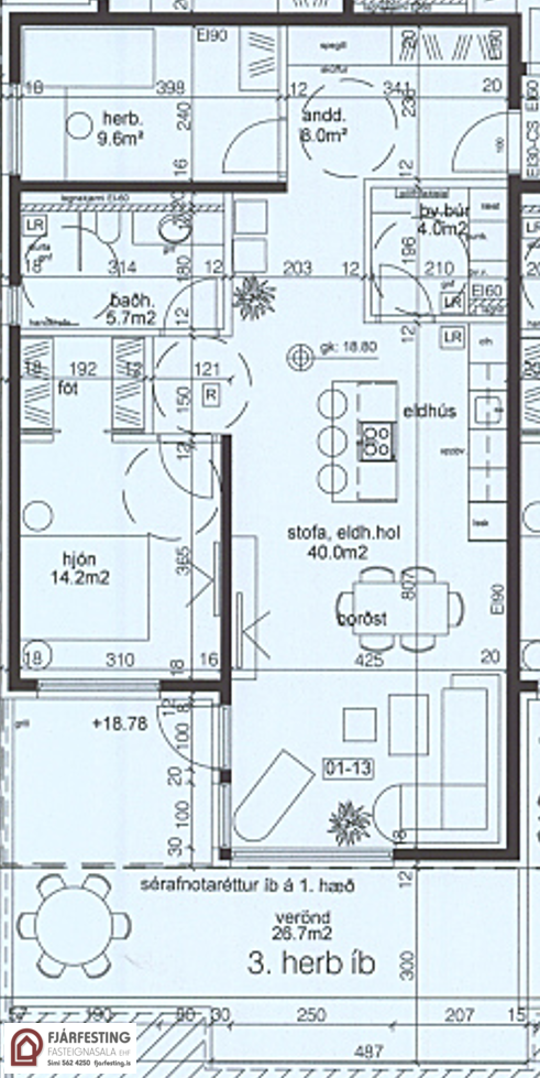
Skógarvegur, 103 Reykjavík