Upplýsingar
Byggt 2023
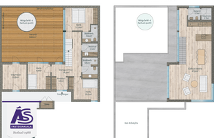
159,7 m²
4 herb.
3 baðherb.
3 svefnh.
Þvottahús
Sérinngangur
Lýsing
Glæsileg ný 157,5 - 159,7 fm raðhús á tveimur hæðum, alls 7 stk raðhús, við Hjallabraut 45-49 í Hafnarfirði. Frábær staðsetning í rótgrónu hverfi miðsvæðis í Hafnarfirði.
Húsin skilast fullbúin að utan og innan en án megingólfefna. Votrými verða flísalögð.
Húsin eru einstaklega vönduð með Free@Home hússtjórnunarkerfi, sjónsteypuveggjum að hluta, vönduðum innréttingum, stórum svölum o.fl. o.fl.
Smelltu hér til að skoða söluvef verkefnisins og laus hús.
Stærðir: 157,5 - 159,7 fm
Herbergi: 4ra herbergja (3 svefnh.)
Verð: 165,8 - 167,8 m.kr.
Afhending: Vor 2025
- Innréttingar frá Brúnás, sýnilegir fletir á innréttingum verða úr Gladstone melamin efni og að innan úr ljósgráum spónaplötum.
- Borðplötur í eldhúsi verða úr Virgo Quartz steini frá S. Helgasyni.
- Eldhústæki: Vaskur og blöndunartæki verða í innréttingu frá Tengi. Vaskur verður undirlímdur í borðplötu. Einnig mun fylgja helluborð með viftu, ofn með blæstri, örbylgjuofn, innbyggð uppþvottavél með áklæddum fronti og innbyggður kæliskápur. Raftæki sem fylgja eldhúsi koma frá Bræðrunum Ormsson.
- Sjá nánar um skil í skilalýsingu seljanda.
Byggingaraðili er traustur verktaki til fjölda ára: Byggingarfélag Gylfa og Gunnars hf
Bókið skoðun og fáið nánari upplýsingar hjá sölumönnum Ás fasteignasölu:
Aron Freyr Eiríksson löggiltur fasteignasali s. 772-7376 / aron@as.is
Stefán Rafn Sigurmannsson löggiltur fasteignasali s. 655-7000 / stefan@as.is
Svala Haraldsdóttir löggiltur fasteignasali s. 820-9699 / svala@as.is
Arnór Daði Eiríksson aðstoðarm. fasteignasala s. 777-0939 / arnor@as.is
Eiríkur Svanur Sigfússon löggiltur fasteignasali í s. 862-3377 / eirikur@as.is
Frábær staðsetning þar sem stutt er í helstu þjónustu og falleg útivistarsvæði.
Ás fasteignasala er rótgróið fyrirtæki sem hefur veitt alla almenna þjónustu í fasteignaviðskiptum frá árinu 1988.
www.facebook.com/asfasteignasala
www.instagram.com/as_fasteignasala
www.as.is
Húsin skilast fullbúin að utan og innan en án megingólfefna. Votrými verða flísalögð.
Húsin eru einstaklega vönduð með Free@Home hússtjórnunarkerfi, sjónsteypuveggjum að hluta, vönduðum innréttingum, stórum svölum o.fl. o.fl.
Smelltu hér til að skoða söluvef verkefnisins og laus hús.
Stærðir: 157,5 - 159,7 fm
Herbergi: 4ra herbergja (3 svefnh.)
Verð: 165,8 - 167,8 m.kr.
Afhending: Vor 2025
- Innréttingar frá Brúnás, sýnilegir fletir á innréttingum verða úr Gladstone melamin efni og að innan úr ljósgráum spónaplötum.
- Borðplötur í eldhúsi verða úr Virgo Quartz steini frá S. Helgasyni.
- Eldhústæki: Vaskur og blöndunartæki verða í innréttingu frá Tengi. Vaskur verður undirlímdur í borðplötu. Einnig mun fylgja helluborð með viftu, ofn með blæstri, örbylgjuofn, innbyggð uppþvottavél með áklæddum fronti og innbyggður kæliskápur. Raftæki sem fylgja eldhúsi koma frá Bræðrunum Ormsson.
- Sjá nánar um skil í skilalýsingu seljanda.
Byggingaraðili er traustur verktaki til fjölda ára: Byggingarfélag Gylfa og Gunnars hf
Bókið skoðun og fáið nánari upplýsingar hjá sölumönnum Ás fasteignasölu:
Aron Freyr Eiríksson löggiltur fasteignasali s. 772-7376 / aron@as.is
Stefán Rafn Sigurmannsson löggiltur fasteignasali s. 655-7000 / stefan@as.is
Svala Haraldsdóttir löggiltur fasteignasali s. 820-9699 / svala@as.is
Arnór Daði Eiríksson aðstoðarm. fasteignasala s. 777-0939 / arnor@as.is
Eiríkur Svanur Sigfússon löggiltur fasteignasali í s. 862-3377 / eirikur@as.is
Frábær staðsetning þar sem stutt er í helstu þjónustu og falleg útivistarsvæði.
Ás fasteignasala er rótgróið fyrirtæki sem hefur veitt alla almenna þjónustu í fasteignaviðskiptum frá árinu 1988.
www.facebook.com/asfasteignasala
www.instagram.com/as_fasteignasala
www.as.is