Upplýsingar
Verðsaga
Byggt 2015
117,2 m²
4 herb.
1 baðherb.
3 svefnh.
Þvottahús
Útsýni
Sameiginl. inngangur
Lyfta
Laus strax
Lýsing
Ragnar Guðmundsson löggiltur fasteignasali hjá TORG fasteignasölu kynnir: Falleg og björt 4ra herbergja íbúð að Klukkuvelli 1, Hafnarfirði. Íbúðin er skráð 117,2fm þar af 9fm sérgeymsla. Að sögn seljanda hefur eignin fengið gott viðhald og töluverðar endurbætur. Stórar svalir með svalalokun. Eignin telur 3 svefnherbergi, baðherbergi, þvottahús, stofu og borðstofu í opnu rými, eldhús og sérgeymslu í sameign. Virkilega góð staðsetning þar sem örstutt er í skóla og leikskóla. Allar nánari upplýsingar veitir Ragnar fasteignasali í S: 844-6516 eða ragnar@fstorg.is
***Eignin getur verið laus við kaupsamning. ***
Nánari lýsing:
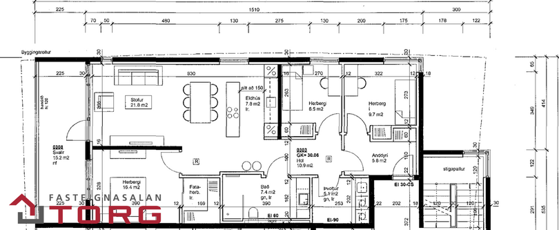
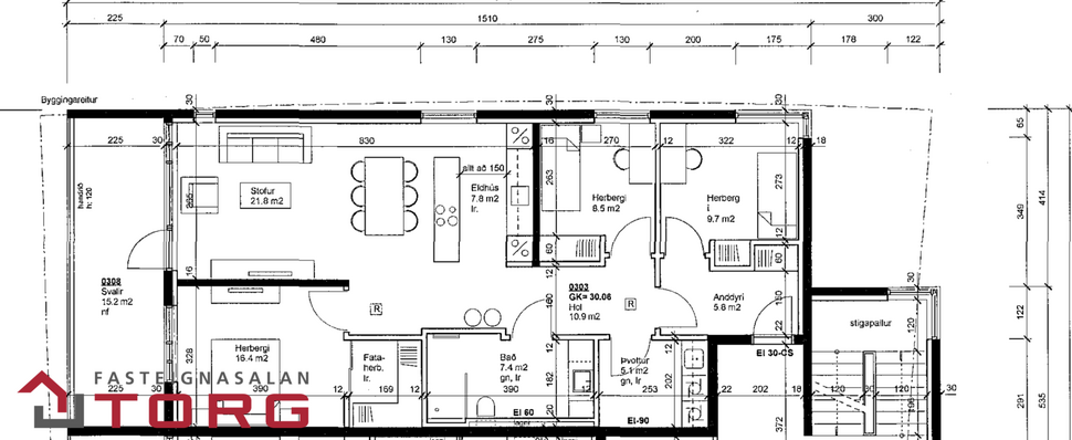
Forstofa er flísalögð með góðum fataskáp
Hjónaherbergi er rúmgott með fataherbergi, parket á gólfi
2 barnaherbergi, bæði rúmgóð og annað með fataskáp, parket á gólfum
Baðherbergi er flísalagt hólf í gólf með walk-in sturtu, handklæðaofni og smekklegri innréttingu
Þvottahús er með tengi fyrir þvottavél og þurrkara, flísar á gólfi
Eldhús er með góðu skápa og vinnuplássi, ofn í vinnuhæð, tengi fyrir uppþvottavél og ísskáp, flísar á gólfi
Stofa og borðstofa eru í opnu og björtu rými með útgengi á tæplega 17fm lokaðar svalir (ekki skráðar í fermetratölu)
Sérgeymsla er staðsett í sameign hússins, skráð 9fm
Samantekt: um ræðir virkilega smekklega eign á rólegum og fjölskylduvænum stað þar sem stutt er í alla helstu þjónustu, skóla og leikskóla. Allar nánari upplýsingar veitir Ragnar fasteignasali í S: 844-6516 eða ragnar@fstorg.is
***Eignin getur verið laus við kaupsamning. ***
Nánari lýsing:
Forstofa er flísalögð með góðum fataskáp
Hjónaherbergi er rúmgott með fataherbergi, parket á gólfi
2 barnaherbergi, bæði rúmgóð og annað með fataskáp, parket á gólfum
Baðherbergi er flísalagt hólf í gólf með walk-in sturtu, handklæðaofni og smekklegri innréttingu
Þvottahús er með tengi fyrir þvottavél og þurrkara, flísar á gólfi
Eldhús er með góðu skápa og vinnuplássi, ofn í vinnuhæð, tengi fyrir uppþvottavél og ísskáp, flísar á gólfi
Stofa og borðstofa eru í opnu og björtu rými með útgengi á tæplega 17fm lokaðar svalir (ekki skráðar í fermetratölu)
Sérgeymsla er staðsett í sameign hússins, skráð 9fm
Samantekt: um ræðir virkilega smekklega eign á rólegum og fjölskylduvænum stað þar sem stutt er í alla helstu þjónustu, skóla og leikskóla. Allar nánari upplýsingar veitir Ragnar fasteignasali í S: 844-6516 eða ragnar@fstorg.is
Ár
Fasteignamat
Kaupverð
Stærð
Fermetraverð
30. jún. 2015
2.610.000 kr.
30.700.000 kr.
117.2 m²
261.945 kr.
Byggt á upplýsingum úr Þjóðskrá Íslands frá 2006-2025