Upplýsingar
Verðsaga
Byggt 2006
128,1 m²
4 herb.
1 baðherb.
3 svefnh.
Þvottahús
Sameiginl. inngangur
Lyfta
Opið hús: 17. nóvember 2025
kl. 17:00
til 17:30
Opið hús: Berjavellir 3, 221 Hafnarfjörður, Íbúð merkt: 01 03 03. Eignin verður sýnd mánudaginn 17. nóvember 2025 milli kl. 17:00 og kl. 17:30.
Lýsing
Hraunhamar kynnir: Sérlega fallega 4ra herbergja íbúð á þessum vinsæla stað í Vallarhverfinu, Hafnarfirði.
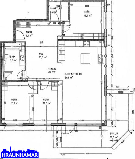
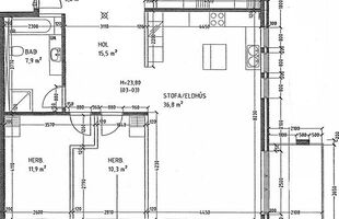
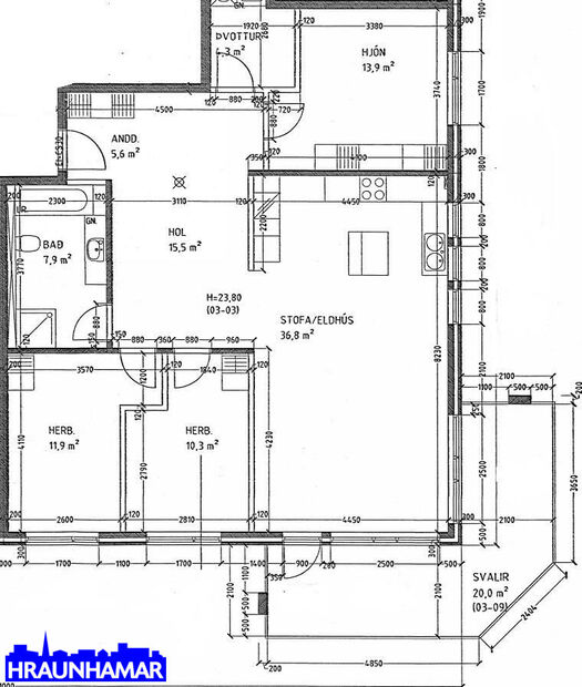
Íbúðin er 128,1 fm með geymslu og er á þriðju hæð, lyfta er í húsinu.
Fasteignamat næsta árs verður 85.600.000 kr.
Skipting eignarinnar: Hol, sjónvarpshol, þrjú svefnherbergi, stofa, eldhús, þvottahús, baðherbergi og geymsla, auk reglubundinnar sameignar.
Seljendur skoða skipti á stærri eign í Hafnarfirði.
Nánari lýsing:
Forstofa með góðum fataskápum, gott sjónvarpshol.
Rúmgott eldhús með fallegri eikarinnréttingu og eyju.
Björt og rúmgóð stofa, þaðan er utangengt út stórar rúmgóðar svalir.
Halogen lýsing er í stofunni.
Tvö rúmgóð barnaherbergi með fataskápum.
Gott hjónaherbergi með fataskápum.
Stórt flísalagt baðherbergi með baðkari, sturtuklefa og fallegri baðinnréttingu.
Rúmgott flísalagt þvottahús.
Góð geymsla í sameign.
Gólfefni eru eikarparket og flísar.
Þetta er sérlega falleg eign sem vert er að skoða. Öll rými rúmgóð og nýtist öll vel.
Stutt í alla þjónustu, s.s. skóla, leiksskóla, íþróttamiðstöð Hauka, Ásvallalaug og verslanir.
Nánari upplýsingar vetir Hlynur Halldórsson löggiltur fasteignasali í s. 698-2603 eða í gegnum tölvupóst á hlynur@hraunhamar.is
Skoðunarskylda:
Í lögum um fasteignakaup nr. 40/2002 er kveðið á um ríka skoðunarskyldu kaupenda á fasteignum. Hraunhamar fasteignasala vill benda væntanlegum kaupendum á að kynna sér vel ástand fasteigna fyrir kauptilboðsgerð og ef þurfa þykir að leita til sérfræðinga fyrir nánari ástandsskoðun.
Gjöld sem kaupandi þarf að standa straum af vegna kaupanna:
1. Stimpilgjald af kaupsamningi, fyrstu kaup (0,4%), almenn kaup (0,8%), lögaðilar (1,6%) af heildarfasteignamati.
2. Þinglýsingargjald af kaupsamningi, veðskuldabréfi, mögulegu veðleyfi o.fl. – kr. 2.700 kr. af hverju skjali.
3. Lántökugjald lánastofnunar er skv. verðskrá viðkomandi lánastofnunar.
4. Umsýslugjald til fasteignasölu skv. þjónustusamningi
Hraunhamar er elsta fasteignasala Hafnarfjarðar, stofnuð 1983 og fagnar því 40 ára afmæli á árinu 2023.
Hraunhamar, í fararbroddi í 40 ár. – Hraunhamar.is
Íbúðin er 128,1 fm með geymslu og er á þriðju hæð, lyfta er í húsinu.
Fasteignamat næsta árs verður 85.600.000 kr.
Skipting eignarinnar: Hol, sjónvarpshol, þrjú svefnherbergi, stofa, eldhús, þvottahús, baðherbergi og geymsla, auk reglubundinnar sameignar.
Seljendur skoða skipti á stærri eign í Hafnarfirði.
Nánari lýsing:
Forstofa með góðum fataskápum, gott sjónvarpshol.
Rúmgott eldhús með fallegri eikarinnréttingu og eyju.
Björt og rúmgóð stofa, þaðan er utangengt út stórar rúmgóðar svalir.
Halogen lýsing er í stofunni.
Tvö rúmgóð barnaherbergi með fataskápum.
Gott hjónaherbergi með fataskápum.
Stórt flísalagt baðherbergi með baðkari, sturtuklefa og fallegri baðinnréttingu.
Rúmgott flísalagt þvottahús.
Góð geymsla í sameign.
Gólfefni eru eikarparket og flísar.
Þetta er sérlega falleg eign sem vert er að skoða. Öll rými rúmgóð og nýtist öll vel.
Stutt í alla þjónustu, s.s. skóla, leiksskóla, íþróttamiðstöð Hauka, Ásvallalaug og verslanir.
Nánari upplýsingar vetir Hlynur Halldórsson löggiltur fasteignasali í s. 698-2603 eða í gegnum tölvupóst á hlynur@hraunhamar.is
Skoðunarskylda:
Í lögum um fasteignakaup nr. 40/2002 er kveðið á um ríka skoðunarskyldu kaupenda á fasteignum. Hraunhamar fasteignasala vill benda væntanlegum kaupendum á að kynna sér vel ástand fasteigna fyrir kauptilboðsgerð og ef þurfa þykir að leita til sérfræðinga fyrir nánari ástandsskoðun.
Gjöld sem kaupandi þarf að standa straum af vegna kaupanna:
1. Stimpilgjald af kaupsamningi, fyrstu kaup (0,4%), almenn kaup (0,8%), lögaðilar (1,6%) af heildarfasteignamati.
2. Þinglýsingargjald af kaupsamningi, veðskuldabréfi, mögulegu veðleyfi o.fl. – kr. 2.700 kr. af hverju skjali.
3. Lántökugjald lánastofnunar er skv. verðskrá viðkomandi lánastofnunar.
4. Umsýslugjald til fasteignasölu skv. þjónustusamningi
Hraunhamar er elsta fasteignasala Hafnarfjarðar, stofnuð 1983 og fagnar því 40 ára afmæli á árinu 2023.
Hraunhamar, í fararbroddi í 40 ár. – Hraunhamar.is
Ár
Fasteignamat
Kaupverð
Stærð
Fermetraverð
15. des. 2020
49.250.000 kr.
52.400.000 kr.
128.1 m²
409.055 kr.
21. nóv. 2011
23.100.000 kr.
26.157.000 kr.
128.1 m²
204.192 kr.
4. jún. 2007
26.740.000 kr.
25.500.000 kr.
128.1 m²
199.063 kr.
5. feb. 2007
26.740.000 kr.
25.200.000 kr.
128.1 m²
196.721 kr.
20. des. 2006
24.340.000 kr.
25.200.000 kr.
128.1 m²
196.721 kr.
Byggt á upplýsingum úr Þjóðskrá Íslands frá 2006-2025