Löggiltir fasteignasalar innan Félags fasteignasala:
Ástþór Reynir Guðmundsson
Vigdís R. S. Helgadóttir
Guðbjörg Helga Jóhannesdóttir
Gylfi Jens Gylfason
Sigrún Matthea Sigvaldadóttir
Sveinn Gíslason
Páll Guðmundsson
Þórarinn Arnar Sævarsson
Berglind Hólm Birgisdóttir
Þorsteinn Gíslason
Guðrún Lilja Tryggvadóttir
Brynjar Ingólfsson
Guðný Þorsteinsdóttir
Bjarni Blöndal
Þorsteinn Ólafs
Þórdís Björk Davíðsdóttir
Jóhann Kristinn Jóhannesson
Bjarný Björg Arnórsdóttir
Salvör Þóra Davíðsdóttir
Magga Sigríður Gísladóttir
Upplýsingar
Byggt 2025
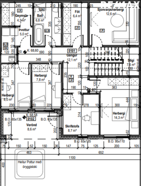
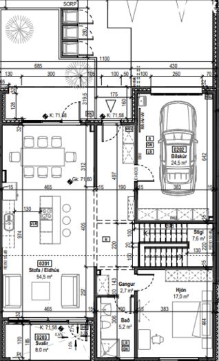
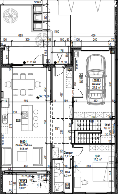
237,6 m²
7 herb.
2 baðherb.
6 svefnh.
Þvottahús
Bílskúr
Sérinngangur
Opið hús: 15. nóvember 2025
kl. 14:00
til 14:30
Opið hús: Axlarás 35, 221 Hafnarfjörður. Eignin verður sýnd laugardaginn 15. nóvember 2025 milli kl. 14:00 og kl. 14:30.
Lýsing
Pétur Ásgeirsson löggiltur fasteignasali hjá RE/MAX fasteignasölu kynnir: Glæsilegt 237,6,fm raðhús á tveimur hæðum með bílskúr við Axlarás 35 í Áslandi Hafnarfirði. Frábær staðsetning í suður hlíðum Ásfjalls sem er vinsælt og fjölskylduvænt svæði með fjölbreyttum möguleikum til útivistar (Hvaleyrarvatn og Helgafell í bakgarðinum. Eignin er skráð íbúð 209,5 fm og bílskúr 28,1 fm og skiptist í stofu, eldhús, sex svefnherbergi, 2 baðherbergi, sjónvarpsherbergi og þvottahús. -
Allar inni myndir eru teknar í Axlarás 35.
Húsið skilast á byggingarstigi 3 tilbúið til innréttinga.
Húsið skilast samkvæmt skilalýsingu.
* Hægt að hafa 6 svefnherbergi.
* Glæsilegt útsýni.
* Stórar svalir.
* Sérafnotareitur bæði að framan og aftan.
* Mjög hátt til lofts.
* Stórt alrými.
* Mjög stór bílskúr.
Við hönnun hússins er lögð áhersla á að njóta útsýnis og sólar, meðal annars með stórum svölum, þá er lögð áhersla á að sjónrænt myndi húsið heildarsvip og að samræming sé í efnis og litavali.
Húsið er forsteypt einingahús frá Steypustöðinni/ Loftorku ehf.Húsið stendur neðan við götu. Eignin er seld á byggingarstigi 3(stig 5 skv. eldri staðli). Fullgerð bygging að utan og tilbúin til innréttingar samkvæmt staðli ÍST 51. Við hönnun hússins er lögð áhersla á að njóta útsýnis og sólar, meðal annars með stórum svölum, þá er lögð áhersla á að sjónrænt myndi húsið heildarsvip og að samræming sé í efnis og litavali.
Húsið er forsteypt einingahús frá Steypustöðinni/ Loftorku ehf.Húsið stendur neðan við götu. Eignin er seld á byggingarstigi 3(stig 5 skv. eldri staðli). Fullgerð bygging að utan og tilbúin til innréttingar samkvæmt staðli ÍST
Til viðbótar við byggingarstig 3 verður hluta af lóðarfrágangi lokið, hellulögn með snjóbræðslu. Steyptir stoðveggir og stigi með handriði
Burðarvirki:
Burðarvirki hússins eru úr forsteyptum einingum, útveggir úr samlokueiningum.
Sökklar, botnplata: Staðsteypt járnbent steinsteypa.
Útveggir:For steyptar samlokueiningar, járnbent steinsteypa.
Gólfplötur/ loftaplötur: For steyptar Filigranplötur / staðsteypt / járnbent steinsteypa.
Útveggir:
Húsið er einangrað að utan með pússaðri áferð, veggir verða málaðir í ákveðnum jarðlit.
Innveggir:
Burðarveggir og innveggir eru forsteyptir járnbentir veggir, skilast sparslaðir og málaðir, grunnur+1umferð.
Loft:
Forsteyptar fíligran loftplötur eru slípaðar og sandspartlaðar, grunnaðar og málaðar eina umferð.
Þak:
Flatt þak staðsteypt með vatnshalla að niðurföllum. Á þakplötunni er einangrun,
þakdúkur og sjávarmöl samkvæmt teikningu hönnuðar.
Niðurföll eru tengd regnsvatnslögnum. Þök og þakbrúnir skilast fullgerðar og
frágengnar með endalegri yfirborðsáferð, ásamt rennum og niðurföllum.
Svalir.
Svalir/ svalagólf eru úr for steyptri járnbentri steinsteypu. Svalagólf eru með sléttri áferð. Svala loft eru steypt með sléttri áferð,.
Handrið á svölum er dökkt gler.
Gluggar:
Gluggar eru ál/tré-gluggar, karmar úr furu, klæddir að utan með áli. Opnanleg fög eru ál/ tré, en hurðakarmar svalahurða og sameignahurða eru úr fura. Allir opnanlegir rammar skulu vera topphengdir. Gler: Gler verður 1. flokks með 5 ára ábyrgð frá framleiðanda. Gluggar eru frá gluggatækni.
Lóð:
Að utan skilast hellulögð, með snjóbræðslu að hluta.
Gólf:
Skilast tilbúin undir gólfefni.
Loftræsing:
Húsið er með loftskipti kerfi þ.e rafknúin loftræsing, loftræsting er í hverju herbergi.
Raflagnir.
Lýsing: vinnuljós eru tengd í hverju herbergi. Rofar og tenglar fylgja ekki.
Loftræsi-, vatns- og þrifalagnir: loftræsi-, vatns- og þrifalagnir fylgja frágengnar skv. teikningum.
Rafmagns og sjónvarpslagnir: rafmagns- síma- og fjarskiptalögn fylgir . Tenglar fylgja ekki, en öllum ídrætti er lokið.
Hitalagnir.
Gólfhiti er á báðum hæðum í húsinu
Kaupandi greiðir skipulagsgjald þegar. Það verður innheimt (0,3% af væntanlegu brunabótamati).
Nánari upplýsingar gefur Pétur Ásgeirsson löggiltur fasteignasali í síma 893-6513 / petur@remax.is
Vegna mikillar eftirspurnar vantar mig allar tegundir eigna á skrá. Hafðu samband og ég mun verðmeta eign þína þér að kostnaðarlausu.
Gjöld sem kaupandi þarf að standa straum af vegna kaupanna:
1. Stimpilgjald af kaupsamningi - 0,8%(einstaklingar) 1.6% (lögaðilar) af heildarfasteignamati.
2. Þinglýsingargjald af kaupsamningi, veðskuldabréfi, mögulegu veðleyfi o.fl. - kr. 2.700 af hverju skjali.
3. Lántökugjald lánastofnunar - almennt 45-75 þús.kr. Nánari upplýsingar á heimasíðu lánastofnana.
4. Umsýslugjald til fasteignasölu kr. 69.900 mvsk.
Allar inni myndir eru teknar í Axlarás 35.
Húsið skilast á byggingarstigi 3 tilbúið til innréttinga.
Húsið skilast samkvæmt skilalýsingu.
* Hægt að hafa 6 svefnherbergi.
* Glæsilegt útsýni.
* Stórar svalir.
* Sérafnotareitur bæði að framan og aftan.
* Mjög hátt til lofts.
* Stórt alrými.
* Mjög stór bílskúr.
Við hönnun hússins er lögð áhersla á að njóta útsýnis og sólar, meðal annars með stórum svölum, þá er lögð áhersla á að sjónrænt myndi húsið heildarsvip og að samræming sé í efnis og litavali.
Húsið er forsteypt einingahús frá Steypustöðinni/ Loftorku ehf.Húsið stendur neðan við götu. Eignin er seld á byggingarstigi 3(stig 5 skv. eldri staðli). Fullgerð bygging að utan og tilbúin til innréttingar samkvæmt staðli ÍST 51. Við hönnun hússins er lögð áhersla á að njóta útsýnis og sólar, meðal annars með stórum svölum, þá er lögð áhersla á að sjónrænt myndi húsið heildarsvip og að samræming sé í efnis og litavali.
Húsið er forsteypt einingahús frá Steypustöðinni/ Loftorku ehf.Húsið stendur neðan við götu. Eignin er seld á byggingarstigi 3(stig 5 skv. eldri staðli). Fullgerð bygging að utan og tilbúin til innréttingar samkvæmt staðli ÍST
Til viðbótar við byggingarstig 3 verður hluta af lóðarfrágangi lokið, hellulögn með snjóbræðslu. Steyptir stoðveggir og stigi með handriði
Burðarvirki:
Burðarvirki hússins eru úr forsteyptum einingum, útveggir úr samlokueiningum.
Sökklar, botnplata: Staðsteypt járnbent steinsteypa.
Útveggir:For steyptar samlokueiningar, járnbent steinsteypa.
Gólfplötur/ loftaplötur: For steyptar Filigranplötur / staðsteypt / járnbent steinsteypa.
Útveggir:
Húsið er einangrað að utan með pússaðri áferð, veggir verða málaðir í ákveðnum jarðlit.
Innveggir:
Burðarveggir og innveggir eru forsteyptir járnbentir veggir, skilast sparslaðir og málaðir, grunnur+1umferð.
Loft:
Forsteyptar fíligran loftplötur eru slípaðar og sandspartlaðar, grunnaðar og málaðar eina umferð.
Þak:
Flatt þak staðsteypt með vatnshalla að niðurföllum. Á þakplötunni er einangrun,
þakdúkur og sjávarmöl samkvæmt teikningu hönnuðar.
Niðurföll eru tengd regnsvatnslögnum. Þök og þakbrúnir skilast fullgerðar og
frágengnar með endalegri yfirborðsáferð, ásamt rennum og niðurföllum.
Svalir.
Svalir/ svalagólf eru úr for steyptri járnbentri steinsteypu. Svalagólf eru með sléttri áferð. Svala loft eru steypt með sléttri áferð,.
Handrið á svölum er dökkt gler.
Gluggar:
Gluggar eru ál/tré-gluggar, karmar úr furu, klæddir að utan með áli. Opnanleg fög eru ál/ tré, en hurðakarmar svalahurða og sameignahurða eru úr fura. Allir opnanlegir rammar skulu vera topphengdir. Gler: Gler verður 1. flokks með 5 ára ábyrgð frá framleiðanda. Gluggar eru frá gluggatækni.
Lóð:
Að utan skilast hellulögð, með snjóbræðslu að hluta.
Gólf:
Skilast tilbúin undir gólfefni.
Loftræsing:
Húsið er með loftskipti kerfi þ.e rafknúin loftræsing, loftræsting er í hverju herbergi.
Raflagnir.
Lýsing: vinnuljós eru tengd í hverju herbergi. Rofar og tenglar fylgja ekki.
Loftræsi-, vatns- og þrifalagnir: loftræsi-, vatns- og þrifalagnir fylgja frágengnar skv. teikningum.
Rafmagns og sjónvarpslagnir: rafmagns- síma- og fjarskiptalögn fylgir . Tenglar fylgja ekki, en öllum ídrætti er lokið.
Hitalagnir.
Gólfhiti er á báðum hæðum í húsinu
Kaupandi greiðir skipulagsgjald þegar. Það verður innheimt (0,3% af væntanlegu brunabótamati).
Nánari upplýsingar gefur Pétur Ásgeirsson löggiltur fasteignasali í síma 893-6513 / petur@remax.is
Vegna mikillar eftirspurnar vantar mig allar tegundir eigna á skrá. Hafðu samband og ég mun verðmeta eign þína þér að kostnaðarlausu.
Gjöld sem kaupandi þarf að standa straum af vegna kaupanna:
1. Stimpilgjald af kaupsamningi - 0,8%(einstaklingar) 1.6% (lögaðilar) af heildarfasteignamati.
2. Þinglýsingargjald af kaupsamningi, veðskuldabréfi, mögulegu veðleyfi o.fl. - kr. 2.700 af hverju skjali.
3. Lántökugjald lánastofnunar - almennt 45-75 þús.kr. Nánari upplýsingar á heimasíðu lánastofnana.
4. Umsýslugjald til fasteignasölu kr. 69.900 mvsk.