Upplýsingar
Byggt 2024
111 m²
3 herb.
1 baðherb.
2 svefnh.
Þvottahús
Bílskúr
Sérinngangur
Lýsing
ALLT fasteignasala sími 560-5500 kynnir í einkasölu endaraðhús við Guðrúnartún 3a, íbúðin er laus við kaupsamning!
Guðrúnartún 3a, er falleg vel skipulögð íbúð, innangeng frá íbúð.
Íbúðin er laus við kaupsamning, afhent fullgerð. Bókið skoðun.
Íbúðirnar eru afhentar á byggingarstigi B4, fullgerð eign, ásamt lóð tyrfð og bílastæði hellulögð eða steypt og snjóbræðslulögnum og húsið tilbúið að utan ásamt sorptunniskýli. Sjá skilalýsingu seljanda.
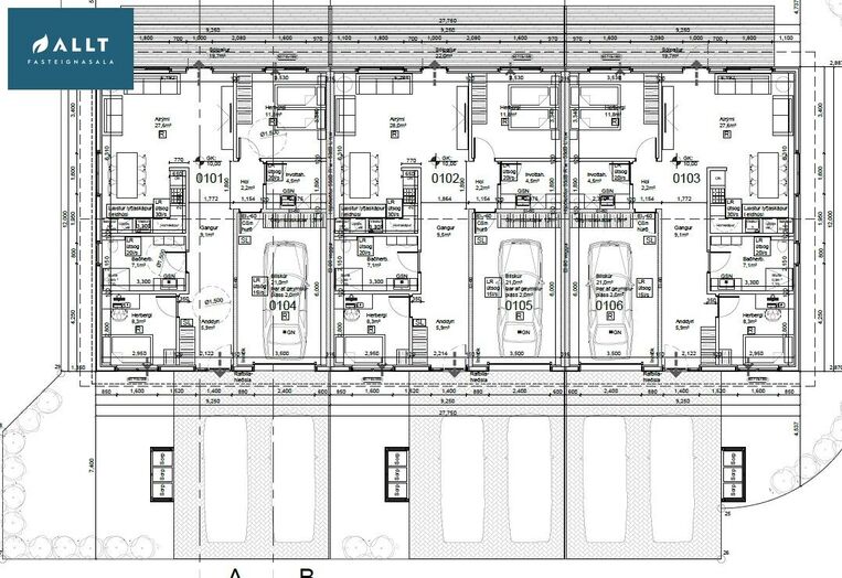
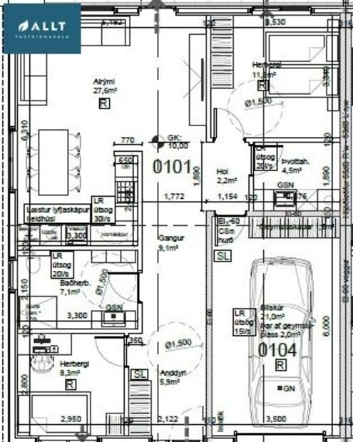
Guðrúnartún 3 er 3ja herbergja íbúðir í 3ja íbúða raðhúsi á einni hæð með bílskúr sem er í byggingu. Birt stærð hverrar eignar er 111,0 fm.
Skipulag íbúðar er rúmgott anddyri, með tveimur svefnherbergjum, eldhúsi og stofu/borðstofu í rúmgóðu opnu rými, baðherbergi, þvottahúsi.
Burðarvirki hússins er úr timbri. Innangengt er í 21 fm. bílskúr úr íbúðinni. Útveggir eru klæddir að utan með grárri báruklæðningu (Ral 9006) og timburklæðningu í bland.
Staðsetning eignarinnar er innst í bænum á friðsælum stað með útsýni til Rangá og við ósnorta náttúru og gott útsýni. Eignin henntar fyrir eldriborgara þar sem hjúkrunarheimilið Lundur er í göngufæri frá íbúðunum.
Einnig er þetta góð fyrstukaup, eða sem annað heimili.
Kaupandi greiðir skipulagsgjald (0,3% af endanlegu brunabótamati) þegar það verður lagt á.
Gatnagerðargjöld eru að fullu greidd, þ.a.s. byggingarlóð, gatnagerð, byggingarleyfisgjald og stofngjald holræsa og vatnsveitu. Inntaksgjöld rafmagns og hita eru greidd.
Nánari upplýsingar og gögn sbr teikningar og skilalýsingar veitir:
Páll Þorbjörnsson
Löggiltur fasteignasali
Síma 560-5501
Netfang pall@allt.is
Byggingalýsing:
Útveggir:
Útveggir eru timburveggir, einangraðir með 150mm þéttull. Veggir eru klæddir að utan með ljósri báruklæðningu og timburklæðningu í bland. Að innan eru veggir klæddir með gifsklæðningu.
Þak:
Þak er timburþak, byggt upp með kraftsperrum. Borðaklæðning, þakpappi og ysta klæðning er aluzink báruklæðning. Loft er neðan í sperrum að innan og klætt að neðan með sléttri gifsklæðningu. Þakkantur er ljós að lit og þakhalli.
Gluggar og hurðir:
Gluggar og hurðir eru timburgluggar, hvítir/ljósir að lit.
Gólf:
Botnplata er járnbent steinsteypa, staðsteypt á burðarhæfa grús.
Innveggir og innihurðir:
Léttir veggir eru gifsveggir. Allar innihurðir skulu vera með 80cm hindrunarlausri umferðarbreidd og hæð upp á 200cm.
Sorp:
Sorptunnuskýli eru fyrir hverja íbúð. Gert er ráð fyrir þremur sorptunnum fyrir hverja íbúð m.t.t. flokkunar á sorpi. Sorptunnuskýli eru staðsett við bílastæði.
Eldvarnir:
Eldvarnarveggur milli íbúða skal vera EI-90 tvöfaldur 2* 70*45mm timburgrind (veggur) með 70mm steinullareinangrun sem er fest með vír skv. leiðbeiningarblaði HMS. Eldvarnarveggir eru klæddir með tvöföldu gifsi hvoru megin. Íbúiðin er sjálfstætt brunahólf.
Lóð:
Skilast frágengin skv skilalýsingu. Bílastæði og aðkoma er hellulögð/steypt/mulningur. Bílastæði eru 2 á hverja íbúð.
Lagnir og lagnaleiðir:
Lagnainntök eru í bílskúr í hverri íbúð. Upphitun er hitaveita. Hitakerfi er ísteyptur gólfhiti. Neysluvatnslagnir eru almennt ísteyptar rör í rör kerfi og einnig í innveggjum þar sem það á við.
Raflagnir eru í raflagnagrind útveggja og innveggjagrindum. Loftræsting lokaðra rýma skal vera með vélrænni loftræstingu um þak eða gegnum útveggi.
Algild hönnun:
Íbúðum er auðvelt að breyta m.t.t. aðgengis og skv. þörfum hreyfihamlaðra og sjónskertra. Þröskuldar hurða eru lágir og miðað er við að innihurðir séu almennt þröskuldslausar. Aðkoma inn í íbúðir um aðalhurð er hægt að útbúa með rampi. Baðherbergi ná lágmarksstærð og er miðað við innfellda sturtu.
Hella er staðsett á Suðurlandi, um 94 km frá höfuðborginni Reykjavík. Um klukkustunda aksturs fjarlægð. Það er staðsett meðfram Ytri-Rangá og þjónar sem miðstöð fyrir ferðalanga sem skoða náttúru Íslands eins og Heklu eldfjallið í nágrenninu, Landmannalaugar og Gullna hringinn. Töluverður landbúnaður og hestamenska er í og við Hellu. Hella er oft notuð sem viðkomustaður fyrir þá sem heimsækja hálendi Íslands, fossa svæðisins, þar á meðal Seljalandsfoss og Skógafoss, sem og jökla eins og Eyjafjallajökul og Mýrdalsjökul. Góð grunnþjónustu eins og gisting, verslanir, veitingastaði, sundlaug og leiksvæði.
ALLT fasteignasala er staðsett á eftirfarandi stöðum:
Hafnargötu 91, 230 Reykjanesbæ - Þverholti 2, 270 Mosfellsbæ
Kostnaður kaupanda:
1. Af gjaldskyldum skjölum skal greiða 0,8% af fasteignamati ef kaupandi er einstaklingur, fyrstukaupendur 0,4% og 1,6% af fasteignamati ef kaupandi er lögaðili.
2. Þinglýsingargjald á hvert skjal er kr. 2.700.
3. Lántökugjald fer eftir verðskrá lánastofnunar hverju sinni.
4. Umsýslugjald til ALLT fasteignasölu er kr. 69.440 m/vsk.
5. Sé um nýbyggingu um að ræða greiðir kaupandi skipulagsgjald, 0,3% af brunabótamati, þegar það er lagt á.
Skoðunar- og aðgæsluskylda kaupanda:
Í lögum um fasteignakaup nr. 40/2002 er kveðið á um ríka skoðunarskyldu kaupenda á fasteignum. ALLT fasteignasala vill beina því til væntanlegs kaupanda að kynna sér ástand fasteignar vel við skoðun og fyrir tilboðsgerð. Ef þurfa þykir er ráðlagt að leita til sérfræðifróðra aðila. Forsendur söluyfirlits: Söluyfirlit þetta er samið af fasteignasala til samræmis við lög um sölu fasteigna og skipa nr. 70/2015. Upplýsingar þær sem koma fram í söluyfirliti þessu eru sóttar í opinberar skrár, frá seljanda og eftir atvikum til húsfélags. Seljandi veitir upplýsingar um eignina til samræmis við upplýsingaskyldu sína sbr. lög um fasteignakaup nr. 40/2002. Fasteignasali sannreynir að upplýsingar séu réttar með sjónskoðun á eigninni. Fasteignasali getur ekki fullyrt um ástand og eiginleika þeirra hluta fasteignar sem ekki eru aðgengilegir og sjást ekki með berum augum, eins og t.d. lagnir, dren, skólp og þak.
Guðrúnartún 3a, er falleg vel skipulögð íbúð, innangeng frá íbúð.
Íbúðin er laus við kaupsamning, afhent fullgerð. Bókið skoðun.
Íbúðirnar eru afhentar á byggingarstigi B4, fullgerð eign, ásamt lóð tyrfð og bílastæði hellulögð eða steypt og snjóbræðslulögnum og húsið tilbúið að utan ásamt sorptunniskýli. Sjá skilalýsingu seljanda.
Guðrúnartún 3 er 3ja herbergja íbúðir í 3ja íbúða raðhúsi á einni hæð með bílskúr sem er í byggingu. Birt stærð hverrar eignar er 111,0 fm.
Skipulag íbúðar er rúmgott anddyri, með tveimur svefnherbergjum, eldhúsi og stofu/borðstofu í rúmgóðu opnu rými, baðherbergi, þvottahúsi.
Burðarvirki hússins er úr timbri. Innangengt er í 21 fm. bílskúr úr íbúðinni. Útveggir eru klæddir að utan með grárri báruklæðningu (Ral 9006) og timburklæðningu í bland.
Staðsetning eignarinnar er innst í bænum á friðsælum stað með útsýni til Rangá og við ósnorta náttúru og gott útsýni. Eignin henntar fyrir eldriborgara þar sem hjúkrunarheimilið Lundur er í göngufæri frá íbúðunum.
Einnig er þetta góð fyrstukaup, eða sem annað heimili.
Kaupandi greiðir skipulagsgjald (0,3% af endanlegu brunabótamati) þegar það verður lagt á.
Gatnagerðargjöld eru að fullu greidd, þ.a.s. byggingarlóð, gatnagerð, byggingarleyfisgjald og stofngjald holræsa og vatnsveitu. Inntaksgjöld rafmagns og hita eru greidd.
Nánari upplýsingar og gögn sbr teikningar og skilalýsingar veitir:
Páll Þorbjörnsson
Löggiltur fasteignasali
Síma 560-5501
Netfang pall@allt.is
Byggingalýsing:
Útveggir:
Útveggir eru timburveggir, einangraðir með 150mm þéttull. Veggir eru klæddir að utan með ljósri báruklæðningu og timburklæðningu í bland. Að innan eru veggir klæddir með gifsklæðningu.
Þak:
Þak er timburþak, byggt upp með kraftsperrum. Borðaklæðning, þakpappi og ysta klæðning er aluzink báruklæðning. Loft er neðan í sperrum að innan og klætt að neðan með sléttri gifsklæðningu. Þakkantur er ljós að lit og þakhalli.
Gluggar og hurðir:
Gluggar og hurðir eru timburgluggar, hvítir/ljósir að lit.
Gólf:
Botnplata er járnbent steinsteypa, staðsteypt á burðarhæfa grús.
Innveggir og innihurðir:
Léttir veggir eru gifsveggir. Allar innihurðir skulu vera með 80cm hindrunarlausri umferðarbreidd og hæð upp á 200cm.
Sorp:
Sorptunnuskýli eru fyrir hverja íbúð. Gert er ráð fyrir þremur sorptunnum fyrir hverja íbúð m.t.t. flokkunar á sorpi. Sorptunnuskýli eru staðsett við bílastæði.
Eldvarnir:
Eldvarnarveggur milli íbúða skal vera EI-90 tvöfaldur 2* 70*45mm timburgrind (veggur) með 70mm steinullareinangrun sem er fest með vír skv. leiðbeiningarblaði HMS. Eldvarnarveggir eru klæddir með tvöföldu gifsi hvoru megin. Íbúiðin er sjálfstætt brunahólf.
Lóð:
Skilast frágengin skv skilalýsingu. Bílastæði og aðkoma er hellulögð/steypt/mulningur. Bílastæði eru 2 á hverja íbúð.
Lagnir og lagnaleiðir:
Lagnainntök eru í bílskúr í hverri íbúð. Upphitun er hitaveita. Hitakerfi er ísteyptur gólfhiti. Neysluvatnslagnir eru almennt ísteyptar rör í rör kerfi og einnig í innveggjum þar sem það á við.
Raflagnir eru í raflagnagrind útveggja og innveggjagrindum. Loftræsting lokaðra rýma skal vera með vélrænni loftræstingu um þak eða gegnum útveggi.
Algild hönnun:
Íbúðum er auðvelt að breyta m.t.t. aðgengis og skv. þörfum hreyfihamlaðra og sjónskertra. Þröskuldar hurða eru lágir og miðað er við að innihurðir séu almennt þröskuldslausar. Aðkoma inn í íbúðir um aðalhurð er hægt að útbúa með rampi. Baðherbergi ná lágmarksstærð og er miðað við innfellda sturtu.
Hella er staðsett á Suðurlandi, um 94 km frá höfuðborginni Reykjavík. Um klukkustunda aksturs fjarlægð. Það er staðsett meðfram Ytri-Rangá og þjónar sem miðstöð fyrir ferðalanga sem skoða náttúru Íslands eins og Heklu eldfjallið í nágrenninu, Landmannalaugar og Gullna hringinn. Töluverður landbúnaður og hestamenska er í og við Hellu. Hella er oft notuð sem viðkomustaður fyrir þá sem heimsækja hálendi Íslands, fossa svæðisins, þar á meðal Seljalandsfoss og Skógafoss, sem og jökla eins og Eyjafjallajökul og Mýrdalsjökul. Góð grunnþjónustu eins og gisting, verslanir, veitingastaði, sundlaug og leiksvæði.
ALLT fasteignasala er staðsett á eftirfarandi stöðum:
Hafnargötu 91, 230 Reykjanesbæ - Þverholti 2, 270 Mosfellsbæ
Kostnaður kaupanda:
1. Af gjaldskyldum skjölum skal greiða 0,8% af fasteignamati ef kaupandi er einstaklingur, fyrstukaupendur 0,4% og 1,6% af fasteignamati ef kaupandi er lögaðili.
2. Þinglýsingargjald á hvert skjal er kr. 2.700.
3. Lántökugjald fer eftir verðskrá lánastofnunar hverju sinni.
4. Umsýslugjald til ALLT fasteignasölu er kr. 69.440 m/vsk.
5. Sé um nýbyggingu um að ræða greiðir kaupandi skipulagsgjald, 0,3% af brunabótamati, þegar það er lagt á.
Skoðunar- og aðgæsluskylda kaupanda:
Í lögum um fasteignakaup nr. 40/2002 er kveðið á um ríka skoðunarskyldu kaupenda á fasteignum. ALLT fasteignasala vill beina því til væntanlegs kaupanda að kynna sér ástand fasteignar vel við skoðun og fyrir tilboðsgerð. Ef þurfa þykir er ráðlagt að leita til sérfræðifróðra aðila. Forsendur söluyfirlits: Söluyfirlit þetta er samið af fasteignasala til samræmis við lög um sölu fasteigna og skipa nr. 70/2015. Upplýsingar þær sem koma fram í söluyfirliti þessu eru sóttar í opinberar skrár, frá seljanda og eftir atvikum til húsfélags. Seljandi veitir upplýsingar um eignina til samræmis við upplýsingaskyldu sína sbr. lög um fasteignakaup nr. 40/2002. Fasteignasali sannreynir að upplýsingar séu réttar með sjónskoðun á eigninni. Fasteignasali getur ekki fullyrt um ástand og eiginleika þeirra hluta fasteignar sem ekki eru aðgengilegir og sjást ekki með berum augum, eins og t.d. lagnir, dren, skólp og þak.