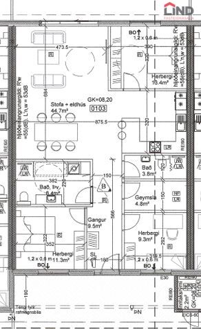
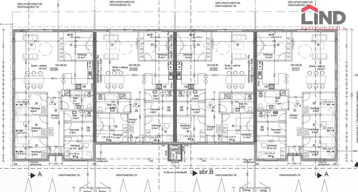
Hrafnaborg, 190 Vogar