Upplýsingar
Verðsaga
Byggt 1978
264,5 m²
8 herb.
4 baðherb.
5 svefnh.
Þvottahús
Útsýni
Laus strax
Lýsing
GOTT EINBÝLISHÚS Á TVEIMUR HÆÐUM MEÐ AUKA ÍBÚÐ AÐ ÁLFABREKKU Í KÓPAVOGI
Valhöll kynnir bjart og vel skipulagt einbýlishús að Álfabrekku 11 Kópavogi með innbyggðum bílskúr og um 45 fm auka íbúð á neðri hæð, að auki er hægt að leiga út herbergi á neðri hæð sem er með salerni . Húsið sem er teiknað af Kjartani Sveinssyni er einstaklega vel staðsett í norður hlíð Kópavogshæðar með góðu útsýni úr stofu og eldhúsi til Esjunnar, Akrafjalls og út á sundin. Góð suður verönd með heitum potti og skjólveggjum. Stutt er í alla þjónustu, skóla, leikskóla, verslanir, góðar gönguleiðir og stutt í almenningssamgöngur.
Húsið er byggt 1978, skráð alls 264,5 fm. Íbúðarrými 236,3 fm og bílskúr 28,2. Sér inngangar eru inn á báðar hæðir. Hiti er í bílastæði. Gott hús á rólegum stað er nýtist vel fyrir stóra fjölskyldu og með góða útleigumöguleika á neðri hæð.
Bókið tíma fyrir einkasýningar en opið hús verður miðvikudaginn 29. október 17:30 til 18:00
Nánari upplýsingar veitir
Snorri Snorrason löggiltur fasteignasali í síma 895-2115 og snorri@valholl.is
Eignin í stuttu máli.
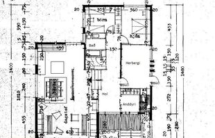
Efri hæð hússins er á 2 pöllum, inngangur er inn á neðri pallinn um yfirbyggða verönd.
Þar eru anddyri, forstofu wc, hol, gangur, baðherbergi og 3 rúmgóð svefnherbergi en eru 4 á teikningu. Svalahurð út á verönd er úr herbergi. Þrjár tröppur eru upp í bjart og rúmgott alrými sem er stofa, borðstofa og eldhús opið við stofu.
Inn á neðri hæð eru 2 inngangar af baklóð, annar inn í 45 fm íbúð, sem skiptist í miðrými með eldunaraðstöðu, herbergi, geymslu og baðherbergi með tengi fyrir þvottvél og þurrkara. Húsbúnaður í útleiguíbúð fylgir með.
Hinn inngangurinn er inn á neðri hæð hússins og er þar gangur, þvottahús með sturtuklefa, 3 stórar geymslur og herbergi með snyrtingu. Innangengt er á milli hæða um steyptan stiga.
Bílskúr 28,2 fm er með rafdrifini hurð og hiti er í bílastæði framan við húsið og undir hellulagðri stétt meðfram húsinu.
Stór suðurverönd tengist steyptri yfirbyggðri verönd við aðaldyr. Heitur pottur og garðáhaldageymsla eru á verönd. Lóð er fallega ræktuð með trjágróðri.
Fasteignamat ársins 2026 er fyrirhugað 161.150.000 kr.
Nánari lýsing:
Íbúð, efri hæð, neðri pallur.
Verönd: steypt, og yfirbyggð
Forstofa: Flísalögð með fataskáp
Forstofu snyrting: Flísalagt með hvítum hreinlætistækjum
Hol / gangur: Rúmgott rými með parket á gólfi.
Baðherbergi: Flísalagt gólf, innrétting, hvít hreinlætistæki, upphengt salerni, og baðkar.
Svefnherbergi I: Hjónaherbergi með góðum fataskáp og parketi á gólfi.
Svefnherbergi II: Með fataskáp og parketi á gólfi.
Svefnherbergi III: Með fataskáp, parketi á gólfi og útgangur út á verönd. Var áður 2 herbergi skv teikningu og auðvelt að breyta aftur.
Íbúð, efri hæð, efri pallur.
Stofa / borðstofa: Björt og opin með parketi á gólfum og útgengt út á vestur svalir. Mikið útsýni úr gluggum og af svölum
Eldhús: Opið við stofu, parket á gólfi, eikar innrétting, eyja með spanhelluborði, ofn í vinnuhæð, tvöfaldur ísskápur og uppþvottavél.
Íbúð, neðri hæð.
Anddyri/gangur: Flísar á gólfum. Stigi upp á efri hæð með teppi á þrepum.
Þvottahús: Rúmgott lakkað gólf, sturtuklefi, tengi fyrir þvottavél og þurrkara í vinnuhæð.
Herbergi með wc: Parket á gólfi herbergis, flísar á gólfi wc, hvít hreinlætistæki og innrétting.
Geymslur: 3 rúmgóðar geymslur, lökkuð gólf og hillur.
Auka íbúð neðri hæð í útleigu
Miðrými: Parket á gólfi, flísar við útihurð og fataskápur. Eldhúsinnrétting með, helluborði, viftuháf, ofn, uppþvottavél og ísskáp. Góður geymsluskápur.
Herbergi: Parket á gólfi, opið að hluta við miðrými.
Bað: Flísar á gólfi, hvít hreinlætistæki, vegghengt wc innrétting, sturtuhorn og tengi fyrir þvottavél og þurrkara sem fylgir með.
Bílskúr: innbyggður, 28,2 fm, með rafdrifinni hurð, hillum á veggjum, vatn og rafmagn.
Endurbætur skv. upplýsingum frá fyrri eigendum
Húsið klætt að utan 1996, gler endurnýjuð 2006, endurbætt að innan 2008.
Endurbætur skv. upplýsingum frá núverandi eigendum.
2018. Aukaíbúð endurnýjuð og endurskipulögð.
2018. Parket á herbergi á neðri hæð og endurnýjað innrétting og hreinlætistæki á wc.
2020. Parket á efri hæð endurnýjað 2020 samhliða breytingum í eldhúsi
2020. Nýjar innihurðar á efri hæð og svalahurð út á verönd.
2022. Baðherbergi endurnýjað, gólfefni, innréttingar, blöndunartæki og wc.
2025. Þakjárn málað
Um skoðunar- og aðgæsluskyldu:
Í lögum um fasteignakaup nr. 40/2002 er kveðið á um ríka skoðunarskyldu kaupenda á fasteignum. Valhöll fasteignasala bendir væntanlegum kaupendum á að kynna sér vel ástand fasteigna við skoðun og fyrir tilboðsgerð og ef þurfa þykir að leita til sérfræðinga um nánari ástandsskoðun. Forsendur söluyfirlits: Söluyfirlit er samið af fasteignasala í samræmi við ákvæði laga nr. 70/2015. Þær upplýsingar sem fram koma í söluyfirliti þessu eru sóttar í opinberar skrár, til seljanda sjálfs og eftir atvikum til húsfélags. Seljandi veitir upplýsingar um eign í samræmi við upplýsingaskyldu laga um fasteignakaup nr. 40/2002, og ábyrgist að þær séu réttar. Fasteignasali sannreynir að þær upplýsingar séu réttar með sjónskoðun á eigninni. Fasteignasali getur ekki fullyrt um ástand og eiginleika þeirra hluta fasteigna sem ekki eru aðgengilegir og sjást ekki berum augum, t.d. lagnir, dren, skólp og þak. Það sama á við um staðhæfingar seljanda eignar um viðhald og einstaka framkvæmdir.
Gjöld sem kaupandi þarf að standa straum af vegna kaupanna:
Stimpilgjald af kaupsamningi sem er hlutfall af fasteignamati. Stimpilgjald er 0,8% fyrir einstaklinga (0,4% við fyrstu kaup) og 1,6% fyrir lögaðila.
Þinglýsingargjald af kaupsamningi, veðskuldabréfum, veðleyfum o.fl. Þinglýsingargjald er kr. 2.700,- fyrir hvert skjal.
Lántökugjald lánastofnunar. Um lántökugjald vísast í gjaldskrá viðkomandi lánveitanda.
Umsýsluþóknun fasteignasölu skv. gjaldskrá.
Ef um nýbyggingu er að ræða greiðir kaupandi skipulagsgjald, 0,3% af brunabótamáti, þegar það er lagt á.
Valhöll kynnir bjart og vel skipulagt einbýlishús að Álfabrekku 11 Kópavogi með innbyggðum bílskúr og um 45 fm auka íbúð á neðri hæð, að auki er hægt að leiga út herbergi á neðri hæð sem er með salerni . Húsið sem er teiknað af Kjartani Sveinssyni er einstaklega vel staðsett í norður hlíð Kópavogshæðar með góðu útsýni úr stofu og eldhúsi til Esjunnar, Akrafjalls og út á sundin. Góð suður verönd með heitum potti og skjólveggjum. Stutt er í alla þjónustu, skóla, leikskóla, verslanir, góðar gönguleiðir og stutt í almenningssamgöngur.
Húsið er byggt 1978, skráð alls 264,5 fm. Íbúðarrými 236,3 fm og bílskúr 28,2. Sér inngangar eru inn á báðar hæðir. Hiti er í bílastæði. Gott hús á rólegum stað er nýtist vel fyrir stóra fjölskyldu og með góða útleigumöguleika á neðri hæð.
Bókið tíma fyrir einkasýningar en opið hús verður miðvikudaginn 29. október 17:30 til 18:00
Nánari upplýsingar veitir
Snorri Snorrason löggiltur fasteignasali í síma 895-2115 og snorri@valholl.is
Eignin í stuttu máli.
Efri hæð hússins er á 2 pöllum, inngangur er inn á neðri pallinn um yfirbyggða verönd.
Þar eru anddyri, forstofu wc, hol, gangur, baðherbergi og 3 rúmgóð svefnherbergi en eru 4 á teikningu. Svalahurð út á verönd er úr herbergi. Þrjár tröppur eru upp í bjart og rúmgott alrými sem er stofa, borðstofa og eldhús opið við stofu.
Inn á neðri hæð eru 2 inngangar af baklóð, annar inn í 45 fm íbúð, sem skiptist í miðrými með eldunaraðstöðu, herbergi, geymslu og baðherbergi með tengi fyrir þvottvél og þurrkara. Húsbúnaður í útleiguíbúð fylgir með.
Hinn inngangurinn er inn á neðri hæð hússins og er þar gangur, þvottahús með sturtuklefa, 3 stórar geymslur og herbergi með snyrtingu. Innangengt er á milli hæða um steyptan stiga.
Bílskúr 28,2 fm er með rafdrifini hurð og hiti er í bílastæði framan við húsið og undir hellulagðri stétt meðfram húsinu.
Stór suðurverönd tengist steyptri yfirbyggðri verönd við aðaldyr. Heitur pottur og garðáhaldageymsla eru á verönd. Lóð er fallega ræktuð með trjágróðri.
Fasteignamat ársins 2026 er fyrirhugað 161.150.000 kr.
Nánari lýsing:
Íbúð, efri hæð, neðri pallur.
Verönd: steypt, og yfirbyggð
Forstofa: Flísalögð með fataskáp
Forstofu snyrting: Flísalagt með hvítum hreinlætistækjum
Hol / gangur: Rúmgott rými með parket á gólfi.
Baðherbergi: Flísalagt gólf, innrétting, hvít hreinlætistæki, upphengt salerni, og baðkar.
Svefnherbergi I: Hjónaherbergi með góðum fataskáp og parketi á gólfi.
Svefnherbergi II: Með fataskáp og parketi á gólfi.
Svefnherbergi III: Með fataskáp, parketi á gólfi og útgangur út á verönd. Var áður 2 herbergi skv teikningu og auðvelt að breyta aftur.
Íbúð, efri hæð, efri pallur.
Stofa / borðstofa: Björt og opin með parketi á gólfum og útgengt út á vestur svalir. Mikið útsýni úr gluggum og af svölum
Eldhús: Opið við stofu, parket á gólfi, eikar innrétting, eyja með spanhelluborði, ofn í vinnuhæð, tvöfaldur ísskápur og uppþvottavél.
Íbúð, neðri hæð.
Anddyri/gangur: Flísar á gólfum. Stigi upp á efri hæð með teppi á þrepum.
Þvottahús: Rúmgott lakkað gólf, sturtuklefi, tengi fyrir þvottavél og þurrkara í vinnuhæð.
Herbergi með wc: Parket á gólfi herbergis, flísar á gólfi wc, hvít hreinlætistæki og innrétting.
Geymslur: 3 rúmgóðar geymslur, lökkuð gólf og hillur.
Auka íbúð neðri hæð í útleigu
Miðrými: Parket á gólfi, flísar við útihurð og fataskápur. Eldhúsinnrétting með, helluborði, viftuháf, ofn, uppþvottavél og ísskáp. Góður geymsluskápur.
Herbergi: Parket á gólfi, opið að hluta við miðrými.
Bað: Flísar á gólfi, hvít hreinlætistæki, vegghengt wc innrétting, sturtuhorn og tengi fyrir þvottavél og þurrkara sem fylgir með.
Bílskúr: innbyggður, 28,2 fm, með rafdrifinni hurð, hillum á veggjum, vatn og rafmagn.
Endurbætur skv. upplýsingum frá fyrri eigendum
Húsið klætt að utan 1996, gler endurnýjuð 2006, endurbætt að innan 2008.
Endurbætur skv. upplýsingum frá núverandi eigendum.
2018. Aukaíbúð endurnýjuð og endurskipulögð.
2018. Parket á herbergi á neðri hæð og endurnýjað innrétting og hreinlætistæki á wc.
2020. Parket á efri hæð endurnýjað 2020 samhliða breytingum í eldhúsi
2020. Nýjar innihurðar á efri hæð og svalahurð út á verönd.
2022. Baðherbergi endurnýjað, gólfefni, innréttingar, blöndunartæki og wc.
2025. Þakjárn málað
Um skoðunar- og aðgæsluskyldu:
Í lögum um fasteignakaup nr. 40/2002 er kveðið á um ríka skoðunarskyldu kaupenda á fasteignum. Valhöll fasteignasala bendir væntanlegum kaupendum á að kynna sér vel ástand fasteigna við skoðun og fyrir tilboðsgerð og ef þurfa þykir að leita til sérfræðinga um nánari ástandsskoðun. Forsendur söluyfirlits: Söluyfirlit er samið af fasteignasala í samræmi við ákvæði laga nr. 70/2015. Þær upplýsingar sem fram koma í söluyfirliti þessu eru sóttar í opinberar skrár, til seljanda sjálfs og eftir atvikum til húsfélags. Seljandi veitir upplýsingar um eign í samræmi við upplýsingaskyldu laga um fasteignakaup nr. 40/2002, og ábyrgist að þær séu réttar. Fasteignasali sannreynir að þær upplýsingar séu réttar með sjónskoðun á eigninni. Fasteignasali getur ekki fullyrt um ástand og eiginleika þeirra hluta fasteigna sem ekki eru aðgengilegir og sjást ekki berum augum, t.d. lagnir, dren, skólp og þak. Það sama á við um staðhæfingar seljanda eignar um viðhald og einstaka framkvæmdir.
Gjöld sem kaupandi þarf að standa straum af vegna kaupanna:
Stimpilgjald af kaupsamningi sem er hlutfall af fasteignamati. Stimpilgjald er 0,8% fyrir einstaklinga (0,4% við fyrstu kaup) og 1,6% fyrir lögaðila.
Þinglýsingargjald af kaupsamningi, veðskuldabréfum, veðleyfum o.fl. Þinglýsingargjald er kr. 2.700,- fyrir hvert skjal.
Lántökugjald lánastofnunar. Um lántökugjald vísast í gjaldskrá viðkomandi lánveitanda.
Umsýsluþóknun fasteignasölu skv. gjaldskrá.
Ef um nýbyggingu er að ræða greiðir kaupandi skipulagsgjald, 0,3% af brunabótamáti, þegar það er lagt á.
Ár
Fasteignamat
Kaupverð
Stærð
Fermetraverð
20. des. 2016
65.100.000 kr.
65.700.000 kr.
264.5 m²
248.393 kr.
Byggt á upplýsingum úr Þjóðskrá Íslands frá 2006-2025