Upplýsingar
Byggt 2024
124 m²
4 herb.
3 svefnh.
Bílastæði
Lyfta
Lýsing
BÓKIÐ SKOÐUN - SÝNUM SAMDÆGURS - Einar s 888-7979, Hlynur s. 698-2603, Glódís s. 659-0510, Helgi s. 893-2233, Vala s. 791-7500
Hraunhamar fasteignasala kynnir: Apalskarð 2, glæsilegar nýjar 3ja-4ra herbergja íbúðir í góðu lyftufjölbýli vel staðsett í göngufjarlægð frá leik- og grunnskóla í Skarðshlíðarhverfinu í Hafnarfirði.
Íbúðirnar skilast allar fullbúnar án gólfefna en votrými verða flísalögð. Öllum íbúðunum fylgir stæði í lokaðri bílageymslu.
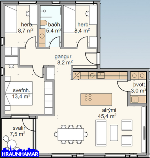
Íbúð 406 er skráð 124 fm með geymslu, fjögurra herbergja með svölum.
ÍBÚÐIN ER LAUS STRAX.
Nánari lýsing skv. teikningu:
Forstofa.
Eldhús með smekklegri innréttingu og vönduðum eldunartækjum.
Inn af eldhúsi er þvottahús.
Björt stofa og borðstofa, þaðan er útgengt á svalir.
Hjónaherbergi með fataskápum.
Tvö svefnherbergi með fataskáp.
Flísalagt baðherbergi með innréttingu, upphengdu salerni, ,,walk in" sturtu. Gluggi.
Rúmgóð 11,6 fm sérgeymsla í sameign.
Bílastæði í bílageymslu.
Þetta er falleg og vel skipulögð íbúð með vönduðum innréttingum frá Parka og eldunartækjum frá Electrolux.
Húsið er einstaklega vel staðsett í Skarðshlíðarhverfinu þar sem stutt er í skóla og leikskóla.
Heimasíða verkefnisins, smelltu hér.
Kaupendur greiða skipulagsgjald sem er 0,3% af brunabótamati þegar það verður lagt á.
Bókið skoðun hjá sölumönnum Hraunhamars:
Einar Örn Ágústsson, löggiltur fasteignasali, s. 888-7979, einar@hraunhamar.is
Glódís Helgadóttir, löggiltur fasteignasali s. 659-0510, glodis@hraunhamar.is
Valgerður Gissurardóttir löggiltur fasteignasali s.791-7500, vala@hraunhamar.is
Hlynur Halldórsson, löggiltur fasteignasali, s. 698-2603, hlynur@hraunhamar.is
Helgi Jón Harðarson, sölust. s. 893-2233, helgi@hraunhamar.is
Gjöld sem kaupandi þarf að standa straum af vegna kaupanna:
1. Stimpilgjald af kaupsamningi, fyrstu kaup (0,4%), almenn kaup (0,8%), lögaðilar (1,6%) af heildarfasteignamati.
2. Þinglýsingargjald af kaupsamningi, veðskuldabréfi, mögulegu veðleyfi o.fl. – kr. 2.700 kr. af hverju skjali.
3. Lántökugjald lánastofnunar er skv. verðskrá viðkomandi lánastofnunar.
4. Umsýslugjald til fasteignasölu skv. þjónustusamningi
Hraunhamar er elsta fasteignasala Hafnarfjarðar, stofnuð 1983 og fagnar því 40 ára afmæli á árinu 2023.
Hraunhamar, í farabroddi í 40 ár ! – Hraunhamar.is
Smelltu hér til að fá frítt söluverðmat.
Hraunhamar fasteignasala kynnir: Apalskarð 2, glæsilegar nýjar 3ja-4ra herbergja íbúðir í góðu lyftufjölbýli vel staðsett í göngufjarlægð frá leik- og grunnskóla í Skarðshlíðarhverfinu í Hafnarfirði.
Íbúðirnar skilast allar fullbúnar án gólfefna en votrými verða flísalögð. Öllum íbúðunum fylgir stæði í lokaðri bílageymslu.
Íbúð 406 er skráð 124 fm með geymslu, fjögurra herbergja með svölum.
ÍBÚÐIN ER LAUS STRAX.
Nánari lýsing skv. teikningu:
Forstofa.
Eldhús með smekklegri innréttingu og vönduðum eldunartækjum.
Inn af eldhúsi er þvottahús.
Björt stofa og borðstofa, þaðan er útgengt á svalir.
Hjónaherbergi með fataskápum.
Tvö svefnherbergi með fataskáp.
Flísalagt baðherbergi með innréttingu, upphengdu salerni, ,,walk in" sturtu. Gluggi.
Rúmgóð 11,6 fm sérgeymsla í sameign.
Bílastæði í bílageymslu.
Þetta er falleg og vel skipulögð íbúð með vönduðum innréttingum frá Parka og eldunartækjum frá Electrolux.
Húsið er einstaklega vel staðsett í Skarðshlíðarhverfinu þar sem stutt er í skóla og leikskóla.
Heimasíða verkefnisins, smelltu hér.
Kaupendur greiða skipulagsgjald sem er 0,3% af brunabótamati þegar það verður lagt á.
Bókið skoðun hjá sölumönnum Hraunhamars:
Einar Örn Ágústsson, löggiltur fasteignasali, s. 888-7979, einar@hraunhamar.is
Glódís Helgadóttir, löggiltur fasteignasali s. 659-0510, glodis@hraunhamar.is
Valgerður Gissurardóttir löggiltur fasteignasali s.791-7500, vala@hraunhamar.is
Hlynur Halldórsson, löggiltur fasteignasali, s. 698-2603, hlynur@hraunhamar.is
Helgi Jón Harðarson, sölust. s. 893-2233, helgi@hraunhamar.is
Gjöld sem kaupandi þarf að standa straum af vegna kaupanna:
1. Stimpilgjald af kaupsamningi, fyrstu kaup (0,4%), almenn kaup (0,8%), lögaðilar (1,6%) af heildarfasteignamati.
2. Þinglýsingargjald af kaupsamningi, veðskuldabréfi, mögulegu veðleyfi o.fl. – kr. 2.700 kr. af hverju skjali.
3. Lántökugjald lánastofnunar er skv. verðskrá viðkomandi lánastofnunar.
4. Umsýslugjald til fasteignasölu skv. þjónustusamningi
Hraunhamar er elsta fasteignasala Hafnarfjarðar, stofnuð 1983 og fagnar því 40 ára afmæli á árinu 2023.
Hraunhamar, í farabroddi í 40 ár ! – Hraunhamar.is
Smelltu hér til að fá frítt söluverðmat.