Löggiltir fasteignasalar innan Félags fasteignasala:
Heiðrekur Þór Guðmundsson
Elísabet Kvaran
Karólína Íris Jónsdóttir
Vista
fjölbýlishús

Naustavör 9

200 Kópavogur

135.000.000 kr.

993.377 þ.kr./m2
Fasteignanúmer

F2503636

Fasteignamat

109.850.000 kr.

Brunabótamat

89.850.000 kr.

Áhvílandi

0 kr.

Arion banki – Reikna lán
Upplýsingar
Verðsaga
svg
Byggt 2019
svg
135,9 m²
svg
4 herb.
svg
1 baðherb.
svg
3 svefnh.
svg
Þvottahús
svg
Sameiginl. inngangur
svg
Bílastæði
svg
Lyfta
svg
Svalir

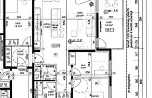
Lýsing

Viltu fasteignir kynna glæsilega íbúð við Naustavör 9, Kópavogi. Um er að ræða fallega 135,9 fm endaíbúð í fjögura hæða glæsilegu lyftuhúsi með einum stigagangi við sjóinn í Kópavogi. Útsýnisgluggar út yfir sjóinn að Nauthólsvíkinni og Esjunni. Áætluð göngubrú mun tengjast yfir í Nauthólsvíkina að miðbæ Reykjavíkur. Íbúðin skiptist í forstofu, eldhús, stofu og og samliggjandi borðstofu, þrjú svefnherbergi þar sem er eitt þeirra forstofuherbergi, baðherbergi og þvottaherbergi innan íbúðar ásamt rúmgóðri sérgeymslu í sameign á neðstu hæð. Sérstæði í bílageymslu með sér hleðslustöð, í stæðinu fyrir rafmagnsbíl. Sérlega falleg íbúð fyrir vandláta. er byggt árið 2019 af Byggingarfélagi Gylfa og Gunnars, sérsmíðaðar innréttingar frá Brúnás og góð tæki.

Fáðu nánari upplýsingar og gerðu tilboð á sölusíðu eignarinnar.

Allar nánari upplýsingar veita:

Elísabet Kvaran löggiltur fasteignasali í síma 781-2100, elisabet@viltu.is

Karólína Íris löggiltur fasteignasali í síma 772-6939, karolina@viltu.is

LÝSING:

Glæsileg íbúð við sjávarsíðuna

Íbúðin er á 3ju hæð í 18 íbúða fjölbýli með lyftu, með útsýni til norðurs og austurs. Í henni eru 3 svefnherbergi, eitt inn af forstofu og tvö innan íbúðar. Eldhús og stofa eru saman í alrými. Hitun í íbúð er með gólfhita. Gólfefnin á íbúðinni eru öll eins, gráleitar steinflísar með paket útliti. Flísar eru á votrýmum.

Í sameign er rúmgóð hjólageymsla og geymslan sem tilheyrir íbúðinni er stór (um 14m2). Einnig fylgir íbúðinni stæði í bílakjallara og þar er hleðslustöð fyrir rafmagnsbíl.

Forstofa er rúmgóð með stórum fataskáp.

Eldhús er bjart með innréttingu frá Brúnás með skápum til lofts, mjög rúmgóð og stórri eyju með skúffum. Span eldavél er í eyju, vifta fyrir ofan. Í innréttingu er innbyggður ísskápur með klakavél, uppþvottavél, ofni og örbylgjuofni. Eldhústæki eru frá AEG.

Stofa er sérlega björt með gluggum á tvo vegu með útsúni, hornglugga og útgang á stórar (14,5 m2) yfirbyggðar svalir.

Gangur er með aðgengi að tveimur svefnherbergjum, baðherbergi og þvottaherbergi.

Svefnherbergin eru þrjú og eitt þeirra er rúmgott forstofuherbergi. Fataherbergi er inn af hjónaherbergi on í hinum eru rúmgóðir fataskápar.

Baðherbergi er rúmgott. Stór walk-in sturtuklefi með gler skilrúmi, upphengt salerni og handklæðaofni. Góð innrétting með lýsingu.

Þvottaherbergi er innan íbúðar með góðri innréttingu og skolvask.

Stutt er í alla þjónustu, skóla, sund og þ.h. Fyrir utan blokkina er glæsilegt leiksvæði ásamt fótboltavelli.

Eign sem vert er að skoða.

Fyrirvarar:

Í lögum um fasteignakaup nr. 40/2002 er kveðið á um ríka skoðunarskyldu kaupenda á fasteignum. Vill seljandi því skora á væntanlega kaupendur að kynna sér vel ástand fasteignarinnar fyrir kauptilboðsgerð og leita til þar til bærra sérfræðinga um nánari skoðun.

Þær upplýsingar sem fram koma í söluyfirliti þessu eru sóttar í opinberar skrár, til seljanda sjálfs og eftir atvikum til húsfélags. Seljandi veitir upplýsingar um eign í samræmi við upplýsingaskyldu laga um fasteignakaup nr. 40/2002.

img
Elísabet Kvaran
Lögg.fasteignasali innan félags fasteignasala
Viltu fasteignir
Viltu fasteignir

Viltu fasteignir

phone
img

Elísabet Kvaran

Ár
Fasteignamat
Kaupverð
Stærð
Fermetraverð
20. des. 2022
77.000.000 kr.
118.000.000 kr.
135.9 m²
868.286 kr.
11. ágú. 2020
67.700.000 kr.
70.000.000 kr.
135.9 m²
515.085 kr.
Byggt á upplýsingum úr Þjóðskrá Íslands frá 2006-2025
Viltu fasteignir

Viltu fasteignir

phone

Elísabet Kvaran