Löggiltir fasteignasalar innan Félags fasteignasala:
Óskar Rúnar Harðarson
Jason Guðmundsson
Þröstur Þórhallsson
Ólafur Finnbogason
Kjartan Ísak Guðmundsson
Gústaf Adolf Björnsson
Viðar Böðvarsson
Rakel Viðarsdóttir
Vala Georgsdóttir
Ragnheiður Pétursdóttir
Böðvar Þ. Eggertsson
Vista
raðhús

Úugata 40

270 Mosfellsbær

154.900.000 kr.

647.575 þ.kr./m2
Fasteignanúmer

F2524817

Fasteignamat

84.450.000 kr.

Brunabótamat

1 kr.

Áhvílandi

0 kr.

Arion banki – Reikna lán
Upplýsingar
svg
Byggt 2025
svg
239,2 m²
svg
6 herb.
svg
2 baðherb.
svg
4 svefnh.
svg
Bílskúr
svg
Sérinngangur
Opið hús: 16. nóvember 2025 kl. 16:00 til 16:30

Lýsing

Miklaborg kynnir: BÓKIÐ SKOÐUN - SÝNI SAMDÆGURS ! Glæsilegt og vel skipulagt raðhús í nýlegu og fjölskylduvænu hverfi í Mosfellsbæ. Um er að ræða nýbyggt raðhús sem verður afhent tilbúið til tréverks. Fullkomið heimili fyrir fjölskylduna. Raðhúsið er samtals 239,2 m2 og þar af er bílskúr 27,9 m2. Örstutt í leik- og grunnskóla. Reykjalundaskógur, Helgafell og Reykjafell í næsta nágrenni. Nánari upplýsingar veita Friðjón Örn Magnússon, lögg. fasteignasali í síma 692-2704 eða fridjon@miklaborg.is og Ólafur Finnabogason, lögg. fasteignasali í síma 822-2307 eða olafur@miklaborg.is

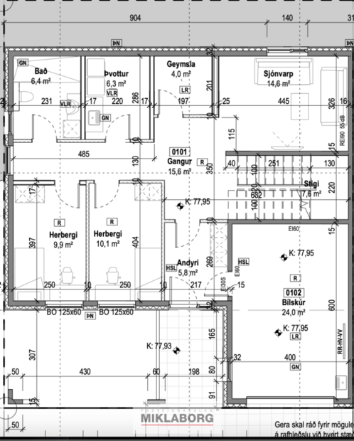
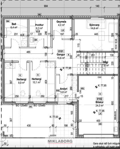
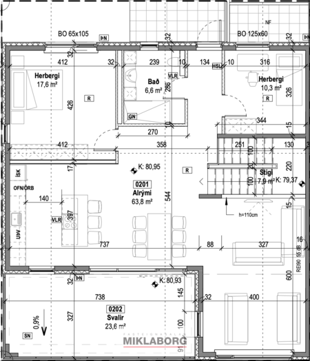
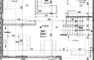
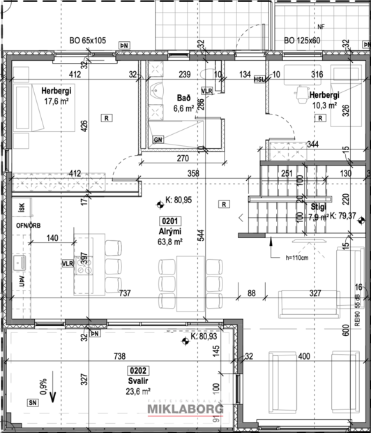
Um er að ræða tvílyft raðhús við Úugötu 34-40 með innbyggðum bílskúr. Aðgengi að húsinu fyrir akandi og gangandi umferð frá Úugötu að suðvestan. Húsið er staðsteypt. Útveggir eru einangraðir að utanverðu með steinull, klætt með álklæðningu. Þakplatan er steypt. Gluggar eru verksmiðjuframleiddir ál/timbur gluggar. Gler er tvöfalt K-gler. Húsið er upphitað með gólfhitalögnum.

Fullkomið heimili fyrir fjölskylduna. Raðhúsið er samtals 239,2 m2 og þar af er bílskúr 27,9 m2. Fjögur svefnherbergi, sjónvarpshol, tvö baðherbergi, þvottahús, geymsla, eldhús, stofa og borðstofa, útengt á stórar svalir frá borðstofu sem snúa í suðvestur, bílskúr.

Örstutt í leik- og grunnskóla. Reykjalundaskógur, Helgafell og Reykjafell í næsta nágrenni. Nánari upplýsingar veita Friðjón Örn Magnússon, lögg. fasteignasali í síma 692-2704 eða fridjon@miklaborg.is og Ólafur Finnabogason, lögg. fasteignasali í síma 822-2307 eða olafur@miklaborg.is


Miklaborg fasteignasala

Miklaborg fasteignasala

Lágmúli 4, 108 Reykjavík
Miklaborg fasteignasala

Miklaborg fasteignasala

Lágmúli 4, 108 Reykjavík