Löggiltir fasteignasalar innan Félags fasteignasala:
Óskar Rúnar Harðarson
Jason Guðmundsson
Þröstur Þórhallsson
Ólafur Finnbogason
Kjartan Ísak Guðmundsson
Gústaf Adolf Björnsson
Viðar Böðvarsson
Rakel Viðarsdóttir
Vala Georgsdóttir
Ragnheiður Pétursdóttir
Böðvar Þ. Eggertsson
Vista
fjölbýlishús

Orkureitur D1 305

108 Reykjavík

114.900.000 kr.

1.080.903 þ.kr./m2
Fasteignanúmer

F2536268

Fasteignamat

2 kr.

Brunabótamat

1 kr.

Áhvílandi

0 kr.

Arion banki – Reikna lán
Upplýsingar
svg
Byggt 2024
svg
106,3 m²
svg
3 herb.
svg
1 baðherb.
svg
2 svefnh.
svg
Sameiginl. inngangur
svg
Lyfta
Opið hús: 16. nóvember 2025 kl. 14:00 til 14:30

Lýsing

Miklaborg, Böddi og Safir Byggingar ehf kynna: Glæsilegar nýjar íbúðir við Orkureitinn – Suðurlandsbraut & Grensásveg

Orkureiturinn er nýtt og framúrstefnulegt íbúðahverfi við Laugardalinn þar sem hönnun, orka og umhverfisvitund mætast.

Hér er lögð áhersla á endurnýtingu orku, vandað efnisval og yfirbragð sem sameinar náttúru og nútíma borgarlíf.

Innanhússhönnun Rut Kára: er í senn stílhrein og hlý, og inngarðar að evrópskri fyrirmynd skapa afslappað andrúmsloft.

Afþreying á jarðhæð: eru líkamsræktarsalur og þjónusta eins og kaffihús og verslanir sem auka lífsgæði íbúa. Böddi lgf. S:8216300. boddi@miklaborg.is

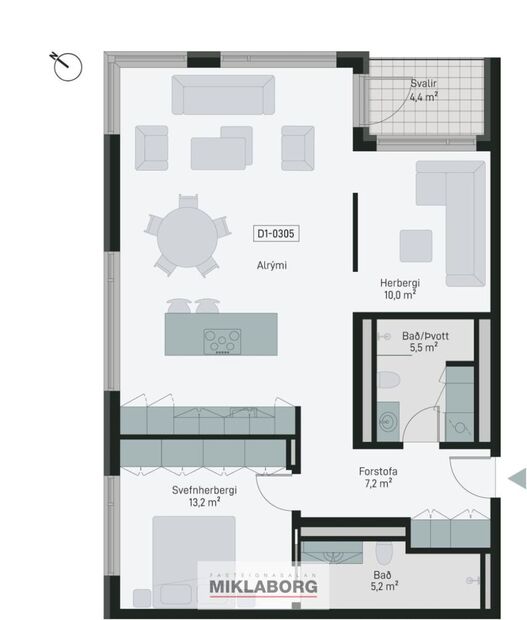
Íbúð 305 er 106,3 fm þriggja herbergja íbúð á þriðju hæð. Geymsla 10 fm og 4,4 fm svalir sem snúa í átt að Laugardalnum. Innrétting VAL. Eignin skiptist í forstofu með góðu skápaplássi. Svefnherbergi, baðherbergi og eldhús í alrými. Skrifstofa eða sjónvarpsherbergi í alrými. Stofu og borðstofu. Gert ráð fyrir þvottvél og þurrkara inná baðherbergi. Íbúðin er afhent með raftækjum frá Siemens í eldhúsi og vönduðum innréttingum frá GKS. Íbúðir eru afhentar án megin gólfefna. Baðherbergi eru flísalögð.

Nýjar lausnir - betri hljóðvist

Hver íbúð er útbúin loftræstikerfi með varmaendurvinnslu. Allt loft sem fer í gegnum kerfið er síað og er því minna af svifryki og frjókornum í íbúðunum en ella.

Á byggingartíma er lögð áhersla á endurvinnslu byggingarefnis, jarðvegs og gróðurs á svæðinu. Skipulag reitsins er það fyrsta í Reykjavík sem vottað er af BREEAM vistvottunarkerfinu og hefur það fengið einkunina Excellent.

Allar íbúðir við Orkureitinn eru hannaðar til að hámarka nýtingu dagsbirtu og þar með auka vellíðan og stuðla að lífsgæðum íbúa.


Innréttingarþema þessarar íbúðar er: Safír Harmonía

Nánari upplýsingar veita:

Böddi lgf. í síma 8216300 eða boddi@miklaborg.is

Friðjón Örn Magnússon löggiltur fasteignasali í síma 692 2704 eða fridjon@miklaborg.is


Móeiður Svala Magnúsdóttir löggiltur fasteignasali í síma 899 8278 eða moa@miklaborg.is

Ingimundur Ingimundarson löggiltur fasteignasali í síma 867 4540 eða ingimundur@miklaborg.is

Íris Arna Geirsdóttir löggiltur fasteignasali í síma 770 0500 eða iris@miklaborg.is

Kjartan ísak Guðmundsson löggiltur fasteignasali í síma 663 4392 eða kjartan@miklaborg.is

Ólafur Finnbogason löggiltur fasteignasali í síma 822 2307 eða olafur@miklaborg.is

Viðar Böðvarsson löggiltur fasteignasali í síma 694 1401 eða vidar@miklaborg.is

Þröstur þórhallsson löggiltur fasteignasali í síma 897 0634 eða throstur@miklaborg.is


Miklaborg fasteignasala

Miklaborg fasteignasala

Lágmúli 4, 108 Reykjavík
Miklaborg fasteignasala

Miklaborg fasteignasala

Lágmúli 4, 108 Reykjavík