Löggiltir fasteignasalar innan Félags fasteignasala:
Óskar Rúnar Harðarson
Jason Guðmundsson
Þröstur Þórhallsson
Ólafur Finnbogason
Kjartan Ísak Guðmundsson
Gústaf Adolf Björnsson
Viðar Böðvarsson
Rakel Viðarsdóttir
Vala Georgsdóttir
Ragnheiður Pétursdóttir
Böðvar Þ. Eggertsson
Vista
fjölbýlishús

Vesturvin 2-206

101 Reykjavík

95.600.000 kr.

1.025.751 þ.kr./m2
Fasteignanúmer

F2519568

Fasteignamat

0 kr.

Brunabótamat

0 kr.

Áhvílandi

0 kr.

Arion banki – Reikna lán
Upplýsingar
svg
Byggt 2023
svg
93,2 m²
svg
3 herb.
svg
3 baðherb.
svg
2 svefnh.
svg
Sameiginl. inngangur
Opið hús: 16. nóvember 2025 kl. 13:00 til 13:30

Lýsing

Miklaborg kynnir tilbúna til afhendingar: Íbúð 206 glæsilega bjarta 3ja herbergja endaíbúð á austurenda byggingarinnar ásamt sérmerktu stæði B70 í bílageymslu. Svalirnar snúa til austurs inn í fallegan inngarðinn. Vesturvin 2 er glæsileg bygging með metnaðarfullri hönnun á frábærum útsýnisstað í Vesturbæ Reykjavíkur. Húsið er staðsett örstutt frá verslun og þjónustu og í 10-15 mín. göngufæri frá miðbæ Reykjavíkur. Íbúðirnar í Vesturvin 2 (Ánanaust 1) eru tilbúnar til afhendingar

Bókaðu skoðun, sýni samdægurs!
Móeiður Svala Magnúsdóttir lögg. fasteignasali í síma 8998278 eða moa@miklaborg.is

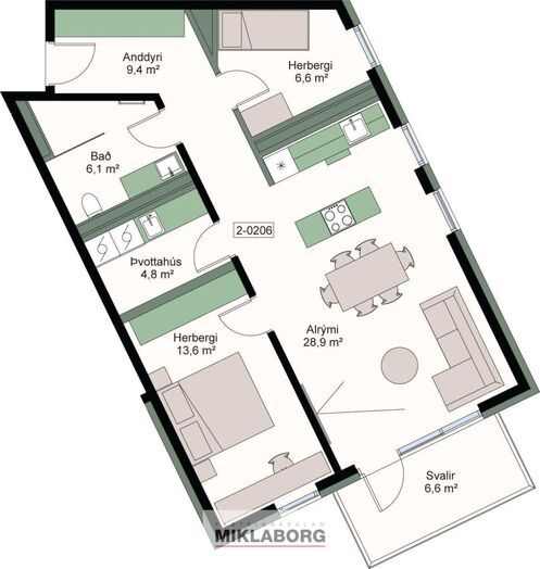
Íbúð 206 er á 2. hæð á austurenda byggingarinnar Íbúðarrýmið skiptist í stórt alrými sem telur stofu, borðstofu og opið eldhús með eldunareyju. Sér þvottahús er í íbúðinni , hjónaherbbergi með skápum og barnaherbergi. Baðherbergið er með sturturými 8,9 fm geymsla í kjallara er inni í birtu flatarmáli eignarinnar.

Fallegur inngarður tengir byggingarnar í Vesturvin þar sem íbúar hafa aðgang að verslun og þjónustu

Íbúðirnar afhendast með hágæða ítölskum innréttingum frá Cassina og er innréttingaþema íbúðarinnar Eimur, sjá nánar á heimasíðu. . Vönduð tæki frá Miele og Siemens. Steinborðplötur og gólfsíðir gluggar. Allar íbúðir eru með gólfhita.


Nánari upplýsingar veita sölumenn:
Móeiður Svala Magnúsdóttir lögg. fasteignasali í síma 8998278 eða moa@miklaborg.is


Þröstur Þórhallsson lögg. fasteignasali í síma 8970634 eða throstur@miklaborg.is

Jón Rafn Valdimarsson lögg. fasteignasali í síma 6955520 eða jon@miklaborg.i

Óskar Sæmann Axelsson lögg. fasteignasali í síma 691-2312 eða osa@miklaborg.is

Miklaborg fasteignasala

Miklaborg fasteignasala

Lágmúli 4, 108 Reykjavík
Miklaborg fasteignasala

Miklaborg fasteignasala

Lágmúli 4, 108 Reykjavík