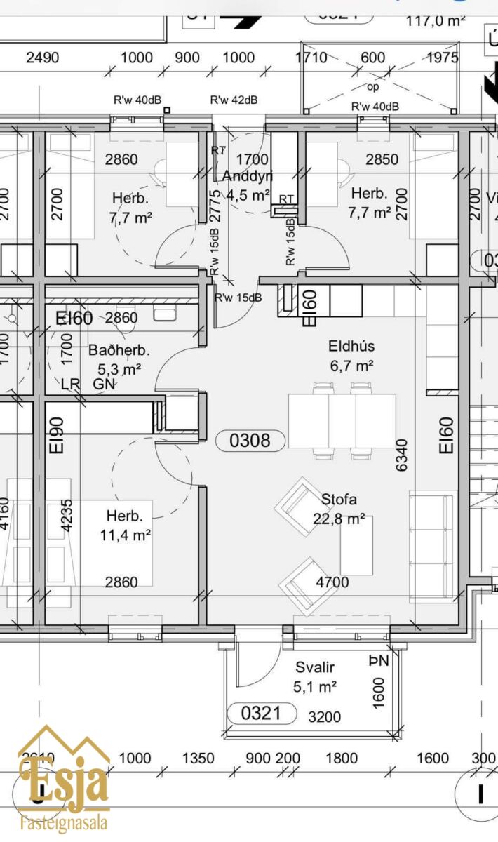
Eyravegur, 800 Selfoss