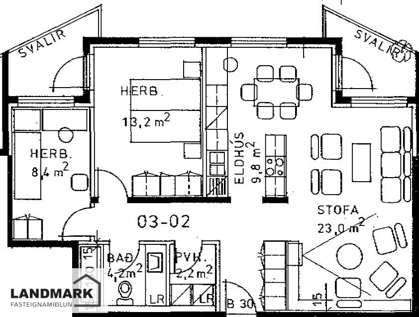
Arnarsmári, 201 Kópavogur