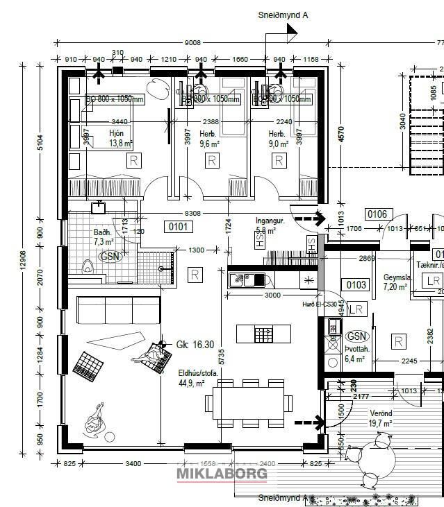
Móstekkur, 800 Selfoss