Löggiltir fasteignasalar innan Félags fasteignasala:
Óskar Rúnar Harðarson
Jason Guðmundsson
Þröstur Þórhallsson
Ólafur Finnbogason
Kjartan Ísak Guðmundsson
Gústaf Adolf Björnsson
Viðar Böðvarsson
Rakel Viðarsdóttir
Vala Georgsdóttir
Ragnheiður Pétursdóttir
Böðvar Þ. Eggertsson
Vista
fjölbýlishús

Móstekkur 4b 102

800 Selfoss

77.900.000 kr.

587.925 þ.kr./m2
Fasteignanúmer

F2531030

Fasteignamat

2 kr.

Brunabótamat

1 kr.

Áhvílandi

0 kr.

Arion banki – Reikna lán
Upplýsingar
svg
Byggt 2023
svg
132,5 m²
svg
4 herb.
svg
1 baðherb.
svg
3 svefnh.
svg
Sérinngangur
svg
Bílastæði

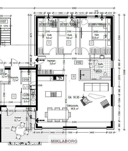
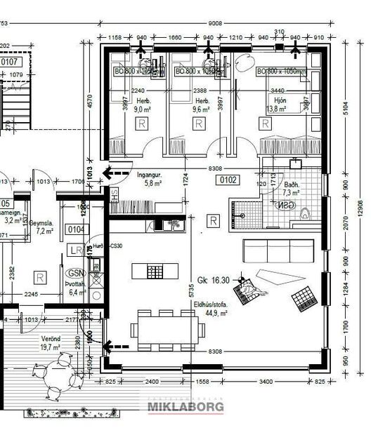
Lýsing

Miklaborg kynnir: Glæsileg 132,5 fm 4ra herbergja íbúð á neðri hæð í fjórbýli með sérinngangi, vel skipulögð, aukin lofthæð, hljóðdúkur í lofti í alrými, innfelld lýsing, vandaðar innéttingar frá Voke3. Afhendist fullbúið með gólfefnum, hiti í gólfi. Um er að ræða nýbyggt fjórbýli sem er tilbúið til afhendingar. Húsið er staðsteypt og klætt að utan með litaðri álklæðningu, gluggar og hurðir eru úr áli og þak klætt með tvöföldum tjörudúk.

Staðsetning er einstaklega góð í rólegu hverfi rétt við skóla og leiksskóla.

 

Bókaðu skoðun hjá sölumönnum.

NÁNARI LÝSING:

Komið er inn í rúmgóða forstofu með tvöföldum fataskáp. barnaherbergin eru tvö, bæði með fataskápum. Hjónaherbergi rúmgott með skápum sem ná upp í loft. Baðherbergi með góðri innréttingu, upphengdu salerni, walk-in sturta með innbyggðum tækjum, flísalagt gólf og veggir að hluta. Eldhús er í alrými ásamt stofu og borðstofu. Eldhús er með fallegri innréttingu og góðri vinnueyju, helluborð er í eyju. Gert er ráð fyrir innbyggðum ísskáp og uppþvottavél. Stofan er rúmgóð, stórir gluggar eru í rýminu sem veita mika birtu. Úr borðstofu er útgengt út á góða verönd. Þvottahús og geymsla eru í sama rými innan íbúðar, góð innrétting með vaski og stæði fyrir þvottavél og þurrkara. Útgengt er út á framlóð og baklóð. Bílastæði með rafhleðslu fylgir eigninni.

GÓLFEFNI: Fallegt harðparket á öllum gólfum nema flísar á anddyri, baðherbergi og þvotthúsi/geymslu.

Virkilega vönduð, björt og falleg eign á rólegum og góðum stað á Selfossi.

Allar nánari upplýsingar veita:

Bára Gunnlaugsdóttir löggiltur fasteignasali í síma 899 8809 eða bara@miklaborg.is

Óskar Sæmann Axelsson löggiltur fasteignasali í síma 691 2312 eða osa@miklaborg.is

Miklaborg fasteignasala

Miklaborg fasteignasala

Lágmúli 4, 108 Reykjavík
Miklaborg fasteignasala

Miklaborg fasteignasala

Lágmúli 4, 108 Reykjavík