Löggiltir fasteignasalar innan Félags fasteignasala:
Knútur Bjarnason
Rúnar Þór Árnason
Gunnar Sv. Friðriksson
Hólmar Björn Sigþórsson
Linda Björk Ingvadóttir
Kristján Þór Sveinsson
María Steinunn Jóhannesdóttir
Ragnheiður Árnadóttir
Vista
fjölbýlishús

Áshamar 5

221 Hafnarfjörður

101.400.000 kr.

730.022 þ.kr./m2
Fasteignanúmer

F2533557

Fasteignamat

89.600.000 kr.

Brunabótamat

0 kr.

Áhvílandi

0 kr.

Arion banki – Reikna lán
Upplýsingar
svg
Byggt 2023
svg
138,9 m²
svg
3 herb.
svg
1 baðherb.
svg
4 svefnh.
svg
Þvottahús
svg
Sameiginl. inngangur
svg
Lyfta
Opið hús: 4. febrúar 2026 kl. 17:00 til 18:00

Opið hús: Áshamar 5, 221 Hafnarfjörður, Íbúð merkt: 02 02 01. Eignin verður sýnd miðvikudaginn 4. febrúar 2026 milli kl. 17:00 og kl. 18:00.

Lýsing

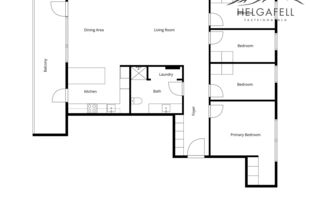
Helgafell fasteignasala kynnir glæsilega þriggja til fimm herbergja endaíbúð á annarri hæð við Áshamar 5 í Hafnarfirði – fullbúin og tilbúin til afhendingar.

Birt stærð: 138,9 fm. (þar af 5,3 fm. sérgeymsla)
Verktaki: JE Skjanni ehf. sjá heimasíðu verkefnisins hér

Lýsing eignar
Anddyri: 
Rúmgott og bjart með harðparketi og þreföldum skápum sem tryggja gott geymslupláss.
Stofa og eldhús:
Mynda eitt rúmgott alrými, L-laga eldhúsi með eyju tengist stofu og borðstofu.
Innréttingar frá Kappa, vönduð tæki frá Bosch og Smith & Norland, meðal annars ísskápur, uppþvottavél, helluborð, gufugleypir og bakaraofn í vinnuhæð.
Úr stofunni er útgengt á 16,3 fm. suðvestur svalir með flottu útsýni.
Hjónaherbergi: 
Rúmgott (16,1 fm.) með góðu skápaplássi og harðparketi á gólfi.
Barnaherbergi:
Björt og vel skipulögð með innbyggðum skápum og harðparketi.
Baðherbergi og þvottahús:
Rúmgott og vandað baðherbergi flísalagt í hólf og gólf með fallegum flísum frá Agli Árnasyni. „Walk-in“ sturta, upphengt salerni og inn af baðherberginu er flísalagt þvottahús með tengi fyrir þvottavél og þurrkara.

Gæði og búnaður
  • Gólfhiti í allri íbúðinni
  • Vönduð gólfefni og hljóðeinangrun
  • Hvítar 90 cm hurðir frá Parka
  • Dyrasímakerfi með myndavél
  • Ljósleiðari og nettengingar (RJ45) inn í smáspennutöflu
  • Sérgeymsla á neðstu hæð
  • Lyfta og teppalagðir stigagangar með góðri lýsingu
  • Hjóla- og vagnageymsla í sameign
  • Sameiginleg 95 bílastæði, þar af nokkur með rafmagnslögnum fyrir rafbíla
Umhverfi
Áshamar nýtt og barnvænt hverfi í Hafnarfirði þar sem leikskóli er í götunni og gönguleið í skóla án þess að fara yfir umferðargötu.
Stutt í falleg útivistarsvæði, leikvelli og þjónustu.

Ath: Myndir geta verið úr sambærilegri íbúð.
Ath: Svalalokanir sem sjást á tölvugerðum myndum fylgja ekki með íbúðinni.

Fyrir nánari upplýsingar hafið samband við sölumenn Helgafells fasteignasölu.

----------------------------------------------------------
Heimasíða Helgafells fasteignasölu
Facebook síða Helgafells

- Hafðu samband og við gerum söluverðmat á eign þinni, þér að kostnaðarlausu -

Gjöld sem kaupandi þarf að standa straum af vegna kaupa á fasteign:

1. Stimpilgjald af kaupsamningi - 0,8% af fasteignamati fyrir einstaklinga (0,4% fyrir fyrstu kaupendur) og 1,6% fyrir lögaðila.
2. Þinglýsingargjald af kaupsamningi, veðskuldabréfi, mögulegu veðleyfi o.fl. - 3.800 kr. af hverju skjali.
3. Lántökugjald lánastofnunar - almennt í kringum 50þ., oft lægra eða ekkert lántökugjald fyrir fyrstu kaup. Nánari upplýsingar á heimasíðum lánastofnana.
4. Þjónustusamningur milli kaupanda og fasteignasölu - Kr.  92.380,- m/vsk.

Helgafell fasteignasala bendir kaupendum á ríka skoðunarskyldu sem kveðið er á í lögum um fasteignakaup nr.40/2002. Skorað er á kaupendur að kynna sér vandlega ástand fasteigna og nýta til þess aðstoð sérfræðinga.  Sömuleiðis er bent á upplýsingaskyldu seljanda samanber 26.gr. Laga nr.40/2002 um fasteignakaup og 25.gr. laga nr.26/1994 um fjöleignarhús. Seljanda er bent á að kynna sér tilvitnaðar lagagreinar.

img
Knútur Bjarnason
Lögg.fasteignasali innan félags fasteignasala
Helgafell fasteignasala ehf.
Stórhöfði 33, 2. hæð, 110 Reykjavík
Helgafell fasteignasala ehf.

Helgafell fasteignasala ehf.

Stórhöfði 33, 2. hæð, 110 Reykjavík
img

Knútur Bjarnason

Stórhöfði 33, 2. hæð, 110 Reykjavík
Helgafell fasteignasala ehf.

Helgafell fasteignasala ehf.

Stórhöfði 33, 2. hæð, 110 Reykjavík

Knútur Bjarnason

Stórhöfði 33, 2. hæð, 110 Reykjavík