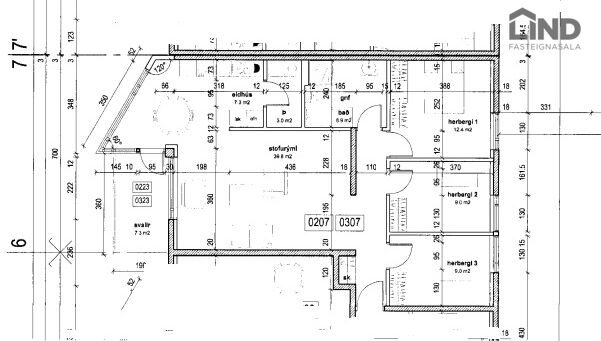
Norðurbrú, 210 Garðabær