Löggiltir fasteignasalar innan Félags fasteignasala:
Hannes Steindórsson
Bogi Molby Pétursson
Guðrún Antonsdóttir
Heimir Hallgrímsson
Hrafnkell P. H. Pálmason
Viðar Marinósson
Elías Haraldsson
Kristján Þórir Hauksson
Albert Bjarni Úlfarsson
Ragnar Þorsteinsson
Þórey Ólafsdóttir
Andri Freyr Halldórsson
Upplýsingar
Byggt 2024
170 m²
3 herb.
2 baðherb.
3 svefnh.
Þvottahús
Útsýni
Sameiginl. inngangur
Bílastæði
Lyfta
Laus strax
Lýsing
Lind Fasteignasala og Helga Pálsdóttir kynnir glæsilega 170 m2 þakííbúð með glæsilegu útsýni við Baughamar 3, 221 Hafnarfirði. Þrennar svalir - 58m2 þaksvalir , 33,7 m2 þaksvalir ásamt 10,7 m2 svölum. Eignin i fylgir stæði í bílageymslu þar sem að geymslan er innaf bílastæði. Íbúðin afhendist fullbúin með gólfefnum, innbyggðum ísskáp, frysti og uppþvottavél.
Byggingaraðili: Skuggi 6 ehf.
Aðalhönnuður hússins: Teikna-teiknistofa arkitekta ehf.
Allar nánari upplýsingar á heimasíðu verkefnisins: www.baughamar3.is
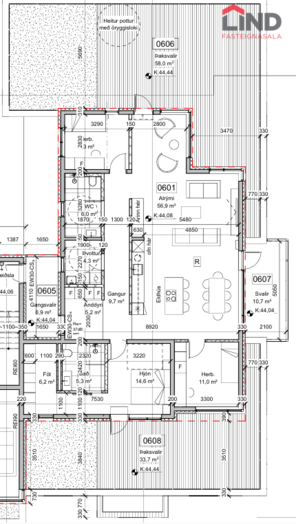
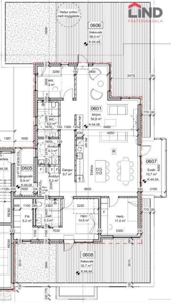
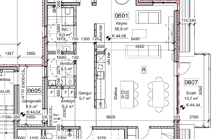
Íbúð 601: 4. herbergja þakíbúð.
Nánari lýsing:
Anddyri: Parket á gólfi, fataskápur.
Eldhús: Parket á gólfi, gott skápa- og borðpláss, innréttingin er frá þýska framleiðandanum Nobilia, með steinplötu á borðum. Eldhúsinnrétting er fullbúin með blöndunartækjum og eldhústækjum þ.e. eyjuháfi yfir helluborði á eyju, innbyggðum ísskáp, innbyggðri uppþvottavél og ofni. Gert er ráð fyrir vínkæli í eyju.
Alrými: Parket á gólfi, útgengt út á þrennar svalir
Hjónasvita með baðherbergi og fataherbergi.
Tvö önnur herbergi með fataskápum
Baðherbergi: Baðherbergisgólf og sturturými eru flísalögð. Baðinnrétting er með neðri skáp með steinplötu við handlaugar, hvítri handlaug og efri skápum með spegli á hurðum og ljósi. Salerni er vegghengt með innbyggðum vatnskassa. Blöndunartæki á baði
eru hitastýrð blöndunartæki og sturtustöng með utanáliggjandi blöndunartækjum.
Þvottahús: Sér þvottahús, innrétting undir þvottavél og þurrkara.
Þrennar svalir - 58m2 þaksvalir , 33,7 m2 þaksvalir ásamt 10,7 m2 svölum.
Geymsla: 8,9 fm í sameign.
Hjóla- og vagnageymsla: Í sameign.
Stæði í bílageymslu þar sem að geymslan er innaf .
Frekari upplýsingar í skilalýsingu hjá fasteignasala.
Kaupandi greiðir 0,3% af væntanlegu brunabótamati þegar því hefur verið úthlutað eigninni.
Nánari upplýsingar veita:
Helga Pálsdóttir Löggiltur fasteignasali, í síma 8222123, tölvupóstur helga@fastlind.is.
Auður Magnúsdóttir Löggiltur fasteignasali, í síma 8482666, tölvupóstur audur@fastlind.is.
Byggingaraðili: Skuggi 6 ehf.
Aðalhönnuður hússins: Teikna-teiknistofa arkitekta ehf.
Allar nánari upplýsingar á heimasíðu verkefnisins: www.baughamar3.is
Íbúð 601: 4. herbergja þakíbúð.
Nánari lýsing:
Anddyri: Parket á gólfi, fataskápur.
Eldhús: Parket á gólfi, gott skápa- og borðpláss, innréttingin er frá þýska framleiðandanum Nobilia, með steinplötu á borðum. Eldhúsinnrétting er fullbúin með blöndunartækjum og eldhústækjum þ.e. eyjuháfi yfir helluborði á eyju, innbyggðum ísskáp, innbyggðri uppþvottavél og ofni. Gert er ráð fyrir vínkæli í eyju.
Alrými: Parket á gólfi, útgengt út á þrennar svalir
Hjónasvita með baðherbergi og fataherbergi.
Tvö önnur herbergi með fataskápum
Baðherbergi: Baðherbergisgólf og sturturými eru flísalögð. Baðinnrétting er með neðri skáp með steinplötu við handlaugar, hvítri handlaug og efri skápum með spegli á hurðum og ljósi. Salerni er vegghengt með innbyggðum vatnskassa. Blöndunartæki á baði
eru hitastýrð blöndunartæki og sturtustöng með utanáliggjandi blöndunartækjum.
Þvottahús: Sér þvottahús, innrétting undir þvottavél og þurrkara.
Þrennar svalir - 58m2 þaksvalir , 33,7 m2 þaksvalir ásamt 10,7 m2 svölum.
Geymsla: 8,9 fm í sameign.
Hjóla- og vagnageymsla: Í sameign.
Stæði í bílageymslu þar sem að geymslan er innaf .
Frekari upplýsingar í skilalýsingu hjá fasteignasala.
Kaupandi greiðir 0,3% af væntanlegu brunabótamati þegar því hefur verið úthlutað eigninni.
Nánari upplýsingar veita:
Helga Pálsdóttir Löggiltur fasteignasali, í síma 8222123, tölvupóstur helga@fastlind.is.
Auður Magnúsdóttir Löggiltur fasteignasali, í síma 8482666, tölvupóstur audur@fastlind.is.