Löggiltir fasteignasalar innan Félags fasteignasala:
Sigurður Maack Gunnarsson
Svanþór Einarsson
Theodór Emil Karlsson
Steingrímur Benediktsson
Vista
svg

364

svg

220  Skoðendur

svg

Skráð  15. jan. 2026

fjölbýlishús

Suðurgata 93

300 Akranes

89.900.000 kr.

584.146 þ.kr./m2
Fasteignanúmer

F2520000

Fasteignamat

84.850.000 kr.

Brunabótamat

93.500.000 kr.

Áhvílandi

0 kr.

Arion banki – Reikna lán
Upplýsingar
Verðsaga
svg
Byggt 2023
svg
153,9 m²
svg
5 herb.
svg
2 baðherb.
svg
3 svefnh.
svg
Sérinngangur

Lýsing

** Hafðu samband og bókaðu tíma fyrir skoðun  - Svanþór Einarsson, löggiltur fasteignasali -  svanthor@fastmos.is eða 698-8555 - Theodór Emil Karlsson, löggiltur fasteignasali - teddi@fastmos.is eða 690-8040 - Steingrímur Benediktsson, löggiltur fasteignasali - steingrimur@fastmos.is eða 862-9416 **

FASTMOS kynnir: Mjög falleg og vel skipulögð 153,9 m2, 4-5 herbergja íbúð á tveimur hæðum, efri hæð og ris í nýju fjórbýlishúsi við Suðurgötu 93 (íbúð 202) á Akranesi. Eignin skiptist í þrjú svefnherbergi, tvö baðherbergi, stofu/fjölskylduherbergi, forstofu, hol, eldhús, stofu og borðstofu. Fallegar innréttingar frá Voke3 og gólfefni Birgisson. Harðparket frá Agli Árnasyni er á gólfum nema á baðherbergjum en þar eru flísar og teppi er á stiga á milli hæða. Öll loft steypt fyrir utan loft á baðherbergjum og í risi eru rykbundinn og klædd hvítum hljóðdúk frá Enso. Tvennar svalir og fallegt útsýni. Tvö bílastæði á bílaplani fylgja eigninni. Eignin er í útleigu í dag og er uppsagnarfrestur á samningum.
Góð staðsetning, stutt er skóla, miðbæinn, Akratorg og Langasandinn.


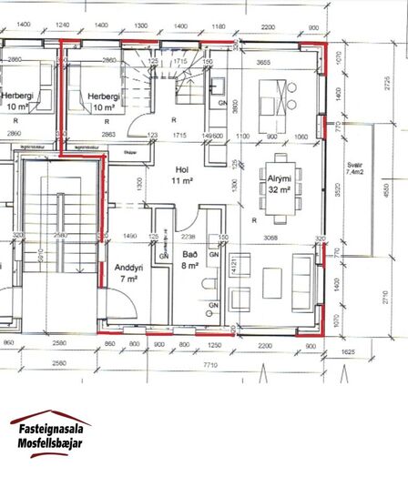
Neðri hæð:
Forstofa er með fataskápum og parketi á gólfi.
Baðherbergi er flísalagt í hólf og gólf, með innréttingu, vegghengdu salerni, sturtu, innréttingu og handklæðaofni. Gluggi er á baðherbergi.
Svefnherbergi nr. 1 er með fataskápum og parketi á gólfi.
Eldhús, stofa og borðstofa eru í opnu björtu rými með stórum gluggum og parketi í gólfi. Í eldhúsi er falleg innrétting með eyju. Í innréttingu er innbyggður ísskápur, innbyggð uppþvottavél, blástursofn og helluborð. Úr stofu er gengið út á svalir.
Hol með parketi á gólfi. Úr holi er fallegur stigi upp á efri hæðina.

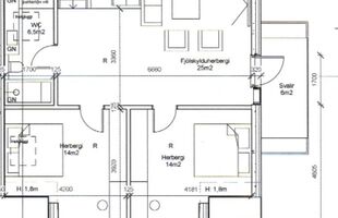
Efri hæð:
Stofa/fjölskyldurými er með parketi á gólfi, þaðan er gengið út á svalir með fallegu útsýni.
Svefnherbergi nr. 2 er með fataskápum og parketi á gólfi.
Svefnherbergi nr. 3 er með fataskáp og parketi á gólfi.
Baðherbergi er flísalagt, með innréttingu, vegghengdu salerni og baðkari með sturtuaðstöðu. Tengi fyrir þvottavél. Þakgluggi er á baðherbergi.

 Verð kr. 89.900.000,-



Um skoðunar- og aðgæsluskyldu:
Í lögum um fasteignakaup nr. 40/2002 er kveðið á um ríka skoðunarskyldu kaupenda á fasteignum. Fasteignasala Mosfellsbæjar skorar því á væntanlega kaupendur að kynna sér vel ástand fasteigna fyrir kauptilboðsgerð og leita til þar til bærra sérfræðinga um nánari skoðun ef með þarf.

Forsendur söluyfirlits:
Söluyfirlit er samið af fasteignasala í samræmi við ákvæði laga nr. 70/2015. Þær upplýsingar sem fram koma í söluyfirliti þessu eru sóttar í opinberar skrár, til seljanda sjálfs og eftir atvikum til húsfélags. Seljandi veitir upplýsingar um eign í samræmi við upplýsingaskyldu laga um fasteignakaup nr. 40/2002. Fasteignasali sannreynir að þær upplýsingar séu réttar með sjónskoðun á eigninni.
Fasteignasali getur ekki fullyrt um ástand og eiginleika þeirra hluta fasteigna sem ekki eru aðgengilegir og sjást ekki berum augum, t.d. lagnir, dren, skólp og þak.

Gjöld sem kaupandi þarf að greiða vegna kaupa:
1. Stimpilgjald af kaupsamningi sem er hlutfall af fasteignamati. Stimpilgjald er 0,8% fyrir einstaklinga (0,4% við fyrstu kaup) og 1,6% fyrir lögaðila.
2. Þinglýsingargjald af kaupsamningi, veðskuldabréfum, veðleyfum o.fl. Þinglýsingargjald er kr. 3.800,- fyrir hvert skjal.
3. Lántökugjald lánastofnunar - er skv. gjaldskrá viðkomandi lánastofnunar.
4. Umsýslugjald til fasteignasölu skv. kauptilboði.
5. Þegar um nýbyggingu er að ræða greiðir kaupandi skipulagsgjald, 0,3% af endanlegu brunabótamáti, þegar það er lagt á af viðkomandi sveitarfélagi.

img
Svanþór Einarsson
Lögg.fasteignasali innan félags fasteignasala
Fasteignasala Mosfellsbæjar
Þverholti 2, 270 Mosfellsbæ
Fasteignasala Mosfellsbæjar

Fasteignasala Mosfellsbæjar

Þverholti 2, 270 Mosfellsbæ
phone
img

Svanþór Einarsson

Þverholti 2, 270 Mosfellsbæ
Ár
Fasteignamat
Kaupverð
Stærð
Fermetraverð
18. jún. 2024
73.050.000 kr.
97.500.000 kr.
10202 m²
9.557 kr.
Byggt á upplýsingum úr Þjóðskrá Íslands frá 2006-2026
Fasteignasala Mosfellsbæjar

Fasteignasala Mosfellsbæjar

Þverholti 2, 270 Mosfellsbæ
phone

Svanþór Einarsson

Þverholti 2, 270 Mosfellsbæ