Löggiltir fasteignasalar innan Félags fasteignasala:
Sverrir Kristinsson
Kjartan Hallgeirsson
Guðlaugur Ingi Guðlaugsson
Daði Hafþórsson
Gunnar Helgi Einarsson
Gunnar Bergmann Jónsson
Jenný Sandra Gunnarsdóttir
Upplýsingar
svg
144,8 m²
svg
4 herb.
svg
2 baðherb.
svg
4 svefnh.
svg
Þvottahús
svg
Sérinngangur
svg
Hjólastólaaðgengi
svg
Bílastæði
svg
Lyfta

Lýsing

Eignamiðlun kynnir:

Eignamiðlun auglýsir 2ja - 5 herbergja íbúðir í nýbyggingu við Grásteinsmýri, 225 Álftanesi. Um er að ræða 30 íbúðir, stærðir frá 63,2 fm - 144,8 fm. Allar íbúðir með bílastæði í lokuðu bílastæðahúsi. Afhending íbúða er í apríl 2026 eða fyrr. Fyrir þessar íbúðir er í boði 20% eignahlutdeild ÖXAR20 sjá nánar hér, leitið nánari upplýsinga hjá sölumanni. Heimasíða fyrir verkefnið hér.

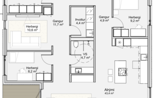
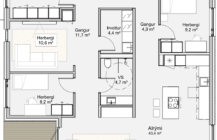
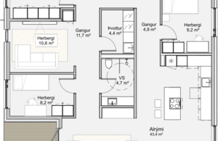
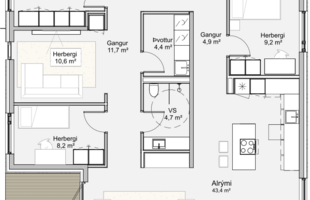
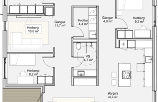
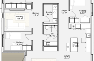
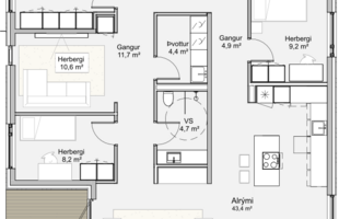
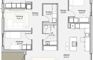
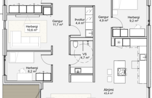
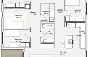
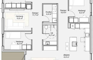
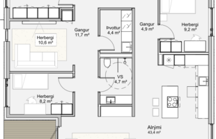
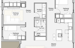
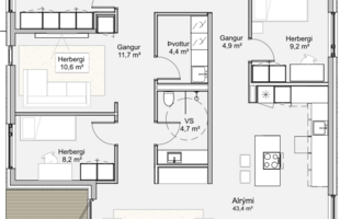
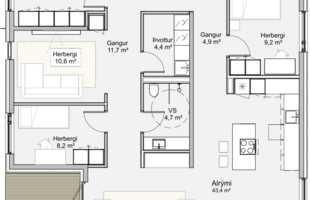
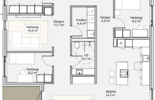
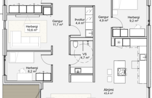
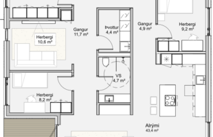
Íbúð merkt 107 - 5 herbergja 144,8 fm íbúð á fyrstu hæð með 3 - 4 svefnherbergjum og rúmgóðum sérafnotareit. Rúmgott svefnherbergi og þrjú minni barnaherbergi, baðherbergi flísalagt í hólf og gólf. Eldhús með stórri vinnueyju opið inn í borðstofu og stofu. Bílastæði í bílakjallara merkt B28. Virkilega vel skipulögð íbúð. Athugið að myndir af íbúðum eru tölvuteiknaðar og eiga ekki alltaf við allar íbúðir.

Nánari upplýsingar veitir: Gunnar Bergmann löggiltur fasteignasali í síma 839-1600 eða gunnarbergmann@eignamidlun.is


Nánari lýsing:
Komið er inn forstofu með fataskápum.
Baðherbergi: Baðherbergi með sturtuklefa. Handlaug, handklæðaofn og upphengt salerni. Flísar á gólfum og veggjum. Aðstaða fyrir þvottavél og þurrkara inn á baðherbergi. Annað baðherbergi inn af hjónaherbergi.
Eldhús: Eldhúsinnrétting með góðu skápaplássi frá Axis. Ofn í vinnuhæð, góð vinnuaðstaða. Innbyggður ísskápur og uppþvottavél.
Svefnherbergi: Rúmgott hjónaherbergi með góðu skápaplássi og baðherbergi. Barnaherbergi eru þrjú, tvö með skápum en eitt sem getur einnig nýst sem sjónvarpsherbergi.
Stofa/ borðstofa: Rúmgóð setustofa og borðstofa opið inn í eldhús. Gengið er út á sérafnotarétt út frá stofu, stór rennihurð.
Bílakjallari og geymsla: Bílastæði í lokuðum bílakjallara fylgir íbúðinni ásamt 8,3 fm geymslu.

Íbúðirnar verða afhentar án gólfefna, nema á votrýmum sem verða flísalögð. Eldhúsinnréttingar eru sérsmíðuð af vandaðri gerð frá Axis.

Gjöld sem kaupandi þarf að standa straum af vegna kaupanna: 
1. Stimpilgjald af kaupsamningi - 0,8% af heildarfasteignamati. (0,4% ef um er að ræða fyrstu eign) 
2. Þinglýsingargjald af kaupsamningi, veðskuldabréfi, mögulegu veðleyfi o.fl. - kr. 2.700 af hverju skjali. 
3. Lántökugjald lánastofnunar. Nánari upplýsingar á t.d. heimasíðu lánastofnana. 
4. Umsýslugjald til fasteignasölu sbr kauptilboði.

Eignamiðlun ehf. - Grensásvegur 11, 108 Reykjavík - gunnarbergmann@eignamidlun.is - Gunnar Bergmann Jónsson löggiltur fasteignasali.

***
Ábyrg þjónusta í áratugi. Eignamiðlun var stofnuð 1957 og er elsta starfandi fasteignasala á Íslandi. Reynsla, heiðarleiki og þekking á fasteignamarkaðnum eru grunnur að farsælum viðskiptum. 

Eignamiðlun Grensásvegi 11, 108 Reykjavík - Opið frá kl. 9-17 mánudaga til fimmtudaga og 9-16 á föstudögum.

Heimasíða Eignamiðlunar

Eignamiðlun á Facebook

img
Gunnar Bergmann Jónsson
Lögg.fasteignasali innan félags fasteignasala
Eignamiðlun
Grensásvegi 11, 108 Reykjavík
Eignamiðlun

Eignamiðlun

Grensásvegi 11, 108 Reykjavík
img

Gunnar Bergmann Jónsson

Grensásvegi 11, 108 Reykjavík
Eignamiðlun

Eignamiðlun

Grensásvegi 11, 108 Reykjavík

Gunnar Bergmann Jónsson

Grensásvegi 11, 108 Reykjavík