Löggiltir fasteignasalar innan Félags fasteignasala:
Hafdís Rafnsdóttir
Dórothea E. Jóhannsdóttir
Sigurður Gunnlaugsson
Jón Gunnar Gíslason
Hafliði Halldórsson
Aðalsteinn Bjarnason
Margrét Rós Einarsdóttir
Guðný Ösp Ragnarsdóttir
Elka Guðmundsdóttir
Vista
svg

45

svg

43  Skoðendur

svg

Skráð  20. nóv. 2025

fjölbýlishús

Risadalur 4 - Íb. 205

260 Reykjanesbær

75.900.000 kr.

655.440 þ.kr./m2
Fasteignanúmer

F2538092

Fasteignamat

0 kr.

Brunabótamat

0 kr.

Áhvílandi

0 kr.

Arion banki – Reikna lán
Upplýsingar
svg
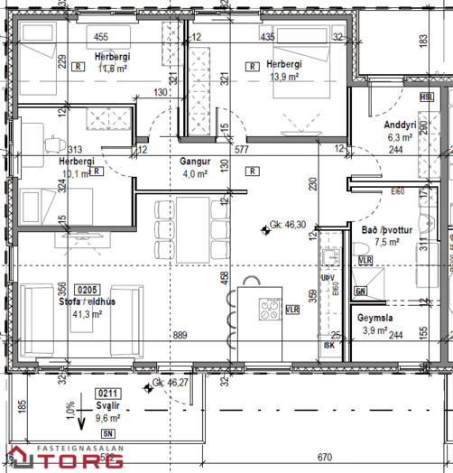
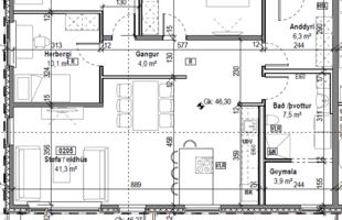
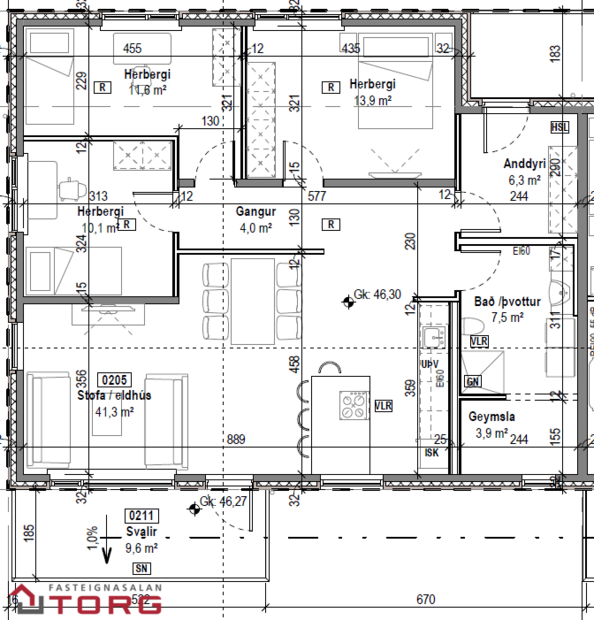
115,8 m²
svg
4 herb.
svg
1 baðherb.
svg
3 svefnh.

Lýsing

SÆKJA SÖLUYFIRLIT HÉR
TORG FASTEIGNASALA KYNNIR Í SÖLU: Nýbygging í Dalshverfi III, Reykjanesbæ. Eignin er á efri hæð og er fullbúin, fjögurra herbergja og 115,8 fm. Sér inngangur og svalir til suðvesturs. Geymsla (3,9 fm) innan íbúðar. Áætlaðar afhendingar á verkefninu er fyrir lok árs 2025. Allar nánari upplýsingar veita Matthildur Sunna Þorláksdóttir, lögfræðingur og löggiltur fasteignasali, í síma 690-4966 eða matthildur@fstorg.is
ATH! myndir eru úr sýningaríbúð og er ætlað að sýna útlit innréttinga.
 

Um verkefnið:
Um er að ræða fjölbýlishús á tveim hæðum með 9 íbúðum
Húsin eru 20 talsins og liggja á lóðum Dalshverfi III í Innri-Njarðvík sem er í nýju, fjölskylduvænu íbúðahverfi.
Fjölbreyttar og vel skipulagðar, tveggja til fjögurra herbergja íbúðir.
Íbúðirnar afhendast allar fullbúnar að innan sem utan, með gólfefnum og eru allar með sér inngangi.
Svalir og sólpallar eru á móti suðvestri.

Eignin skilast fullbúin skv. skilalýsingu:
Íbúðin skilast fullbúin með gólfefnum, parket á stofu, eldhúsi og herbergjum og flísar á baðherbergi. 
Innréttingar í eldhúsi frá HTH eða sambærilegum gæðum
Tæki í eldhúsi, helluborð, bakaraofn og háfur frá AEG eða sambærilegt 
Gólf baðherbergis og hluti veggja á baðherbergi eru flísalagðir á 2 eða 3 veggi, upp að 2,1m. Öll salerni eru upphengd og innbyggð í vegg. Á baði er handklæðaofn. Sturta er í öllum íbúðum og sturtubotn flísalagður.
Húsið er byggt úr forsteyptum einingum.
 Þakplata er varin með tveim lögum af viðurkenndum heilbræddum þakpappa, einangrað með XPS einangrun , jarðvegsdúk og lagi af harpaðri þakmöl með kornastærð 60-80mm.
Gluggar eru ál/trégluggar. 
Veggir að innan eru spartlaðir, grunnaðir og málaðir í ljósum lit. 
Fyrir nánari lýsingu, sjá skilalýsingu byggingaraðila.

Kaupandi greiðir skipulagsgjald af eigninni sem nemur 0,3% af brunabótamati og leggst á eftir að endanlegt brunabótamat hefur fengist á eignina. 

Forsendur söluyfirlits: 
Söluyfirlit er samið af fasteignasala í samræmi við ákvæði laga nr. 70/2015. Þær upplýsingar sem fram koma í söluyfirliti þessu eru sóttar í opinberar skrár, til seljanda sjálfs og eftir atvikum til húsfélags. Seljandi veitir upplýsingar um eign í samræmi við upplýsingaskyldu laga um fasteignakaup nr. 40/2002. Fasteignasali sannreynir að þær upplýsingar séu réttar með sjónskoðun á eigninni. Fasteignasali getur ekki fullyrt um ástand og eiginleika þeirra hluta fasteigna sem ekki eru aðgengilegir og sjást ekki berum augum, t.d. lagnir, dren, skólp og þak. 

Gjöld sem kaupandi þarf að standa straum af vegna kaupanna:
Stimpilgjald af kaupsamningi sem er hlutfall af fasteignamati. Stimpilgjald er 0,8% fyrir einstaklinga (0,4% við fyrstu kaup m.v. að lágmarki 50% eignarhlut) og 1,6% fyrir lögaðila.Þinglýsingargjald hvers skjals er kr. 2.700,- .Lántökugjald lánastofnunar skv. gjaldskrá viðkomandi lánveitanda. Umsýsluþóknun fasteignasölu skv. gjaldskrá. Ef um nýbyggingu er að ræða greiðir kaupandi skipulagsgjald, 0,3% af brunabótamati, þegar það er lagt á. 
 
TORG fasteignasala bendir fasteignakaupendum á ríka skoðunarskyldu kaupenda sem kveðið er á í lögum um fasteignakaup nr.40/2002. Skorað er á kaupendur að kynna sér vandlega ástand fasteigna og nýta til þess aðstoð sérfræðinga.  Sömuleiðis er bent á upplýsingaskyldu seljanda samanber 26.gr. Laga nr.40/2002 um fasteignakaup og 25.gr. laga nr.26/1994 um fjöleignarhús. Seljanda er bent á að kynna sér tilvitnaðar lagagreinar.

Fasteignasalan TORG

Fasteignasalan TORG

Garðatorgi 5, 210 Garðabæ
phone
Fasteignasalan TORG

Fasteignasalan TORG

Garðatorgi 5, 210 Garðabæ
phone