Upplýsingar
107,1 m²
4 herb.
1 baðherb.
3 svefnh.
Lyfta
Opið hús: 4. desember 2025
kl. 16:30
til 17:00
Opið hús fimmtudaginn 4. des. milli kl. 16:30 & 17:00 við Apalskarð 2-6 í Skarðshlíð, Hafnarfirði - Verið velkomin!
Lýsing
Nýtt og glæsilegt 10 íbúða lyftufjölbýli við Apalskarð 6 í Skarðshlíðinni, 221 Hafnarfirði.
Öllum íbúðum fylgir sérbílastæði í bílakjallara. Íbúðirnar skilast á megin gólfefna en baðherbergi verða flísalögð.
Stærð: 104,6 - 120,0 fm.
Herbergi: 4 - 5
Verð: 75,0 - 86,0 mkr.
Smelltu hér til að skoða sölusíðu verkefnisins.
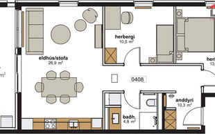
Íbúð 101:
Anddyri með skápum. Þrjú svefnherbergi, öll með skápum. Eldhús, stofa og borðstofa í rúmgóðu alrými með útg. á suðurverönd. Eldhús með eyju, helluborði m/viftu yfir, stæði fyrir uppþvottavél og góðu skápaplássi. Baðherbergi með walk-in sturtu, vegghengdu salerni og stæði fyrir þvottavél og þurrkara.
Sérgeymsla í kjallara.
Sérbílastæði í bílakjallara.
Sameiginleg hjóla- og vagnageymsla.
Fallegar innréttingar frá Parka.
Traustur verktaki til margra ára, VHE ehf.
ATH. myndirnar eru af sýningaríbúð og eru ætlaðar til viðmiðunnar.
Skarðshlíðin er nýtt og glæsilegt hverfi þar sem stutt er í alla helstu þjónstu, s.s. verslanir, grunn- og leikskóla, útibú tónlistarskóla Hafnarfjarðar, íþróttasvæði Hauka, sundlaugar, líkamsræktarstöðvar, apótek og falleg útivistarsvæði.
Bókið skoðun og fáið nánari upplýsingar hjá sölumönnum Ás fasteignasölu:
Stefán Rafn Sigurmannsson löggiltur fasteignasali s. 655-7000 / stefan@as.is
Arnór Daði Eiríksson löggiltur fasteignasali s. 777-0939 / arnor@as.is
Aron Freyr Eiríksson löggiltur fasteignasali s. 772-7376 / aron@as.is
Eiríkur Svanur Sigfússon löggiltur fasteignasali í s. 862-3377 / eirikur@as.is
Svala Haraldsdóttir löggiltur fasteignasali s. 820-9699 / svala@as.is
Ás fasteignasala er rótgróið fyrirtæki sem hefur veitt alla almenna þjónustu í fasteignaviðskiptum frá árinu 1988.
www.facebook.com/asfasteignasala
www.instagram.com/as_fasteignasala
www.as.is
Öllum íbúðum fylgir sérbílastæði í bílakjallara. Íbúðirnar skilast á megin gólfefna en baðherbergi verða flísalögð.
Stærð: 104,6 - 120,0 fm.
Herbergi: 4 - 5
Verð: 75,0 - 86,0 mkr.
Smelltu hér til að skoða sölusíðu verkefnisins.
Íbúð 101:
Anddyri með skápum. Þrjú svefnherbergi, öll með skápum. Eldhús, stofa og borðstofa í rúmgóðu alrými með útg. á suðurverönd. Eldhús með eyju, helluborði m/viftu yfir, stæði fyrir uppþvottavél og góðu skápaplássi. Baðherbergi með walk-in sturtu, vegghengdu salerni og stæði fyrir þvottavél og þurrkara.
Sérgeymsla í kjallara.
Sérbílastæði í bílakjallara.
Sameiginleg hjóla- og vagnageymsla.
Fallegar innréttingar frá Parka.
Traustur verktaki til margra ára, VHE ehf.
ATH. myndirnar eru af sýningaríbúð og eru ætlaðar til viðmiðunnar.
Skarðshlíðin er nýtt og glæsilegt hverfi þar sem stutt er í alla helstu þjónstu, s.s. verslanir, grunn- og leikskóla, útibú tónlistarskóla Hafnarfjarðar, íþróttasvæði Hauka, sundlaugar, líkamsræktarstöðvar, apótek og falleg útivistarsvæði.
Bókið skoðun og fáið nánari upplýsingar hjá sölumönnum Ás fasteignasölu:
Stefán Rafn Sigurmannsson löggiltur fasteignasali s. 655-7000 / stefan@as.is
Arnór Daði Eiríksson löggiltur fasteignasali s. 777-0939 / arnor@as.is
Aron Freyr Eiríksson löggiltur fasteignasali s. 772-7376 / aron@as.is
Eiríkur Svanur Sigfússon löggiltur fasteignasali í s. 862-3377 / eirikur@as.is
Svala Haraldsdóttir löggiltur fasteignasali s. 820-9699 / svala@as.is
Ás fasteignasala er rótgróið fyrirtæki sem hefur veitt alla almenna þjónustu í fasteignaviðskiptum frá árinu 1988.
www.facebook.com/asfasteignasala
www.instagram.com/as_fasteignasala
www.as.is