Löggiltir fasteignasalar innan Félags fasteignasala:
Aðalheiður Karlsdóttir
Upplýsingar
345 m²
5 herb.
2 baðherb.
4 svefnh.
Þvottahús
Sérinngangur
Lýsing
SPÁNAREIGNIR KYNNIR:
*GLÆSILEGAR GOLFVILLUR Á LA FINCA GOLFVELLINUM*
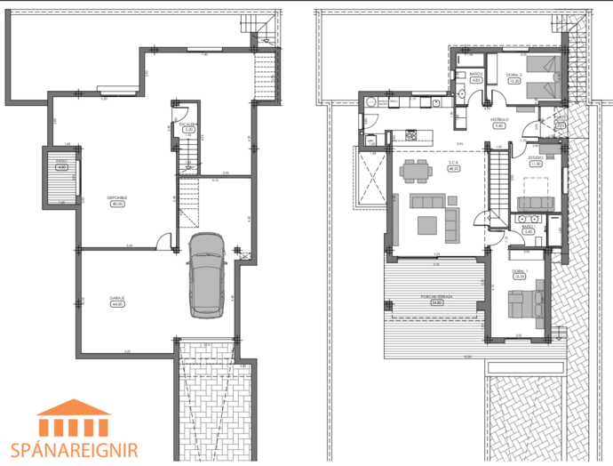
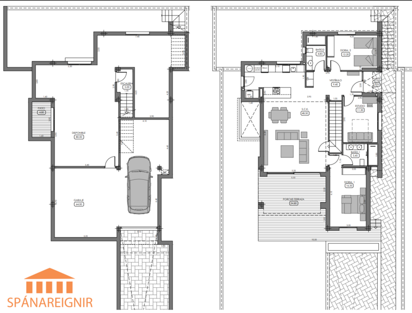
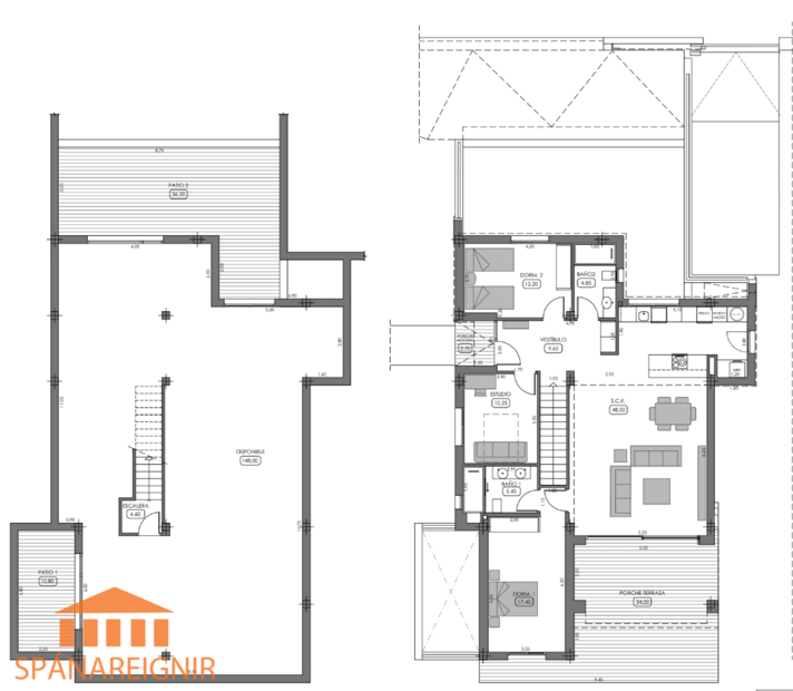
Sérlega vönduð og falleg, vel skipulögð og rúmgóð og ný einbýlishús á einni hæð ásamt stórum kjallara, í stuttu göngufæri frá klúbbhúsinu við hinn glæsilega La Finca golfvöll. Góð sér lóð með einkasundlaug. Um 30 mín akstur suður frá Alicante. Sérlega glæsileg hús með góðu alrými, þremur svefnherbergjum, fataherbergi og tveimur baðherbergjum. Mikil lofthæð í alrými gefur glæsilegt yfirbragð. Stór sér lóð með einkasundlaug. Bílastæði inni á lokaðri lóð. Auk þess fylgir stór kjallari, sem hægt er að láta innrétta eftir óskum kaupanda gegn aukagjaldi. Þar er td. hægt að hafa bílskúr, gestaherbergi, tómstunarrými eða góða vinnuaðstöðu.
Allar upplýsingar gefa:
Aðalheiður Karlsdóttir, löggiltur fasteignasali. adalheidur@spanareignir.is. TEL.: 00354 8932495
Berta Hawkins, löggiltur fasteignasali, berta@spanareignir.is. TEL.: 0034 615 112 869.
Nánari lýsing:
Falleg aðkoma er að húsinu og skiptist það í gott eldhús, með góðri tengingu við útisvæði og stofu/borðstofu í rúmgóðu alrými með mikilli lofthæð sem gefur glæsilegt yfirbragð. Rafmagnstæki fylgja í eldhúsi.
Hjónasvíta með sér baðherbergi og fataherbergi. Auk þess tvö svefnherbergi til viðbótar á sérgangi og þar er annað baðherbergi. Gólfhiti á baðherbergjum.
Kjallari er undir öllu húsinu sem hægt er að láta innrétta eftir eigin óskum.
Út frá stofunni er stór verönd og góður, lokaður garður með flottri aðstöðu til að njóta sólar, grilla ofl. Einkasundlaug í garðinum.
Fallegt umhverfi.
Innbyggt kerfi fyrir loftkælingu og hitun.
Hér er um einstaka eign og staðsetningu að ræða, í örstuttu göngufær við nýja og flotta klúbbhúsið á La Finca golfvellinum 5* golf og spa hótel og nýjan og glæsilegan þjónustukjarna þar sem er að finna gæðaveitingastaði, vínsmökkun og verslanir. Einnig eru fjölmargir góðir golfvellir í næsta nágrenni, t.d. Campoamor, Las Colinas, Villamartin, Las Ramblas, Lo Romero, Vistabella, Roda Golf, La Marquesa og fleiri.
Ca. 20 mín akstur er niður á ströndina og ca. 20 mín akstur í vinsælu verslunarmiðstöðina, La Zenia Boulevard. Ennfremur er stutt að keyra í skemmtilega bæi í næsta nágrenni, t.d. Algorfa og Ciudad Quesada.
Lúxuseign fyrir kröfuharða golfara og fólk sem kann að njóta lífsins.
Verð 734.000 Evrur. (106.400.000ISK miðað við gengi 1E=145ISK)
Húsið er 135 fm.
Verönd 38 fm.
Kjallari 172 fm
Samtals 345 fm.
AÐEINS ÖRFÁ HÚS Í BOÐI.
TIL AFHENDINGAR Í FEB. 2027.
Við höfum selt fasteignir á Spáni síðan 2001. Tryggir þekkingu, reynslu og öryggi.
Eitt besta loftslag í heimi samkvæmt Alþjóða heilbrigðistofnunni, WHO.
SKOÐUNARFERÐIR:
Við aðstoðum kaupendur við að skipuleggja skoðunarferðir og tökum þátt í kostnaði vegna þeirra, ef af viðskiptum verður.
Mögulegt er að fjármagna hluta kaupverðs með láni frá spænskum banka.
Sjá nánar um fasteignakaup á Spáni á heimasíðunni okkar: www.spanareignir.is
Kostnaður við kaupin:
10% IVA (spænskur söluskattur) af kaupverði eignarinnar. Auk þess má gera ráð fyrir ca. 3% kostnaði vegna stimpilgjalda og annars kostnaðar við kaupin, þ.e. samtals getur kostnaður vegna kaupa á fasteign á Spáni því farið upp í ca.13%.
Eiginleikar: sér garður, einkasundlaug, bílastæði, kjallari, golf
Svæði: Costa Blanca, La Finca,
*GLÆSILEGAR GOLFVILLUR Á LA FINCA GOLFVELLINUM*
Sérlega vönduð og falleg, vel skipulögð og rúmgóð og ný einbýlishús á einni hæð ásamt stórum kjallara, í stuttu göngufæri frá klúbbhúsinu við hinn glæsilega La Finca golfvöll. Góð sér lóð með einkasundlaug. Um 30 mín akstur suður frá Alicante. Sérlega glæsileg hús með góðu alrými, þremur svefnherbergjum, fataherbergi og tveimur baðherbergjum. Mikil lofthæð í alrými gefur glæsilegt yfirbragð. Stór sér lóð með einkasundlaug. Bílastæði inni á lokaðri lóð. Auk þess fylgir stór kjallari, sem hægt er að láta innrétta eftir óskum kaupanda gegn aukagjaldi. Þar er td. hægt að hafa bílskúr, gestaherbergi, tómstunarrými eða góða vinnuaðstöðu.
Allar upplýsingar gefa:
Aðalheiður Karlsdóttir, löggiltur fasteignasali. adalheidur@spanareignir.is. TEL.: 00354 8932495
Berta Hawkins, löggiltur fasteignasali, berta@spanareignir.is. TEL.: 0034 615 112 869.
Nánari lýsing:
Falleg aðkoma er að húsinu og skiptist það í gott eldhús, með góðri tengingu við útisvæði og stofu/borðstofu í rúmgóðu alrými með mikilli lofthæð sem gefur glæsilegt yfirbragð. Rafmagnstæki fylgja í eldhúsi.
Hjónasvíta með sér baðherbergi og fataherbergi. Auk þess tvö svefnherbergi til viðbótar á sérgangi og þar er annað baðherbergi. Gólfhiti á baðherbergjum.
Kjallari er undir öllu húsinu sem hægt er að láta innrétta eftir eigin óskum.
Út frá stofunni er stór verönd og góður, lokaður garður með flottri aðstöðu til að njóta sólar, grilla ofl. Einkasundlaug í garðinum.
Fallegt umhverfi.
Innbyggt kerfi fyrir loftkælingu og hitun.
Hér er um einstaka eign og staðsetningu að ræða, í örstuttu göngufær við nýja og flotta klúbbhúsið á La Finca golfvellinum 5* golf og spa hótel og nýjan og glæsilegan þjónustukjarna þar sem er að finna gæðaveitingastaði, vínsmökkun og verslanir. Einnig eru fjölmargir góðir golfvellir í næsta nágrenni, t.d. Campoamor, Las Colinas, Villamartin, Las Ramblas, Lo Romero, Vistabella, Roda Golf, La Marquesa og fleiri.
Ca. 20 mín akstur er niður á ströndina og ca. 20 mín akstur í vinsælu verslunarmiðstöðina, La Zenia Boulevard. Ennfremur er stutt að keyra í skemmtilega bæi í næsta nágrenni, t.d. Algorfa og Ciudad Quesada.
Lúxuseign fyrir kröfuharða golfara og fólk sem kann að njóta lífsins.
Verð 734.000 Evrur. (106.400.000ISK miðað við gengi 1E=145ISK)
Húsið er 135 fm.
Verönd 38 fm.
Kjallari 172 fm
Samtals 345 fm.
AÐEINS ÖRFÁ HÚS Í BOÐI.
TIL AFHENDINGAR Í FEB. 2027.
Við höfum selt fasteignir á Spáni síðan 2001. Tryggir þekkingu, reynslu og öryggi.
Eitt besta loftslag í heimi samkvæmt Alþjóða heilbrigðistofnunni, WHO.
SKOÐUNARFERÐIR:
Við aðstoðum kaupendur við að skipuleggja skoðunarferðir og tökum þátt í kostnaði vegna þeirra, ef af viðskiptum verður.
Mögulegt er að fjármagna hluta kaupverðs með láni frá spænskum banka.
Sjá nánar um fasteignakaup á Spáni á heimasíðunni okkar: www.spanareignir.is
Kostnaður við kaupin:
10% IVA (spænskur söluskattur) af kaupverði eignarinnar. Auk þess má gera ráð fyrir ca. 3% kostnaði vegna stimpilgjalda og annars kostnaðar við kaupin, þ.e. samtals getur kostnaður vegna kaupa á fasteign á Spáni því farið upp í ca.13%.
Eiginleikar: sér garður, einkasundlaug, bílastæði, kjallari, golf
Svæði: Costa Blanca, La Finca,