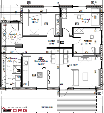
Risadalur 2, 260 Reykjanesbær