Löggiltir fasteignasalar innan Félags fasteignasala:
Heiðrekur Þór Guðmundsson
Elísabet Kvaran
Karólína Íris Jónsdóttir
Vista
raðhús

Bjartahlíð 21

270 Mosfellsbær

155.000.000 kr.

756.098 þ.kr./m2
Fasteignanúmer

F2219404

Fasteignamat

136.450.000 kr.

Brunabótamat

105.750.000 kr.

Áhvílandi

0 kr.

Arion banki – Reikna lán
Upplýsingar
Verðsaga
svg
Byggt 1995
svg
205 m²
svg
5 herb.
svg
1 baðherb.
svg
4 svefnh.
svg
Þvottahús
svg
Garður
svg
Bílskúr
svg
Sérinngangur
svg
Bílastæði

Lýsing

Viltu fasteignir kynna vel skipulagt 205m2 raðhús á tveimur hæðum við Björtuhlíð 21, 270 Mosfellsbæ.

Á sölusíðu eignarinnar er hægt að nálgast söluyfirlit og önnur sölugögn eignarinnar

Seljendur skoða að taka eign upp að 100 milljónum uppí.

Bjartahlíð 21 er fallegt 205m2 raðhús á frábærum stað í Hlíðunum í Mosfellsbæ. 4 svefnherbergi, bílskúr og garður bæði í suður og norður. Hluti efri hæðar er undir súð og því eru nýtanlegir fermetrar fleiri en uppgefnir.

Nánari lýsing:

1.hæð

Forstofa: Flísalögð með góðum skáp.
Borðstofa/stofa: Bjart og rúmgott rými með gluggum til suðurs og útgengi á sólpall til suðurs. Mjög mikil lofthæð í hluta rýmisins. Parket á gólfi.
Eldhús: Rúmgott og bjart með góðri sprautulakkaðri u-laga innréttingu. Borðkrókur við glugga. Vínilflísar á gólfi.
Baðherbergi: Mjög rúmgott og flísalagt í hólf og gólf. Baðkar og sturtuhorn. Upphengt salerni og handklæðaofn.
Hjónaherbergi: Gott herbergi með gluggum til norðurs. Parket á gólfi. Úr herberginu er hægt að ganga út í norður garðinn. Þar er fullkomið til að koma fyrir potti og gufu!
Herbergi: Nett herbergi sem hentar fullkomlega fyrir barn eða sem heimaskrifstofa. Parket á gólfi.
Þvottahús: Gott þvottahús með innréttingu. Pláss fyrir þvottavél og þurrkara hlið við hlið í hæð í innréttingunni. Flísar á gólfi.
Bílskúr: Í dag nýttur að hluta sem herbergi en lítið mál að breyta til baka. Gott milliloft. Bílskúrinn er 25m2

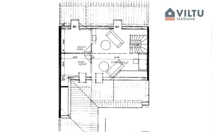
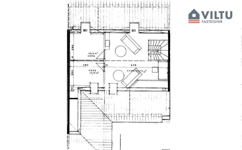
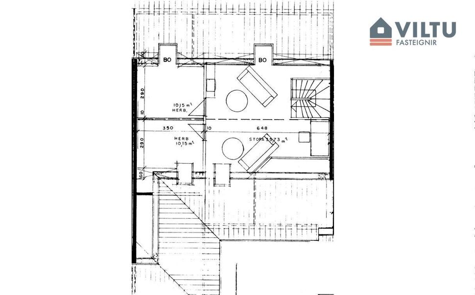
2.hæð.

Gengið er til 2. hæðar um stiga frá stofu.
Alrými: Frá stiga er komið í alrými sem er að hluta opið niður í stofu neðri hæðar. Mjög rúmgott og nýtist vel bæði fyrir sjónvarpsherbergi og fyrir heimaskrifstofu. Möguleiki er að breyta skipulagi og búa til 5. svefnherbergið þarna. Plastparket á gólfi
Svefnherbergi I: Stórt og gott herbergi með pláss fyrir bæði svefnhluta og litla setustofu. Þakgluggi. Plastparket á gólfi.
Svefnherbergi II: Einnig rúmgott með nægu plássi og þakglugga. Plastparket á gólfi.

Lóð/garður: Til suðurs er sólpallur og steypt bílaplan með snjóbræðslu. Norðan við hús er grasflöt.

Frábært tækifæri til að eignast sérbýli með 4-5 svefnherbergi og suðurgarði í grónu og vinsælu hverfi í Mosfellsbæ. Örstutt í skóla, sundlaug, World Class, verslanir og þjónustu. Falleg eign í botnalanga í friðsælli götu.

Nánari upplýsingar veitir Heiðrekur Guðmundsson, löggiltur fasteignasali í 845-9000 eða heidrekur@viltu.is / Viltu fasteignir í 5835000 eða hvad@viltu.is

Nánari upplýsingar í síma 583-5000 eða hvad@viltu.is

Viltu fasteignir bjóða fasta söluþóknun frá 995.000 kr. m.vsk
Allt innifalið.
Kynntu þér málið á Viltu.is

Fyrirvarar:

Í lögum um fasteignakaup nr. 40/2002 er kveðið á um ríka skoðunarskyldu kaupenda á fasteignum. Vill seljandi því skora á væntanlega kaupendur að kynna sér vel ástand fasteignarinnar fyrir kauptilboðsgerð og leita til þar til bærra sérfræðinga um nánari skoðun.

Þær upplýsingar sem fram koma í söluyfirliti þessu eru sóttar í opinberar skrár, til seljanda sjálfs og eftir atvikum til húsfélags. Seljandi veitir upplýsingar um eign í samræmi við upplýsingaskyldu laga um fasteignakaup nr. 40/2002.

img
Heiðrekur Þór Guðmundsson
Lögg.fasteignasali innan félags fasteignasala
Viltu fasteignir
Viltu fasteignir

Viltu fasteignir

phone
img

Heiðrekur Þór Guðmundsson

Ár
Fasteignamat
Kaupverð
Stærð
Fermetraverð
29. maí. 2020
76.400.000 kr.
77.500.000 kr.
205 m²
378.049 kr.
Byggt á upplýsingum úr Þjóðskrá Íslands frá 2006-2026
Viltu fasteignir

Viltu fasteignir

phone

Heiðrekur Þór Guðmundsson