Löggiltir fasteignasalar innan Félags fasteignasala:
Halla Unnur Helgadóttir
Elín Urður Hrafnberg
Guðmunda Björnsdóttir Stackhouse
Herdís Valb. Hölludóttir
Ingibjörg Reynisdóttir
Ellert Bragi Sigurþórsson
Daði Runólfsson
Vista
svg

49

svg

47  Skoðendur

svg

Skráð  24. nóv. 2025

fjölbýlishús

Víkurmói 4 - Íbúð 401

800 Selfoss

65.900.000 kr.

666.330 þ.kr./m2
Fasteignanúmer

F2539584

Fasteignamat

24.600.000 kr.

Brunabótamat

0 kr.

Áhvílandi

0 kr.

Arion banki – Reikna lán
Upplýsingar
svg
Byggt 2025
svg
98,9 m²
svg
3 herb.
svg
1 baðherb.
svg
2 svefnh.
svg
Útsýni
svg
Lyfta

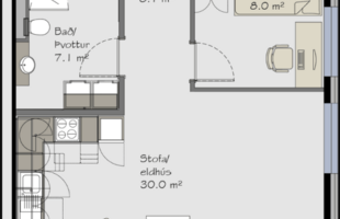
Lýsing

Gimli fasteignasala kynnir 3-4ra herbergja endaíbúð á fjórðu hæð (efstu) með sérinngangi af svölum í vönduðu nýju lyftuhúsi. Eignin verður tilbúin til afhendingar í byrjun árs 2026. Íbúðin sem er 98,9 fm að stærð (4,6 fm geymsla innan íbúðar) skilast fullfrágengin án gólfefna á meginrýmum en gólf votrýma verða flísalögð. Gluggar og svalahurðir eru ál/tré frá Gluggatækni ehf. Innréttingar og skápar frá HTH. Eldhúsinnrétting er tvítóna, með dökkri viðaráferð á efri skápum og ljósum neðri skápum. Aðrar innréttingar eru ljósar. Heimilistæki eru frá Ormsson, helluborð, ofn, háfur og innbyggð uppþvottavél. Innihurðir eru með mattri hvítri áferð og eru yfirfelldar. Gólf á baðherbergi er flísalagt og veggir flísalagðir að hluta, flísar frá Álfaborg. Á baði er upphengt salerni, sturta, vegleg vaskinnrétting, speglaskápur og innrétting fyrir þvottavél og þurrkara. Húsið er byggt úr forsteyptum einingum með staðsteyptum milliplötum. 
Frekari upplýsingar er að finna á söluvefnum http://vikurmoi2-6.is


Nánari upplýsingar veita:
Ólafur Björn Blöndal Löggiltur fasteigna-, fyrirtækja og skipasali, í síma 6900811, tölvupóstur olafur@gimli.is
Elín Urður Hrafnberg Löggiltur fasteigna- og skipasali, í síma 6902602, tölvupóstur elin@gimli.is eða gimli@gimli.is
Lilja Hrafnberg Viðskiptafræðingur/Löggiltur fasteignasali, í síma 8206511, tölvupóstur lilja@gimli.is 


NÁNARI LÝSING:
Forstofa: Gengið er af svalagangi inn í rúmgóða forstofu með glugga.
Gangur: úr anddyri er komið inn á gang.
Hjónaherbergi: með þreföldum skápum og gluggum á tvo vegu.
Baðherbergi: flísalagt gólf og að hluta til á veggjum, walk in sturta með glerskilrúmi. Góð baðinnrétting með vaski og speglaskáp fyrir ofan, handklæðaofni og innréttingu fyrir þvottavél og þurrkara.
Svefnherbergi #2: með fataskáp og góðum glugga.
Eldhús/stofa: Alrými, eldhúsinnrétting er tvítóna, með dökkri viðaráferð á efri skápum og ljósum neðri skápum. Heimilistækin eru frá Ormsson, helluborð, ofn, háfur, innbyggð uppþvottavél og ísskápur. Úr alrými er útgengi á skjólgóðar svalir.
Geymsla: innan íbúðar er 4,6 fm geymsla. 
Sameign: hjóla- og vagnageymsla í sameign. 
Lóð: skilast fullfrágengin með tengi fyrir rafhleðslu

Víkurmói 4 á Selfossi er vandað fjölbýli með lyftu á fjórum hæðum með samtals 23 íbúðum með sérinngangi af stétt/svalagangi. 
Listi yfir sambærilegar eignir til sölu í húsinu: 

Íbúð 101: 98,9 fm. 3-4ra herbergja. Söluverð 65,9 mkr. 
Íbúð 105: 98,9 fm. 3-4ra herbergja. Söluverð 66,9 mkr. 

Íbúð 201: 98,9 fm. 4ra herbergja. Söluverð 64,5 mkr. 
Íbúð 206: 98,9 fm. 3-4ra herbergja. Söluverð 64,9 mkr. 

Íbúð 301: 98,9 fm. 4ra herbergja. Söluverð 64,9 mkr. 
Íbúð 306: 98,9 fm. 3-4ra herbergja. Söluverð 65,5 mkr. 

Íbúð 406: 98,9 fm. 3-4ra herbergja. Söluverð 66,9 mkr. 

Gimli fasteignasala leggur áherslu á traust, áreiðanleika og góða þjónustu.

Það er okkar trú að það skipti öllu máli í fasteignaviðskiptum að viðskiptavinurinn fái trausta og góða þjónustu. Við hjá Gimli höfum stundað fasteignaviðskipti með farsælum hætti í meira en fjóra áratugi. Hjá okkur starfa sérhæfðir og reyndir fasteignasalar sem sinna stórum sem smáum verkefnum af nákvæmni og þekkingu sem skilar árangri.

Hvar erum við?
Gimli Fasteignasala er staðsett á jarðhæð í Skipholti 35 í Reykjavík en einnig rekum við söluskrifstofu að Eyrarvegi 29. 2 hæð á Selfossi.

Við höfum opið frá 10-15 mánudaga til föstudaga. Sláðu á þráðinn eða líttu við hjá okkur í Skipholtinu næst þegar þú átt leið hjá. Við erum alltaf með heitt á könnunni. sími: 570 4800, tölvupóstur: gimli@gimli.is

Gimli gerir betur...
Heimasíða Gimli fasteignasölu

Gimli á Facebook

Um skoðunar- og aðgæsluskyldu kaupenda: Í lögum um fasteignakaup nr. 40/2002 er kveðið á um ríka skoðunarskyldu kaupenda á fasteignum. Gimli fasteignasala bendir væntanlegum kaupendum á að kynna sér vel ástand eigna við skoðun og fyrir tilboðsgerð og að leita til sérfræðinga um nánari ástandsskoðun ef þörf er á.
Forsendur söluyfirlits: Söluyfirlit er samið af fasteignasala í samræmi við ákvæði laga nr. 70/2015. Þær upplýsingar sem fram koma í söluyfirliti þessu eru sóttar í opinberar skrár, til seljanda sjálfs og eftir atvikum til húsfélags. Seljandi veitir upplýsingar um eign í samræmi við upplýsingaskyldu laga um fasteignakaup nr. 40/2002. Fasteignasali sannreynir að þær upplýsingar séu réttar með sjónskoðun á eigninni. Fasteignasali getur ekki fullyrt um ástand og eiginleika þeirra hluta fasteigna sem ekki eru aðgengilegir og sjást ekki berum augum, t.d. lagnir, dren, skólp og þak.
Gjöld sem kaupandi þarf að standa straum af vegna kaupanna:Stimpilgjald af kaupsamningi sem er hlutfall af fasteignamati. Stimpilgjald er 0,8% fyrir einstaklinga (0,4% við fyrstu kaup m.v. að lágmarki 50% eignarhlut) og 1,6% fyrir lögaðila.Þinglýsingargjald hvers skjals er kr. 2.700,- .Lántökugjald lánastofnunar skv. gjaldskrá viðkomandi lánveitanda.Umsýsluþóknun fasteignasölu skv. gjaldskrá.Ef um nýbyggingu er að ræða greiðir kaupandi skipulagsgjald, 0,3% af brunabótamati, þegar það er lagt á.
Teikningar sem fylgja lýsingu eignarinnar og myndum eru til viðmiðunar og ekki alltaf í samræmi við samþykktar teikningar af eigninni.
Myndir í auglýsingu eru í einkaeigu og er notkun þeirra með öllu óheimil án formlegs leyfis fasteignasala
 

Gimli fasteignasala leggur áherslu á traust, áreiðanleika og góða þjónustu.

Það er okkar trú að það skipti öllu máli í fasteignaviðskiptum að viðskiptavinurinn fái trausta og góða þjónustu. Við hjá Gimli höfum stundað fasteignaviðskipti með farsælum hætti í meira en fjóra áratugi. Hjá okkur starfa sérhæfðir og reyndir fasteignasalar sem sinna stórum sem smáum verkefnum af nákvæmni og þekkingu sem skilar árangri.

Hvar erum við?
Gimli Fasteignasala er staðsett á jarðhæð í Skipholti 35 í Reykjavík en einnig rekum við söluskrifstofu að Eyrarvegi 29. 2 hæð á Selfossi.

Við höfum opið frá 10-15 mánudaga til föstudaga. Sláðu á þráðinn eða líttu við hjá okkur í Skipholtinu næst þegar þú átt leið hjá. Við erum alltaf með heitt á könnunni.

Gimli gerir betur...

img
Elín Urður Hrafnberg
Lögg.fasteignasali innan félags fasteignasala
Gimli fasteignasala
Skipholt 35, 105 Reykjavík
Gimli fasteignasala

Gimli fasteignasala

Skipholt 35, 105 Reykjavík
phone
img

Elín Urður Hrafnberg

Skipholt 35, 105 Reykjavík
Gimli fasteignasala

Gimli fasteignasala

Skipholt 35, 105 Reykjavík
phone

Elín Urður Hrafnberg

Skipholt 35, 105 Reykjavík