Upplýsingar
Verðsaga
Byggt 2023
99,6 m²
4 herb.
1 baðherb.
3 svefnh.
Sérinngangur
Lýsing
Bókið skoðun - Glódís Helgadóttir löggiltur fasteignasali s. 659-0510 / glodis@hraunhamar.is
Hraunhamar fasteignasala kynnir: Glæsilega nýlega fjögurra herbergja íbúð með sérinngangi á frábærum stað við Drangsskarð 15 í Skarðshlíðarhverfinu í Hafnarfirði. Rúmgóður sérafnotaflötur fylgir eigninni. Skóli og leikskóli í göngufjarlægð. Merkt bílastæði fylgir eigninni.
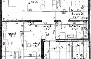
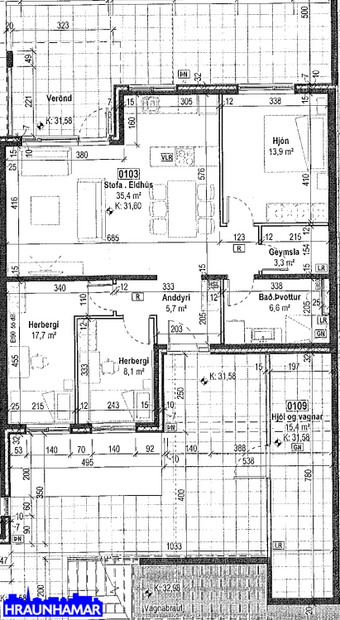
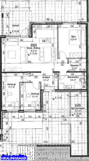
Íbúðin er skráð 99,6 fermetrar skv. HMS.
Nánari lýsing:
Anddyri með fataskáp.
Gott opið rými, þar sem eldhús og stofa eru samliggjandi.
Eldhús með smekklegri innréttingu frá HTH og vönduðum eldunartækjum, innbyggður ísskápur og uppþvottavél.
Björt stofa og borðstofa og þaðan er útgengt á rúmgóðan sérafnotaflöt sem snýr til vesturs
Þrjú góð svefnherbergi með fataskápum.
Flísalagt baðherbergi með innréttingu, upphengdu salerni og sturtu. Tengi fyrir þvottavél og þurrkara inn á baðherbergi.
Geymsla er innan íbúðar.
Skemmtileg íbúð í þessu 7 íbúða klasahúsi sem vert er að skoða.
Merkt bílastæði fylgir eigninni og búið er að tengja fyrir rafhleðslustöð.
Sameiginleg hjóla og vagnageymsla er við íbúðina.
Nánari upplýsingar veita:
Glódís Helgadóttir, löggiltur fasteignasali, s. 659-0510, glodis@hraunhamar.is
Skoðunarskylda:
Í lögum um fasteignakaup nr. 40/2002 er kveðið á um ríka skoðunarskyldu kaupenda á fasteignum. Hraunhamar fasteignasala vill benda væntanlegum kaupendum á að kynna sér vel ástand fasteigna fyrir kauptilboðsgerð og ef þurfa þykir að leita til sérfræðinga fyrir nánari ástandsskoðun.
Gjöld sem kaupandi þarf að standa straum af vegna kaupanna:
1. Stimpilgjald af kaupsamningi, fyrstu kaup (0,4%), almenn kaup (0,8%), lögaðilar (1,6%) af heildarfasteignamati.
2. Þinglýsingargjald af kaupsamningi, veðskuldabréfi, mögulegu veðleyfi o.fl. – kr. 2.700 kr. af hverju skjali.
3. Lántökugjald lánastofnunar er skv. verðskrá viðkomandi lánastofnunar.
4. Umsýslugjald til fasteignasölu skv. þjónustusamningi
Hraunhamar er elsta fasteignasala Hafnarfjarðar, stofnuð 1983
Hraunhamar, í farabroddi í rúm 40 ár ! – Hraunhamar.is
Hraunhamar fasteignasala kynnir: Glæsilega nýlega fjögurra herbergja íbúð með sérinngangi á frábærum stað við Drangsskarð 15 í Skarðshlíðarhverfinu í Hafnarfirði. Rúmgóður sérafnotaflötur fylgir eigninni. Skóli og leikskóli í göngufjarlægð. Merkt bílastæði fylgir eigninni.
Íbúðin er skráð 99,6 fermetrar skv. HMS.
Nánari lýsing:
Anddyri með fataskáp.
Gott opið rými, þar sem eldhús og stofa eru samliggjandi.
Eldhús með smekklegri innréttingu frá HTH og vönduðum eldunartækjum, innbyggður ísskápur og uppþvottavél.
Björt stofa og borðstofa og þaðan er útgengt á rúmgóðan sérafnotaflöt sem snýr til vesturs
Þrjú góð svefnherbergi með fataskápum.
Flísalagt baðherbergi með innréttingu, upphengdu salerni og sturtu. Tengi fyrir þvottavél og þurrkara inn á baðherbergi.
Geymsla er innan íbúðar.
Skemmtileg íbúð í þessu 7 íbúða klasahúsi sem vert er að skoða.
Merkt bílastæði fylgir eigninni og búið er að tengja fyrir rafhleðslustöð.
Sameiginleg hjóla og vagnageymsla er við íbúðina.
Nánari upplýsingar veita:
Glódís Helgadóttir, löggiltur fasteignasali, s. 659-0510, glodis@hraunhamar.is
Skoðunarskylda:
Í lögum um fasteignakaup nr. 40/2002 er kveðið á um ríka skoðunarskyldu kaupenda á fasteignum. Hraunhamar fasteignasala vill benda væntanlegum kaupendum á að kynna sér vel ástand fasteigna fyrir kauptilboðsgerð og ef þurfa þykir að leita til sérfræðinga fyrir nánari ástandsskoðun.
Gjöld sem kaupandi þarf að standa straum af vegna kaupanna:
1. Stimpilgjald af kaupsamningi, fyrstu kaup (0,4%), almenn kaup (0,8%), lögaðilar (1,6%) af heildarfasteignamati.
2. Þinglýsingargjald af kaupsamningi, veðskuldabréfi, mögulegu veðleyfi o.fl. – kr. 2.700 kr. af hverju skjali.
3. Lántökugjald lánastofnunar er skv. verðskrá viðkomandi lánastofnunar.
4. Umsýslugjald til fasteignasölu skv. þjónustusamningi
Hraunhamar er elsta fasteignasala Hafnarfjarðar, stofnuð 1983
Hraunhamar, í farabroddi í rúm 40 ár ! – Hraunhamar.is
Ár
Fasteignamat
Kaupverð
Stærð
Fermetraverð
29. ágú. 2024
48.650.000 kr.
83.900.000 kr.
10103 m²
8.304 kr.
Byggt á upplýsingum úr Þjóðskrá Íslands frá 2006-2025