Upplýsingar
Verðsaga
Byggt 2006
102,2 m²
3 herb.
1 baðherb.
2 svefnh.
Þvottahús
Bílastæði
Lyfta
Lýsing
Hraunhamar kynnir þriggja herbergja íbúð með suðursvölum og sérmerktu bílastæði í bílageymslu í snyrtilegu lyftuhúsi við Flatahraun í Hafnarfirði.
Íbúðin er á 2. hæð í 5.hæða fjölbýlishúsi þar sem stutt er í alla helstu þjónustu, svo sem skóla, leikskóla, íþóttastarf, matvöruverslanir. Íbúðin er laus strax.
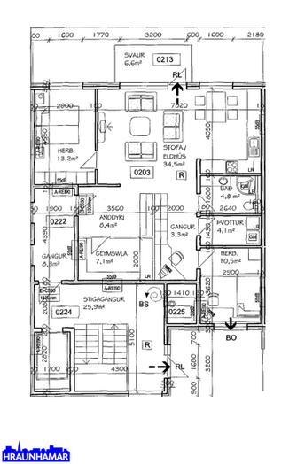
Íbúðin er skráð skv. HMS 102.2 fm.
Nánari lýsing:
Inngangur inn af stigagangi sem er innandyra.
Komið er inn í forstofu og fataskápur beint á móti inngangi.
Geymsla við hliðin á forstofu.
Eldhús, borðstofa og stofa eru í einu opnu og björtu rými og þar er gengið út á suðursvalir.
Herbergi I er með góðu skápaplássi.
Herbergi II er með fataskáp.
Baðherbergi er með snyrtilegri innréttingu, sturtuklefi, upphengt salerni, handklæðaofn og flísar á gólfi.
Þvottahús þar eru skolvaskur, skápur á vegg og flísar á gólfi.
Parket og flísar á gólfum.
Vel staðsett og sérmerkt bílastæði í lokuðum bílakjallara
Íbúðin getur verið laus fljótlega.
í kjallara er sameiginleg hjóla- og vagnageymsla. .
Nánari upplýsingar veitir Valgerður Ása Gissurardóttir s. 791-7500 - vala@hraunhamar.is
Skoðunarskylda:
Í lögum um fasteignakaup nr. 40/2002 er kveðið á um ríka skoðunarskyldu kaupenda á fasteignum. Hraunhamar fasteignasala vill benda væntanlegum kaupendum á að kynna sér vel ástand fasteigna fyrir kauptilboðsgerð og ef þurfa þykir að leita til sérfræðinga fyrir nánari ástandsskoðun.
Gjöld sem kaupandi þarf að standa straum af vegna kaupanna:
1. Stimpilgjald af kaupsamningi, fyrstu kaup (0,4%), almenn kaup (0,8%), lögaðilar (1,6%) af heildarfasteignamati.
2. Þinglýsingargjald af kaupsamningi, veðskuldabréfi, mögulegu veðleyfi o.fl. – kr. 2.700 kr. af hverju skjali.
3. Lántökugjald lánastofnunar er skv. verðskrá viðkomandi lánastofnunar.
4. Umsýslugjald til fasteignasölu skv. þjónustusamningi
Hraunhamar er elsta fasteignasala Hafnarfjarðar, stofnuð 1983.
Hraunhamar, í fararbroddi í rúm 40 ár. – Hraunhamar.is
Smelltu hér til að fá frítt söluverðmat.
Smelltu hér til að fá söluyfirlit sent strax.
Íbúðin er á 2. hæð í 5.hæða fjölbýlishúsi þar sem stutt er í alla helstu þjónustu, svo sem skóla, leikskóla, íþóttastarf, matvöruverslanir. Íbúðin er laus strax.
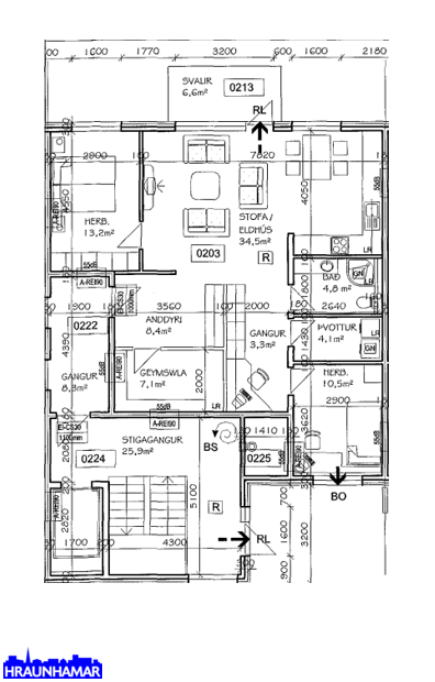
Íbúðin er skráð skv. HMS 102.2 fm.
Nánari lýsing:
Inngangur inn af stigagangi sem er innandyra.
Komið er inn í forstofu og fataskápur beint á móti inngangi.
Geymsla við hliðin á forstofu.
Eldhús, borðstofa og stofa eru í einu opnu og björtu rými og þar er gengið út á suðursvalir.
Herbergi I er með góðu skápaplássi.
Herbergi II er með fataskáp.
Baðherbergi er með snyrtilegri innréttingu, sturtuklefi, upphengt salerni, handklæðaofn og flísar á gólfi.
Þvottahús þar eru skolvaskur, skápur á vegg og flísar á gólfi.
Parket og flísar á gólfum.
Vel staðsett og sérmerkt bílastæði í lokuðum bílakjallara
Íbúðin getur verið laus fljótlega.
í kjallara er sameiginleg hjóla- og vagnageymsla. .
Nánari upplýsingar veitir Valgerður Ása Gissurardóttir s. 791-7500 - vala@hraunhamar.is
Skoðunarskylda:
Í lögum um fasteignakaup nr. 40/2002 er kveðið á um ríka skoðunarskyldu kaupenda á fasteignum. Hraunhamar fasteignasala vill benda væntanlegum kaupendum á að kynna sér vel ástand fasteigna fyrir kauptilboðsgerð og ef þurfa þykir að leita til sérfræðinga fyrir nánari ástandsskoðun.
Gjöld sem kaupandi þarf að standa straum af vegna kaupanna:
1. Stimpilgjald af kaupsamningi, fyrstu kaup (0,4%), almenn kaup (0,8%), lögaðilar (1,6%) af heildarfasteignamati.
2. Þinglýsingargjald af kaupsamningi, veðskuldabréfi, mögulegu veðleyfi o.fl. – kr. 2.700 kr. af hverju skjali.
3. Lántökugjald lánastofnunar er skv. verðskrá viðkomandi lánastofnunar.
4. Umsýslugjald til fasteignasölu skv. þjónustusamningi
Hraunhamar er elsta fasteignasala Hafnarfjarðar, stofnuð 1983.
Hraunhamar, í fararbroddi í rúm 40 ár. – Hraunhamar.is
Smelltu hér til að fá frítt söluverðmat.
Smelltu hér til að fá söluyfirlit sent strax.
Ár
Fasteignamat
Kaupverð
Stærð
Fermetraverð
18. júl. 2007
22.605.000 kr.
30.100.000 kr.
102.2 m²
294.521 kr.
Byggt á upplýsingum úr Þjóðskrá Íslands frá 2006-2025