Upplýsingar
Verðsaga
Byggt 1971
136 m²
6 herb.
1 baðherb.
4 svefnh.
Þvottahús
Útsýni
Sameiginl. inngangur
Lýsing
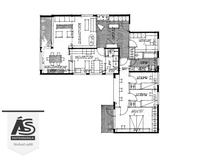
136,0 fm 6 herbergja íbúð á 3. hæð (efstu) með glæsilegu útsýni við Suðurvang 8 í norðurbæ Hafnarfjarðar.
Allir uppgefnir fermetrar eru innan íbúðar skv. HMS en íbúðinni fylgir einnig geymsla í kjallara skv. eignaskiptayfirlýsingu.
Nánari lýsing: Forstofa með skápum. Björt og rúmgóð stofa. Borðstofa með útg. á svalir. Eldhús með dökkri innréttingu, helluborð m/háf yfir, ofn í vinnuhæð. Þvottahús með opnanlegum glugga innaf eldhúsi. Herbergisgangur með skrifborðsaðstöðu. Fjögur svefnherbergi eru í íbúðinni í dag þ.m.t. hjóna, útg. á svalir úr hjónaherberginu. Einnig er mögulegt að útbúa fimmta svefnherbergið. Baðherbergi með sturtu (einnig lagnir til staðar fyrir baðkar), handklæðaofn.
Sér geymsla í kjallara og sameign með hjóla- og vagnageymslu.
Frábær staðsetning þar sem stutt er í stofnbrautir og alla helstu þjónustu.
Nánari upplýsingar veitir Aron Freyr Eiríksson löggiltur fasteignasali í síma 772-7376 / aron@as.is og Arnór Daði Eiríksson í s. 777-0939 / arnor@as.is
Ás fasteignasala er rótgróið fyrirtæki sem hefur veitt alla almenna þjónustu í fasteignaviðskiptum frá árinu 1988.
www.facebook.com/asfasteignasala
ww.instagram.com/as_fasteignasala
www.as.is
Allir uppgefnir fermetrar eru innan íbúðar skv. HMS en íbúðinni fylgir einnig geymsla í kjallara skv. eignaskiptayfirlýsingu.
Nánari lýsing: Forstofa með skápum. Björt og rúmgóð stofa. Borðstofa með útg. á svalir. Eldhús með dökkri innréttingu, helluborð m/háf yfir, ofn í vinnuhæð. Þvottahús með opnanlegum glugga innaf eldhúsi. Herbergisgangur með skrifborðsaðstöðu. Fjögur svefnherbergi eru í íbúðinni í dag þ.m.t. hjóna, útg. á svalir úr hjónaherberginu. Einnig er mögulegt að útbúa fimmta svefnherbergið. Baðherbergi með sturtu (einnig lagnir til staðar fyrir baðkar), handklæðaofn.
Sér geymsla í kjallara og sameign með hjóla- og vagnageymslu.
Frábær staðsetning þar sem stutt er í stofnbrautir og alla helstu þjónustu.
Nánari upplýsingar veitir Aron Freyr Eiríksson löggiltur fasteignasali í síma 772-7376 / aron@as.is og Arnór Daði Eiríksson í s. 777-0939 / arnor@as.is
Ás fasteignasala er rótgróið fyrirtæki sem hefur veitt alla almenna þjónustu í fasteignaviðskiptum frá árinu 1988.
www.facebook.com/asfasteignasala
ww.instagram.com/as_fasteignasala
www.as.is
Ár
Fasteignamat
Kaupverð
Stærð
Fermetraverð
8. des. 2023
67.350.000 kr.
76.000.000 kr.
136 m²
558.824 kr.
22. maí. 2018
40.850.000 kr.
44.100.000 kr.
136 m²
324.265 kr.
31. mar. 2011
21.650.000 kr.
24.524.000 kr.
136 m²
180.324 kr.
21. feb. 2007
22.600.000 kr.
22.500.000 kr.
136 m²
165.441 kr.
Byggt á upplýsingum úr Þjóðskrá Íslands frá 2006-2025