Löggiltir fasteignasalar innan Félags fasteignasala:
Ástþór Reynir Guðmundsson
Vigdís R. S. Helgadóttir
Guðbjörg Helga Jóhannesdóttir
Gylfi Jens Gylfason
Sigrún Matthea Sigvaldadóttir
Sveinn Gíslason
Páll Guðmundsson
Þórarinn Arnar Sævarsson
Berglind Hólm Birgisdóttir
Þorsteinn Gíslason
Guðrún Lilja Tryggvadóttir
Brynjar Ingólfsson
Guðný Þorsteinsdóttir
Bjarni Blöndal
Þorsteinn Ólafs
Þórdís Björk Davíðsdóttir
Jóhann Kristinn Jóhannesson
Bjarný Björg Arnórsdóttir
Salvör Þóra Davíðsdóttir
Magga Sigríður Gísladóttir
Upplýsingar
85,7 m²
3 herb.
1 baðherb.
1 svefnh.
Þvottahús
Sérinngangur
Bílastæði
Lýsing
Sýnum daglega!!!
RE/MAX, Garðar Hólm lgf. og Guðlaug Jóna lgf. kynna: Nýjan íbúðaklasa á Álftanesi, 225 Garðabæ, við Grásteinsmýri 1-6. Byggingaraðili Öxar ehf.
Uppbygging á 102 íbúðum í þremur lágreistum íbúðarkjörnum ásamt bílastæðahúsi undir einum kjarnanum. Í heidina eru 153 bílastæði, 30 í bílageymslu og 123 á lóð. Hönnun svæðisins einkennist af því að birta nái í allar íbúðir og andi vel um allt svæðið.
Kaupendur geta nýtt sér nýjan sjóð Öxar 20 sem styður kaupendur með því að fjárfesta með kaupanda allt að 20% af kaupverði. Kynntu þér málið.
Vel skipulagðar og rúmgóðar tveggja til fimm herbergja íbúðir með aukinni lofthæð. Með öllum íbúðum í húsunum fylgir stæði í bílageymslu, með sumum íbúðum fylgir svo auk þess annað sér merkt stæði utandyra. Allar íbúðir eru með hefðbundnar svalir eða verönd þar sem á við. Flestar íbúðir eru með sér þvottahús.
Sjá má skilalýsingu, verðlista og nánari upplýsingar inn á heimasíðu verkefnisins: grasteinsmyri.is
Nánari upplýsingar veita Guðlaug Jóna lgf. í síma 661-2363 eða gulla@remax.is og Garðar Hólm lgf. í síma 899-8811 eða gardar@remax.is
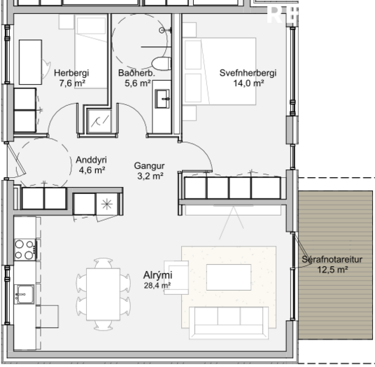
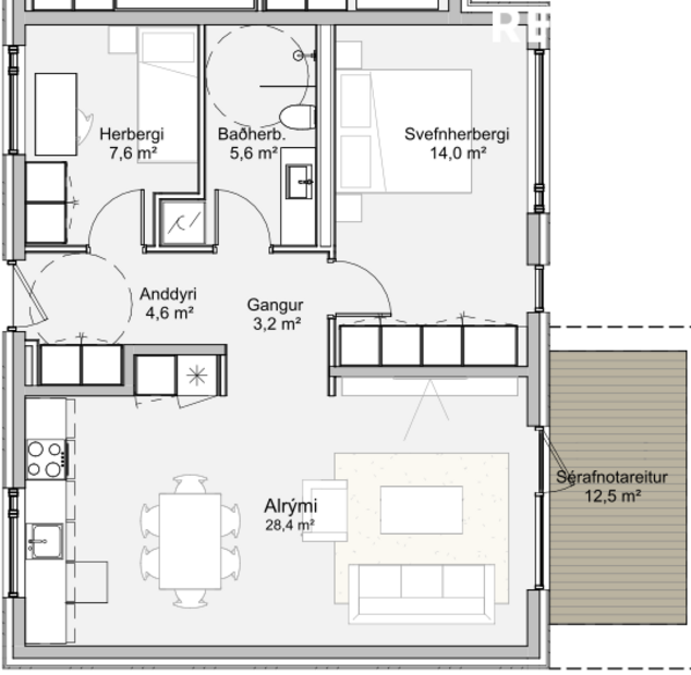
Íbúð 102 er glæsileg 3ja herbergja íbúð á 1. hæð með sérinngangi og stæði í bílakjallara. Samkvæmt Þjóðskrá Íslands er eignin 85,7 fm, þar af er geymsla í kjallara 9,2 fm. Útgengt á 12,5 fm sérafnotarétt.
Einstaklega vönduð og falleg 3ja herbergja íbúð, merkt: 102 (Hæð 1). Íbúðin er fullbúin án gólfefna að undanskildum votrýmum, sem verða flísalögð. Sérstæði í bílageymslu fylgir með. Húsið er úr staðsteypt, einangrað að utan og klætt með áli og timbri. Allar innréttingar eru frá Axis og eldhústæki frá AEG.
Íbúð: 0102
Hæð: 1
Tegund: 3ja herbergja
Stærð: 85.7 m²
Geymsla: 9,2 m²
Stæði í bílageymslu: Merkt B10
Nánari lýsing:
Forstofa: Með góðum fataskápum.
Eldhús: Falleg innrétting frá Axis með 80 cm helluborði með inngbyggðum gufugleypi, bakarofni, innbyggðum ísskáp og uppþvottavél.
Stofa/borðstofa: Í samliggjandi rými með eldhúsi. Opið og bjart rými. Útgengt út á 12,5 fm sérafnotarétt.
Hjónaherbergi: Rúmgott með góðum fataskápum.
Herbergi II: Rúmgóð með góðum fataskápum.
Baðherbergi: Flísar á gólfi og að hluta til veggjum, upphengt salerni, sturta með glerskilrúmi, innrétting undir og við handlaug, handklæðaofn. Aðstaða fyrir þvottavél og þurkkara.
Geymsla: Er í sameign í kjallara og er 9,2 fm.
Sameign: Í sameign í kjallara er hjóla- og vagnageymsla.
Bílastæði: Bílastæði í lokuðum bílakjallara merk B10.
Helstu eiginleikar:
Húsið:
Grásteinsmýri 1-6 er glæsilegt og vandað fjölbýlishús byggt af Öxar ehf.
Húsið er á 3 hæðum auk bílakjallara, alls 102 íbúðir. Húsið er gert staðsteypt og klætt að utan. Gluggar eru álklæddir viðargluggar með tvöföldu gleri.
*Myndirnar sem birtast á auglýsingu íbúðarinnar eru ekki endilega myndir af íbúðinni sjálfri heldur einungis til þess að gefa sýn á útlit eignanna þegar þær eru tilbúnar.
Kaupendur hafa verið upplýstir um að lóðin verður byggingasvæði í einhvern tíma eftir að eignir kunna að vera afhentar og að lokaúttekt kannað tefjast þangað til öll lóðin og mannvirki innan lóðar eru fullkláruð. Röskun getur orðið á stæðum í bílgeymslu og gætu kaupendur þurft að nota annað stæði en það sem þinglýst er á þeirra eign á meðan enn er unnið að því að klára heildareign og lóð. Seljandi mun ábyrgjast lokaúttekt á eigninni en afsal kann að fara fram áður en lokaúttekt á eigninni/heildareigninni fæst.
Nánari upplýsingar veita:
Garðar Hólm löggiltur fasteignasali í síma 899-8811 / gardar@remax.is
Guðlaug Jóna löggiltur fasteignasali í síma 661-2363 / gulla@remax.is
Gjöld sem kaupandi þarf að standa straum af vegna kaupanna:
1. Stimpilgjald af kaupsamningi 0,8%, ( 0,4% ef um fyrstu kaup er að ræða ) og 1.6% (ef um lögaðila er að ræða) af heildar fasteignamati.
2. Þinglýsingargjald af kaupsamningi, veðskuldabréfi, mögulegu veðleyfi o.fl. - kr. 2.700 af hverju skjali.
3. Lántökugjald lánastofnunar - Nánari upplýsingar á heimasíðum lánastofnana.
4. Umsýslugjald til fasteignasölu kr. 69.900.-
RE/MAX, Garðar Hólm lgf. og Guðlaug Jóna lgf. kynna: Nýjan íbúðaklasa á Álftanesi, 225 Garðabæ, við Grásteinsmýri 1-6. Byggingaraðili Öxar ehf.
Uppbygging á 102 íbúðum í þremur lágreistum íbúðarkjörnum ásamt bílastæðahúsi undir einum kjarnanum. Í heidina eru 153 bílastæði, 30 í bílageymslu og 123 á lóð. Hönnun svæðisins einkennist af því að birta nái í allar íbúðir og andi vel um allt svæðið.
Kaupendur geta nýtt sér nýjan sjóð Öxar 20 sem styður kaupendur með því að fjárfesta með kaupanda allt að 20% af kaupverði. Kynntu þér málið.
Vel skipulagðar og rúmgóðar tveggja til fimm herbergja íbúðir með aukinni lofthæð. Með öllum íbúðum í húsunum fylgir stæði í bílageymslu, með sumum íbúðum fylgir svo auk þess annað sér merkt stæði utandyra. Allar íbúðir eru með hefðbundnar svalir eða verönd þar sem á við. Flestar íbúðir eru með sér þvottahús.
Sjá má skilalýsingu, verðlista og nánari upplýsingar inn á heimasíðu verkefnisins: grasteinsmyri.is
Nánari upplýsingar veita Guðlaug Jóna lgf. í síma 661-2363 eða gulla@remax.is og Garðar Hólm lgf. í síma 899-8811 eða gardar@remax.is
Íbúð 102 er glæsileg 3ja herbergja íbúð á 1. hæð með sérinngangi og stæði í bílakjallara. Samkvæmt Þjóðskrá Íslands er eignin 85,7 fm, þar af er geymsla í kjallara 9,2 fm. Útgengt á 12,5 fm sérafnotarétt.
Einstaklega vönduð og falleg 3ja herbergja íbúð, merkt: 102 (Hæð 1). Íbúðin er fullbúin án gólfefna að undanskildum votrýmum, sem verða flísalögð. Sérstæði í bílageymslu fylgir með. Húsið er úr staðsteypt, einangrað að utan og klætt með áli og timbri. Allar innréttingar eru frá Axis og eldhústæki frá AEG.
Íbúð: 0102
Hæð: 1
Tegund: 3ja herbergja
Stærð: 85.7 m²
Geymsla: 9,2 m²
Stæði í bílageymslu: Merkt B10
Nánari lýsing:
Forstofa: Með góðum fataskápum.
Eldhús: Falleg innrétting frá Axis með 80 cm helluborði með inngbyggðum gufugleypi, bakarofni, innbyggðum ísskáp og uppþvottavél.
Stofa/borðstofa: Í samliggjandi rými með eldhúsi. Opið og bjart rými. Útgengt út á 12,5 fm sérafnotarétt.
Hjónaherbergi: Rúmgott með góðum fataskápum.
Herbergi II: Rúmgóð með góðum fataskápum.
Baðherbergi: Flísar á gólfi og að hluta til veggjum, upphengt salerni, sturta með glerskilrúmi, innrétting undir og við handlaug, handklæðaofn. Aðstaða fyrir þvottavél og þurkkara.
Geymsla: Er í sameign í kjallara og er 9,2 fm.
Sameign: Í sameign í kjallara er hjóla- og vagnageymsla.
Bílastæði: Bílastæði í lokuðum bílakjallara merk B10.
Helstu eiginleikar:
- Gólfsíðir gluggar við svalir.
- Sérmerkt stæði í bílageymslu.
- Mikið skápapláss.
- Innréttingar frá Axis.
- Aukin lofthæð.
Húsið:
Grásteinsmýri 1-6 er glæsilegt og vandað fjölbýlishús byggt af Öxar ehf.
Húsið er á 3 hæðum auk bílakjallara, alls 102 íbúðir. Húsið er gert staðsteypt og klætt að utan. Gluggar eru álklæddir viðargluggar með tvöföldu gleri.
*Myndirnar sem birtast á auglýsingu íbúðarinnar eru ekki endilega myndir af íbúðinni sjálfri heldur einungis til þess að gefa sýn á útlit eignanna þegar þær eru tilbúnar.
Kaupendur hafa verið upplýstir um að lóðin verður byggingasvæði í einhvern tíma eftir að eignir kunna að vera afhentar og að lokaúttekt kannað tefjast þangað til öll lóðin og mannvirki innan lóðar eru fullkláruð. Röskun getur orðið á stæðum í bílgeymslu og gætu kaupendur þurft að nota annað stæði en það sem þinglýst er á þeirra eign á meðan enn er unnið að því að klára heildareign og lóð. Seljandi mun ábyrgjast lokaúttekt á eigninni en afsal kann að fara fram áður en lokaúttekt á eigninni/heildareigninni fæst.
Nánari upplýsingar veita:
Garðar Hólm löggiltur fasteignasali í síma 899-8811 / gardar@remax.is
Guðlaug Jóna löggiltur fasteignasali í síma 661-2363 / gulla@remax.is
Gjöld sem kaupandi þarf að standa straum af vegna kaupanna:
1. Stimpilgjald af kaupsamningi 0,8%, ( 0,4% ef um fyrstu kaup er að ræða ) og 1.6% (ef um lögaðila er að ræða) af heildar fasteignamati.
2. Þinglýsingargjald af kaupsamningi, veðskuldabréfi, mögulegu veðleyfi o.fl. - kr. 2.700 af hverju skjali.
3. Lántökugjald lánastofnunar - Nánari upplýsingar á heimasíðum lánastofnana.
4. Umsýslugjald til fasteignasölu kr. 69.900.-