Upplýsingar
Byggt 2025
60,5 m²
0 herb.
Sérinngangur
Lýsing
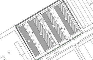
Fasteignasala Kópavogs / Gunnlaugur Hilmarsson kynna: 50m2 og 60m2 geymsluhúsnæði á einni hæð við Álhellu 32C, 221 Hafnarfjörður.
ATH. Það er engin VSK kvöð á eigninni.
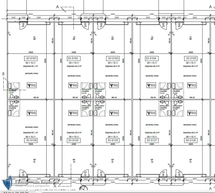
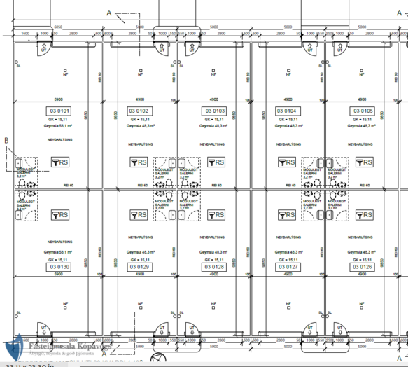
50m2 bilin eru 5m á breidd og 10m á lengd. Verð kr. 19.900.000-
60m2 bilin eru 6m á breidd og 10m á lengd. Um er að ræða 2 endabil í húsinu. Verð kr. 24.900.000-
Hæð á framhlið er 3,37m og í mæni er hæðin 4,57m.
Húsið er límtrésgrind, veggir eru gerðir úr forgerðum samlokueiningum (harðpressuð steinull 100kg./m3 klædd með 0,6mm þykku alumzinki með innbrendum lit). Veggirnir eru 100mm þykkir.
Innveggir eru úr forgerðum samlokueiningum eins og lýst er hér að ofan.
Þakeiningar eru gerðar úr 120mm þykkum steinullareiningum (harðpressuð steinull 100kg/m3).
Iðnaðarhurðin er 2,8m á breidd og 2.8m á hæð. Gönguhurð er við hliðina á iðanaðarhurð.
Húsnæðið verður með niðurfalli, vask, heitu og köldu vatni. Lýsing í lofti og ofnar til upphitunar.
Gólf eru staðsteypt með trefjasteypu, vélslýpuð og með niðurfalli.
Raflagnir eru utanáliggjandi á veggjum og sýnilegar, 3ja fasa rafmagn í rafmagnstöflu. Sér rafmagnsmælir er í inntaksrými hússins. Rafmagnstengill í lofti fyrir hurðaopnara, ljósrofi og rafmagnstengill nálagt hurð.
Vaskur og heitt/kalt vatn tengt. Hiti er sameiginlegur og sér húsfélagið um innheimtu húsgjalda til að m.a. mæta þeim kostnaði.
Stammi, WC stútur, í gófi fyrir klósett ásamt niðurfalli.
Bílastæði á lóð eru sameiginleg og bílaplan verður malbikað.
Lóð verður afgirt með hliði.
Húsnæðið er tilbúið til afhendingar
Skipulagsgjald er greitt af kaupanda og nemur 0,3% af brunabótamati eignar þegar eignin er komin á bygginarstig 4.
Allar upplýsingar veitir Gunnlaugur Hilmarsson, löggildur fasteignasali og viðskiptafræðingur, í síma 777 56 56, gunnlaugur@fastko.is, og á skrifstofu í síma 517 26 00 eða á heimasíðu okkar www.fastko.is
Kostnaður kaupanda:
1. Stimpilgjald af kaupsamningi –0,8% af heildarfasteignamati, 0,4% við fyrstu kaup og fyrir lögaðila 1,6% af heildarfasteignamati.
2. Þinglýsingagjald af kaupsamningi, veðskuldabréfi, veðleyfi o.fl. kr 2.700 af hverju skjali.
3. Lántökugjald lánastofnunar - almennt 1,0% af höfuðstól skuldabréfs.
4. Umsýslugjald til fasteignasölu, kr. 50.000 auk vsk. sbr. Kauptilboði.
ATH. Það er engin VSK kvöð á eigninni.
50m2 bilin eru 5m á breidd og 10m á lengd. Verð kr. 19.900.000-
60m2 bilin eru 6m á breidd og 10m á lengd. Um er að ræða 2 endabil í húsinu. Verð kr. 24.900.000-
Hæð á framhlið er 3,37m og í mæni er hæðin 4,57m.
Húsið er límtrésgrind, veggir eru gerðir úr forgerðum samlokueiningum (harðpressuð steinull 100kg./m3 klædd með 0,6mm þykku alumzinki með innbrendum lit). Veggirnir eru 100mm þykkir.
Innveggir eru úr forgerðum samlokueiningum eins og lýst er hér að ofan.
Þakeiningar eru gerðar úr 120mm þykkum steinullareiningum (harðpressuð steinull 100kg/m3).
Iðnaðarhurðin er 2,8m á breidd og 2.8m á hæð. Gönguhurð er við hliðina á iðanaðarhurð.
Húsnæðið verður með niðurfalli, vask, heitu og köldu vatni. Lýsing í lofti og ofnar til upphitunar.
Gólf eru staðsteypt með trefjasteypu, vélslýpuð og með niðurfalli.
Raflagnir eru utanáliggjandi á veggjum og sýnilegar, 3ja fasa rafmagn í rafmagnstöflu. Sér rafmagnsmælir er í inntaksrými hússins. Rafmagnstengill í lofti fyrir hurðaopnara, ljósrofi og rafmagnstengill nálagt hurð.
Vaskur og heitt/kalt vatn tengt. Hiti er sameiginlegur og sér húsfélagið um innheimtu húsgjalda til að m.a. mæta þeim kostnaði.
Stammi, WC stútur, í gófi fyrir klósett ásamt niðurfalli.
Bílastæði á lóð eru sameiginleg og bílaplan verður malbikað.
Lóð verður afgirt með hliði.
Húsnæðið er tilbúið til afhendingar
Skipulagsgjald er greitt af kaupanda og nemur 0,3% af brunabótamati eignar þegar eignin er komin á bygginarstig 4.
Allar upplýsingar veitir Gunnlaugur Hilmarsson, löggildur fasteignasali og viðskiptafræðingur, í síma 777 56 56, gunnlaugur@fastko.is, og á skrifstofu í síma 517 26 00 eða á heimasíðu okkar www.fastko.is
Kostnaður kaupanda:
1. Stimpilgjald af kaupsamningi –0,8% af heildarfasteignamati, 0,4% við fyrstu kaup og fyrir lögaðila 1,6% af heildarfasteignamati.
2. Þinglýsingagjald af kaupsamningi, veðskuldabréfi, veðleyfi o.fl. kr 2.700 af hverju skjali.
3. Lántökugjald lánastofnunar - almennt 1,0% af höfuðstól skuldabréfs.
4. Umsýslugjald til fasteignasölu, kr. 50.000 auk vsk. sbr. Kauptilboði.